Projekt rodinného domu
- [23.10. 2025]Smazat/ Upravit/ Topovat








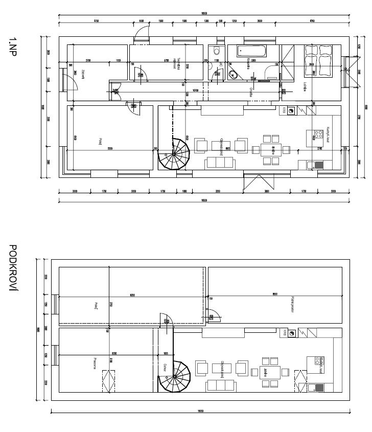
Prodám hotový i včetně razítek a schválení, vlastní projekt domu od architekta a projektanta Petra Miláčka. Jedná se o papírový projekt, ne fyzickou stavbu! Netypizovaný projet obdélníkového tvaru (18,5 x 9m) s dvěma výškami střechy a s vnitřním z poloviny otevřeným mezonetovým prostorem. Velká kuchyň oddělená krbem od obývací místnosti s otevřeným stropním prostorem. V 1.patře umístěnou pracovnou a fitness místností+úložný prostor pod střechou. Za zdí obývací místnosti-velký dětský pokoj s možností rozdělení. V druhé polovině přízemí-zádveří hl.vchodu s vest.úložným prostorem, tech.místnost (pro TČ, boiler, prádelnu,atd.) záchod, koupelna, ložnice. Francouzská okna ložnice+obývák. Střešní okna jih. Projektováno pro Itong lambda bez přídavného zateplení ale možno i z cihel. Topení pomocí TČ+podlahové vodní topení. Krb.vložka pro případné přitopení podlahovky nebo užitkové vody.
Více informací, vizualizací a plánů rád ukáži při osobní schůzce. Jsem z Mladé Boleslavi.
Cena netypizovaného projektu byla 60tis Kč. V případě zájmu, jsem ochoten jednat o konečné ceně cca 15tis Kč.
Více informací, vizualizací a plánů rád ukáži při osobní schůzce. Jsem z Mladé Boleslavi.
Cena netypizovaného projektu byla 60tis Kč. V případě zájmu, jsem ochoten jednat o konečné ceně cca 15tis Kč.
|
| |||||||||||||||||||||||||||||||
Kontaktovat inzerenta emailem
Kontaktovat emailem může pouze ověřený uživatel.
Ověření je zdarma.
Vaše telefonní číslo *
Kontaktovat emailem může pouze ověřený uživatel.
Ověření je zdarma.
Vaše telefonní číslo *