Bohdalice-Pavlovice, RD k celkové rekonstrukci, zahrada - ro
- [31.10. 2025]Smazat/ Upravit/ Topovat






























Ev.č. E1428B004
Exkluzivně nabízíme k prodeji řadový rodinný dům s velkým pozemkem v samém centru klidné malebné obce Bohdalice-Pavlovice.
Plocha pozemku je (dle katastru nemovitostí) 1.356 m2, zastavěná plocha je přibližně 250m2.
Nemovitost je určena k celkové rekonstrukci nebo demolici. Dům je nepodsklepený, je postaven ze smíšeného zdiva (pálená a nepálená cihla). Na pozemku jsou všechny inženýrské sítě (voda a elektřina jsou zavedeny do domu, plyn a kanalizace jsou před domem).
Do domu je vchod i vjezd přes prostornou garáž/stodolu, která je průjezdná až do zahrady (což je ideální vzhledem k nutným stavebním úpravám domu). Zahrada za domem je kompletně oplocená.
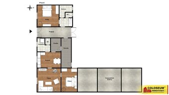
Dům byl původně koncipován jako dvougenerační, jsou zde samostatné vchody do bytových jednotek z průjezdu domu. Bytové jednotky jsou dispozičně řešeny jako 2+1. Pro představu přikládáme přibližný půdorys domu.
Díky přibližné uliční šíři 20 metrů je nemovitost vhodná i jako investice.
Obce Bohdalice-Pavlovice, která se nachází v srdci přírody, disponuje výbornou dostupností do okolních měst. Vyškov je vzdálený pouhých 15 km a Brno 30 km, což zajišťuje skvělé spojení s městským životem a pracovními příležitostmi.
Dům se nachází v centru obce, kde najdete veškerou občanskou vybavenost – mateřskou a základní školu, obchody, jídelnu, poštu či knihovnu.
Obec také nabízí sportovní vyžití a krásné přírodní okolí, ideální pro procházky, cyklistiku a další aktivity.
Tato lokalita je ideální pro ty, kteří hledají pohodlný život v klidném a přátelském prostředí, ale nechtějí se vzdát snadného přístupu do městského života. Dům je skvélé místo pro trvalé bydlení.
Veškeré uvedené plochy jsou přibližné a mají orientační charakter.
PENB nebyl dodán - proto uvádíme třídu G. Nemovitost lze financovat hypotečním úvěrem s jehož vyřízením Vám rádi pomůžeme.
Pro více informací či domluvení prohlídky kontaktujte realitní makléřku.
Cena: Celková cena je konečná, včetně právního servisu, provize, DPH a všech poplatků. Je však také možné o ni jednat - pro více informací nás kontaktujte., cena k jednání.
Exkluzivně nabízíme k prodeji řadový rodinný dům s velkým pozemkem v samém centru klidné malebné obce Bohdalice-Pavlovice.
Plocha pozemku je (dle katastru nemovitostí) 1.356 m2, zastavěná plocha je přibližně 250m2.
Nemovitost je určena k celkové rekonstrukci nebo demolici. Dům je nepodsklepený, je postaven ze smíšeného zdiva (pálená a nepálená cihla). Na pozemku jsou všechny inženýrské sítě (voda a elektřina jsou zavedeny do domu, plyn a kanalizace jsou před domem).
Do domu je vchod i vjezd přes prostornou garáž/stodolu, která je průjezdná až do zahrady (což je ideální vzhledem k nutným stavebním úpravám domu). Zahrada za domem je kompletně oplocená.
Dům byl původně koncipován jako dvougenerační, jsou zde samostatné vchody do bytových jednotek z průjezdu domu. Bytové jednotky jsou dispozičně řešeny jako 2+1. Pro představu přikládáme přibližný půdorys domu.
Díky přibližné uliční šíři 20 metrů je nemovitost vhodná i jako investice.
Obce Bohdalice-Pavlovice, která se nachází v srdci přírody, disponuje výbornou dostupností do okolních měst. Vyškov je vzdálený pouhých 15 km a Brno 30 km, což zajišťuje skvělé spojení s městským životem a pracovními příležitostmi.
Dům se nachází v centru obce, kde najdete veškerou občanskou vybavenost – mateřskou a základní školu, obchody, jídelnu, poštu či knihovnu.
Obec také nabízí sportovní vyžití a krásné přírodní okolí, ideální pro procházky, cyklistiku a další aktivity.
Tato lokalita je ideální pro ty, kteří hledají pohodlný život v klidném a přátelském prostředí, ale nechtějí se vzdát snadného přístupu do městského života. Dům je skvélé místo pro trvalé bydlení.
Veškeré uvedené plochy jsou přibližné a mají orientační charakter.
PENB nebyl dodán - proto uvádíme třídu G. Nemovitost lze financovat hypotečním úvěrem s jehož vyřízením Vám rádi pomůžeme.
Pro více informací či domluvení prohlídky kontaktujte realitní makléřku.
Cena: Celková cena je konečná, včetně právního servisu, provize, DPH a všech poplatků. Je však také možné o ni jednat - pro více informací nás kontaktujte., cena k jednání.
|
| |||||||||||||||||||||||||||||||
Kontaktovat inzerenta emailem
Kontaktovat emailem může pouze ověřený uživatel.
Ověření je zdarma.
Vaše telefonní číslo *
Kontaktovat emailem může pouze ověřený uživatel.
Ověření je zdarma.
Vaše telefonní číslo *
Podobné inzeráty
Prodej bývalé fary v Bohdalicích, prodej rodinného domu Bohd - [9.10. 2025]Ve výhradním zastoupení majitele Vám nabízíme výjimečnou nemovitost. Jde o objekt bývalé fary z roku 1848, jejíž nejstarší části zde stály pravděpodobně ještě dříve. Dnes je nemovitost vedena jako rodinný dům, kde vládne unikátní genius loci. Přesto ...
4 740 000 Kč
Vyškov
683 41
683 41
257 x
Označit špatný inzerát Chybnou kategorii Ohodnotit uživatele Smazat/Upravit/Topovat
Bohdalice-Pavlovice, RD 3+1, zahrada, dvorek, k rekonstrukci - TOP - [2.11. 2025]Ev.č. E1428B006
Exkluzivně nabízíme k prodeji rodinný dům o dispozici 3+1 v obci Bohdalice-Pavlovice, část obce Pavlovice v okrese Vyškov.
Dům je postaven z pálených cihel a je určen k celkové rekonstrukci, což novému majiteli dává možnost přizpů ...
2 866 980 Kč
Vyškov
683 41
683 41
1710 x
Označit špatný inzerát Chybnou kategorii Ohodnotit uživatele Smazat/Upravit/Topovat









