Prodej pozemku k bydlení, 3217 m², Cheb
- [3.11. 2025]Smazat/ Upravit/ Topovat






























Nabízíme k prodeji pozemek k výstavbě rodinného domu o rozloze 3 217 m² v malebné obci Bříza u Chebu.
Pozemek je dle územního plánu určen pro bydlení v rodinných domech (BV – venkovské) a představuje ideální místo pro ty, kteří hledají spojení přírody, klidu a zároveň snadné dostupnosti do města – do Chebu se dostanete za pouhých 10 minut.
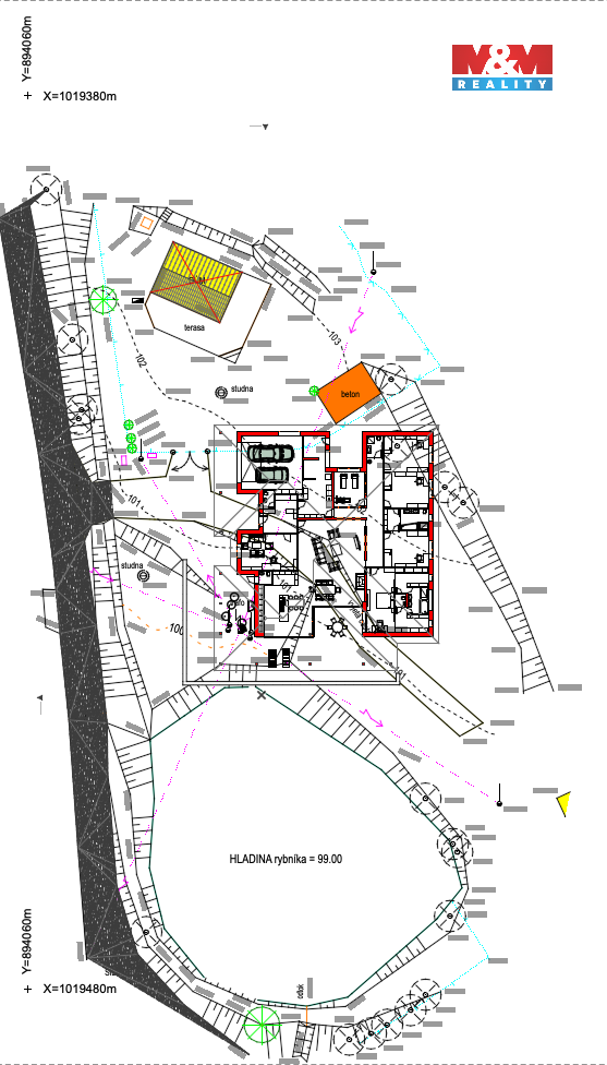
Na pozemku se nachází chovný rybník o ploše 1 019 m², vrtaná studna do hloubky 120 m, elektrická přípojka a přímý přístup z obecní komunikace.
K pozemku je již vypracovaný projekt rodinného domu, který počítá s moderním a komfortním bydlením s důrazem na propojení s okolní přírodou. Na základě tohoto projektu byla zpracována vizualizace domu, která ilustruje, jak by mohla výsledná stavba vypadat.
Díky své rozloze a poloze nabízí pozemek také možnost úprav projektu či vytvoření více stavebních objektů, například tří rodinných domů se společnou rekreační zónou u rybníka.
Pro více informací kontaktujte makléře
Lokalita: Bříza nad Ohří
Evidenční číslo: 923420
Pozemek je dle územního plánu určen pro bydlení v rodinných domech (BV – venkovské) a představuje ideální místo pro ty, kteří hledají spojení přírody, klidu a zároveň snadné dostupnosti do města – do Chebu se dostanete za pouhých 10 minut.
Na pozemku se nachází chovný rybník o ploše 1 019 m², vrtaná studna do hloubky 120 m, elektrická přípojka a přímý přístup z obecní komunikace.
K pozemku je již vypracovaný projekt rodinného domu, který počítá s moderním a komfortním bydlením s důrazem na propojení s okolní přírodou. Na základě tohoto projektu byla zpracována vizualizace domu, která ilustruje, jak by mohla výsledná stavba vypadat.
Díky své rozloze a poloze nabízí pozemek také možnost úprav projektu či vytvoření více stavebních objektů, například tří rodinných domů se společnou rekreační zónou u rybníka.
Pro více informací kontaktujte makléře
Lokalita: Bříza nad Ohří
Evidenční číslo: 923420
|
| |||||||||||||||||||||||||||||||
Kontaktovat inzerenta emailem
Kontaktovat emailem může pouze ověřený uživatel.
Ověření je zdarma.
Vaše telefonní číslo *
Kontaktovat emailem může pouze ověřený uživatel.
Ověření je zdarma.
Vaše telefonní číslo *









