Prodej RD 4+kk v zahájené rekonstrukci Janůvky (Svitavy)
- [7.11. 2025]Smazat/ Upravit/ Topovat






























Nabízíme k prodeji dvoupodlažní samostatně stojící RD 4+ kk se započatou rekonstrukcí, s velkým pozemkem, v obci Janůvky, 10 km od Moravské Třebové a 20 km od Svitav.
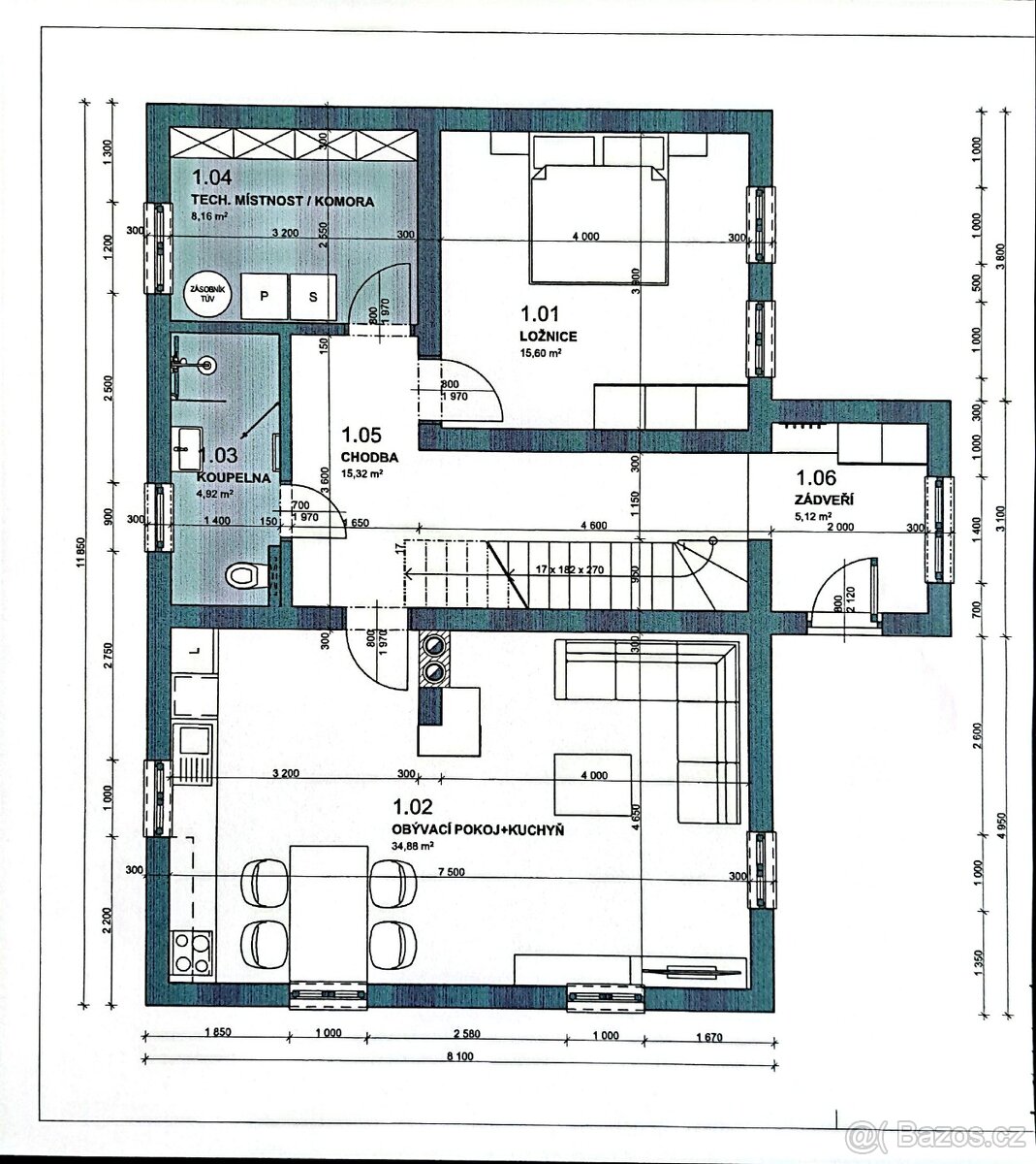
Celková výměra parcely je 1984 m2, zastavěná plocha a nádvoří 222 m2, užitná plocha cca 152 m2. Parcela má nepravidelný tvar a nachází se na východním okraji střední části obce.
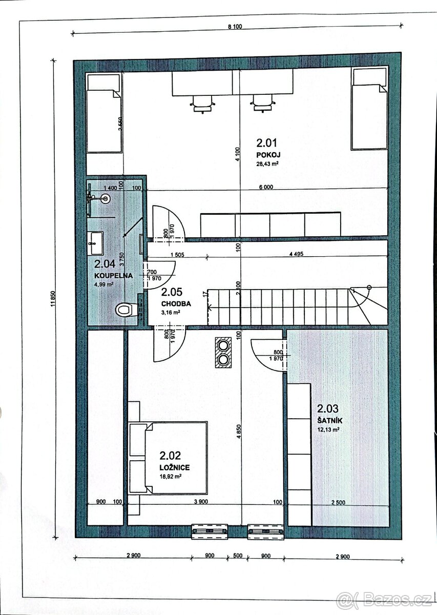
Dům o dispozici 4+kk + šatna má 2 nadzemní podlaží a je částečně podsklepený (25 m2).
Dům je v původním stavu, byla zahájena rekonstrukce – střešní krytina a krov, částečně rozvody elektřiny, částečně nové omítky, nová Eurookna.
Dům je zděný z pálených cihel a tvárnic, základy kamenné, vodorovná hydroizolace pod obvodovým zdivem domu, střecha sedlová, krytina betonová taška, stropy dřevěné a Hurdis, nová okna dřevěná Eurookna, podlahy betonové.
V přízemí se nachází zádveří, prostorná chodba, ložnice, obývací pokoj s kuchyňským koutem, koupelna s WC, technická místnost/komora. V patře 2 velké neprůchozí pokoje (1 s prostornou šatnou, koupelna s WC.
IS – obecní voda, el. energie (probíhá zřízení přípojky). V obci není kanalizace, likvidace odpadních vod vyřeší nový majitel individuálně ČOV. Plyn v obci také není.
Parkování na ulici před domem. Příjezd po zpevněné obecní komunikaci. Nezáplavové území.
Veškerá občanská vybavenost se nachází v 10 km vzdáleném Jevíčku.
Uvedené údaje jsou pouze informativní.
Celková výměra parcely je 1984 m2, zastavěná plocha a nádvoří 222 m2, užitná plocha cca 152 m2. Parcela má nepravidelný tvar a nachází se na východním okraji střední části obce.
Dům o dispozici 4+kk + šatna má 2 nadzemní podlaží a je částečně podsklepený (25 m2).
Dům je v původním stavu, byla zahájena rekonstrukce – střešní krytina a krov, částečně rozvody elektřiny, částečně nové omítky, nová Eurookna.
Dům je zděný z pálených cihel a tvárnic, základy kamenné, vodorovná hydroizolace pod obvodovým zdivem domu, střecha sedlová, krytina betonová taška, stropy dřevěné a Hurdis, nová okna dřevěná Eurookna, podlahy betonové.
V přízemí se nachází zádveří, prostorná chodba, ložnice, obývací pokoj s kuchyňským koutem, koupelna s WC, technická místnost/komora. V patře 2 velké neprůchozí pokoje (1 s prostornou šatnou, koupelna s WC.
IS – obecní voda, el. energie (probíhá zřízení přípojky). V obci není kanalizace, likvidace odpadních vod vyřeší nový majitel individuálně ČOV. Plyn v obci také není.
Parkování na ulici před domem. Příjezd po zpevněné obecní komunikaci. Nezáplavové území.
Veškerá občanská vybavenost se nachází v 10 km vzdáleném Jevíčku.
Uvedené údaje jsou pouze informativní.
|
| |||||||||||||||||||||||||||||||
Kontaktovat inzerenta emailem
Kontaktovat emailem může pouze ověřený uživatel.
Ověření je zdarma.
Vaše telefonní číslo *
Kontaktovat emailem může pouze ověřený uživatel.
Ověření je zdarma.
Vaše telefonní číslo *









