Pronájem bytu 1+kk 33 m², Zlín - Prštné, ev.č. 02348
- [10.11. 2025]Smazat/ Upravit/ Topovat


















Ev.č. 02348
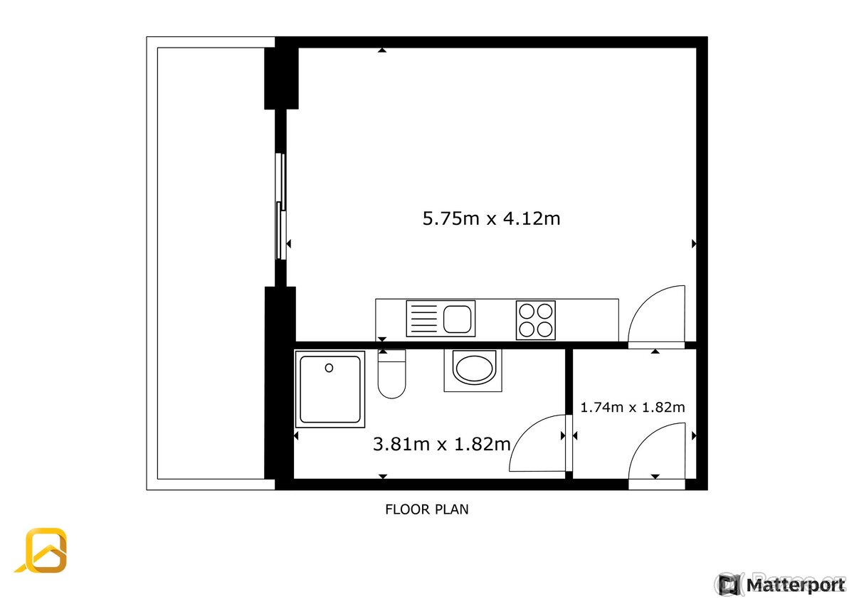
Nabízím k dlouhodobému podnájmu moderní byt 1+K o výměře 33 m² s velkorysou lodžií 10 m², který se nachází v novostavbě na ulici Elektrická ve Zlíně – Prštné. Byt je ideální pro jednotlivce nebo pár, kteří hledají komfortní a úsporné bydlení s vlastním venkovním prostorem.
V bytě jsou vítáni mazlíčci menšího vzrůstu.
Dispozice a vybavení
• Obytná místnost s kuchyňským koutem
• Plně vybavená kuchyň: vestavěná lednice, myčka, trouba, mikrovlnka
• Koupelna s velkým sprchovým koutem, WC, umyvadlem se skříňkou, zrcadlem a elektrickým boilerem
• V předsíni vestavěná skříň na oblečení i boty
• Klimatizace, venkovní žaluzie a nucená výměna vzduchu pro pohodlí po celý rok
• Sklepní kóje součástí
• Vyhrazené parkovací stání přímo u domu
• A navíc: velkorysá lodžie o výměře 10 m² – ideální na ranní kávu, lehátko nebo minizahrádku
Lokalita – Zlín, Prštné
• Klidná část města s výbornou dostupností do centra
• Zastávka MHD pár minut od domu (linky č. 6, 8, 9)
• V blízkosti cyklostezky, obchod, služby i příroda
• Rychlé spojení do centra Zlína i na výpadovky směrem na Otrokovice
Majitel si vyhrazuje právo výběru nájemce dle vlastního uvážení.
Kauce je stanovena ve výši 16.000,- Kč stejně tak i provize RK.
Byt je volný ihned – stačí si donést kartáček, kávu a dobré pantofle.
Ozvěte se dřív, než si ho zamluví někdo rychlejší – rád vás osobně provedu.
Děkuji a budu se těšit na prohlídce, David Kašný - Váš férový makléř & EXPLICIT REALITY
Tento byt je nabízen k podnájmu prostřednictvím služby Explicitní Nájemník
Díky službě Explicitní Nájemník získáváte jako nájemce vyšší standard podnájemního bydlení a celkově pohodlnější zážitek. Automaticky máte k dispozici tyto výhody:
Pojištění domácnosti a odpovědnosti za škody v běžném životě, včetně non-stop asistenční linky
Zákaznickou podporu každý pracovní den od 8:00 do 17:00 – pro vaše dotazy, požadavky nebo pomoc s nájemní smlouvou
Technickou asistenci – např. zajištění zámečníka, havarijní opravy či řešení jiných technických problémů v bytě
Možnost výměny bytu – kdykoli můžete požádat o změnu na menší, větší nebo v jiné lokalitě z portfolia bytů služby Explicitní Nájemník nebo Explicit Reality
Podnájem přes Explicitního Nájemníka je jednoduchý, bezpečný a bez zbytečných starostí. Vše potřebné máte zajištěno v rámci jednoho spolehlivého servisu.
En. náročnost b.: B - Velmi úsporná (71 kWh/m2 za rok)
Cena: + energie 2.228,- Kč, + provize RK, včetně právního servisu.
Nabízím k dlouhodobému podnájmu moderní byt 1+K o výměře 33 m² s velkorysou lodžií 10 m², který se nachází v novostavbě na ulici Elektrická ve Zlíně – Prštné. Byt je ideální pro jednotlivce nebo pár, kteří hledají komfortní a úsporné bydlení s vlastním venkovním prostorem.
V bytě jsou vítáni mazlíčci menšího vzrůstu.
Dispozice a vybavení
• Obytná místnost s kuchyňským koutem
• Plně vybavená kuchyň: vestavěná lednice, myčka, trouba, mikrovlnka
• Koupelna s velkým sprchovým koutem, WC, umyvadlem se skříňkou, zrcadlem a elektrickým boilerem
• V předsíni vestavěná skříň na oblečení i boty
• Klimatizace, venkovní žaluzie a nucená výměna vzduchu pro pohodlí po celý rok
• Sklepní kóje součástí
• Vyhrazené parkovací stání přímo u domu
• A navíc: velkorysá lodžie o výměře 10 m² – ideální na ranní kávu, lehátko nebo minizahrádku
Lokalita – Zlín, Prštné
• Klidná část města s výbornou dostupností do centra
• Zastávka MHD pár minut od domu (linky č. 6, 8, 9)
• V blízkosti cyklostezky, obchod, služby i příroda
• Rychlé spojení do centra Zlína i na výpadovky směrem na Otrokovice
Majitel si vyhrazuje právo výběru nájemce dle vlastního uvážení.
Kauce je stanovena ve výši 16.000,- Kč stejně tak i provize RK.
Byt je volný ihned – stačí si donést kartáček, kávu a dobré pantofle.
Ozvěte se dřív, než si ho zamluví někdo rychlejší – rád vás osobně provedu.
Děkuji a budu se těšit na prohlídce, David Kašný - Váš férový makléř & EXPLICIT REALITY
Tento byt je nabízen k podnájmu prostřednictvím služby Explicitní Nájemník
Díky službě Explicitní Nájemník získáváte jako nájemce vyšší standard podnájemního bydlení a celkově pohodlnější zážitek. Automaticky máte k dispozici tyto výhody:
Pojištění domácnosti a odpovědnosti za škody v běžném životě, včetně non-stop asistenční linky
Zákaznickou podporu každý pracovní den od 8:00 do 17:00 – pro vaše dotazy, požadavky nebo pomoc s nájemní smlouvou
Technickou asistenci – např. zajištění zámečníka, havarijní opravy či řešení jiných technických problémů v bytě
Možnost výměny bytu – kdykoli můžete požádat o změnu na menší, větší nebo v jiné lokalitě z portfolia bytů služby Explicitní Nájemník nebo Explicit Reality
Podnájem přes Explicitního Nájemníka je jednoduchý, bezpečný a bez zbytečných starostí. Vše potřebné máte zajištěno v rámci jednoho spolehlivého servisu.
En. náročnost b.: B - Velmi úsporná (71 kWh/m2 za rok)
Cena: + energie 2.228,- Kč, + provize RK, včetně právního servisu.
|
| |||||||||||||||||||||||||||||||
Kontaktovat inzerenta emailem
Kontaktovat emailem může pouze ověřený uživatel.
Ověření je zdarma.
Vaše telefonní číslo *
Kontaktovat emailem může pouze ověřený uživatel.
Ověření je zdarma.
Vaše telefonní číslo *
Podobné inzeráty
Pronájem bytu 2+1, Zlín- třída Tomáše Bati - [13.11. 2025]Pronájem zrekonstruovaného bytu 2+1 ve Zlíně v blízkosti centra města, třída Tomáše Bati (kousek za policií ČR). Výborná pěší dostupnost do centra města. Jedná se o nízkopodlažní cihlový dům bez výtahu. Byt je po zdařilé rekonstrukci. Dispozice: vstu ...
13 824 Kč
Zlín
760 01
760 01
66 x
Označit špatný inzerát Chybnou kategorii Ohodnotit uživatele Smazat/Upravit/Topovat
Pronájem bytu 2+1, Dlouhá, Zlín, 13000 Kč/měs, 56 m2 - [13.11. 2025]K dlouhodobému podnájmu nabízíme byt o dispozici 2+1 v lokalitě Zlín na ulici Dlouhou. Byt o celkové výměře 56 m2 se nachází ve 2. podlaží cihlového domu s výtahem. K bytu patří sklep.
Byt se nabízí částečně vybavený. Kuchyně disponuje elektrickou ...
13 000 Kč
Zlín
760 01
760 01
64 x
Označit špatný inzerát Chybnou kategorii Ohodnotit uživatele Smazat/Upravit/Topovat
Pronájem bytu 2+1 Zlín - [13.11. 2025]Pronájem prostorného bytu 2+1, o celkové ploše 66 m 2, v centru města Zlína. Dva pokoje jsou stejně velké a samostatné . Bytě je nová kuchyňská linka, sporák, varná konvice, mikrovlnka a lednice. Pokoje jsou velmi prostorné a neprůchozí. V koupe ...
12 500 Kč
Zlín
760 01
760 01
53 x
Označit špatný inzerát Chybnou kategorii Ohodnotit uživatele Smazat/Upravit/Topovat
PRONÁJEM BYTU 1+KK, ULICE ŠTEFÁNIKOVA, ZLÍN - TOP - [14.11. 2025]Byt 1+kk (č. 7) s vlastním vstupem o ploše 30 m² je ve sníženém přízemí v nově zrekonstruované a vybavené vile G2.
Dispozice a vybavení bytu: Kuchyňský kout se spotřebiči (lednice, varná deska, trouba, digestoř). Koupelna se sprchovým koutem a WC. ...
14 900 Kč
Zlín
760 01
760 01
37 x
Označit špatný inzerát Chybnou kategorii Ohodnotit uživatele Smazat/Upravit/Topovat
PRONÁJEM BYTU 2+KK VE ZLÍNĚ ZADNÍ LUHY - TOP - [14.11. 2025]Nabízíme k pronájmu byt 2+kk ve Zlíně-Zadní Luhy, velikost 44 m2.
Vybavení: postel s matrací, povlečením, přikrývkami, polštáři, kuchyňská linka s varnou deskou, troubou, mikrovlnnou troubou a lednicí, Smart TV Samsung, stůl + 2 židle, pohovka, k ...
16 900 Kč
Zlín
760 01
760 01
46 x
Označit špatný inzerát Chybnou kategorii Ohodnotit uživatele Smazat/Upravit/Topovat
PRONÁJEM BYTU 2+KK VE ZLÍNĚ V LOUKÁCH - TOP - [14.11. 2025]Útulný byt (č.1) 2+kk po nově provedené rekonstrukci o ploše 62 m² v domě po revitalizaci.
Dispozice a vybavení: Kuchyňský kout s vestavěnými spotřebiči značky Bosch (lednice s mrazákem, trouba, varná deska, myčka, mikrovlnná trouby, digestoř), po ...
21 000 Kč
Zlín
760 01
760 01
46 x
Označit špatný inzerát Chybnou kategorii Ohodnotit uživatele Smazat/Upravit/Topovat
Pronájem, Byty 1+kk, 22 m² - Zlín - Prštné, ev.č. 14350 - [13.11. 2025]Ev.č. 14350
Pronájem zařízeného bytu 1+kk ve Zlíně - Prštném, na ulici L. Váchy.
Byt se pronajímá zařízený, jak vidíte na fotografiích, včetně postele, skříně, stolu, kuchyňské linky s varnou deskou i lednicí (bez dekorací). Součástí bytu je rovně ...
6 500 Kč
Zlín
760 01
760 01
76 x
Označit špatný inzerát Chybnou kategorii Ohodnotit uživatele Smazat/Upravit/Topovat
Pronájem ateliéru 1+kk, 45 m² - Zlín (Loft), ev.č. 02488 - [12.11. 2025]Ev.č. 02488
Nabízím vám pronájem ateliéru (loft) o dispozici 1+kk, který je umístěn na ulici Devadesátá ve Zlíně.
- celková plocha 45 m²
- klidná lokalita, perfektní občanská vybavenost
- moderní designový interiér
- prosvětlený a vzdušný pros ...
13 900 Kč
Zlín
760 01
760 01
79 x
Označit špatný inzerát Chybnou kategorii Ohodnotit uživatele Smazat/Upravit/Topovat
Pronájem ateliéru 1+kk, 38 m² - Zlín (Loft), ev.č. 02490 - [12.11. 2025]Ev.č. 02490
Nabízím vám pronájem ateliéru (loft) o dispozici 1+kk, který je umístěn na ulici Devadesátá ve Zlíně.
- celková plocha 38 m²
- klidná lokalita, perfektní občanská vybavenost
- moderní designový interiér
- prosvětlený a vzdušný prost ...
12 500 Kč
Zlín
760 01
760 01
78 x
Označit špatný inzerát Chybnou kategorii Ohodnotit uživatele Smazat/Upravit/Topovat
Klidné bydlení u KnTB: Pronájem 1+1 s prostorným sklepem,... - [11.11. 2025]Hledáte klidné bydlení ve Zlíně u nemocnice KnTB?
Mám pro Vás nachystaný pronájem útulného bytu 1+1 v klidné lokalitě na ulici Zborovská.
Co vás čeká:
• Byt 1+1 (cca 31 m2) ve zvýšeném 1. NP (bez výtahu)
• Prostorný sklep (cca 7 m2)
• Nová kuchyňská ...
11 900 Kč
Zlín
760 01
760 01
115 x
Označit špatný inzerát Chybnou kategorii Ohodnotit uživatele Smazat/Upravit/Topovat