Prodej rodinného domu 6+1 , Uherské Hradiště - Jarošov, 528
- [19.11. 2025]Smazat/ Upravit/ Topovat






























Nabízíme k prodeji samostatně stojící rodinný dům s celkovou plochou 528 m² v klidné části Jarošova, městské části Uherského Hradiště. Dům se nachází ve slepé ulici, což zajišťuje naprostý klid, soukromí a minimální provoz vozidel – ideální pro rodiny s dětmi i vícegenerační bydlení nebo i k podníkaní.
Dům byl zkolaudován v roce 1993 a v roce 2010 prošel celkovou rekonstrukcí.Je postaven z kvalitních materiálů a je celkově zateplen. Díky dispozičnímu řešení jej lze využít i jako dvougenerační – v každém patře je příprava pro kuchyňskou část včetně odpadů a v domě jsou instalovány odpočtové elektroměry pro oddělené měření spotřeby.
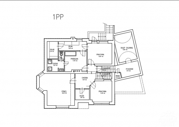
Dispozice a vybavení:
V přízemí se nachází :
-Vstupní chodba se zádveřím
-Prostorná hala s přístupem do všech místností
-Samostatná toaleta a koupelna
-Velký obývací prostor s kuchyňským koutem a jídelnou
-Ložnice
V patře najdete 4+KK:
-Dva dětské pokoje (pracovna)
-Ložnici
-Koupelnu s toaletou
-Přípravu pro kuchyňský kout,jídelny včetně obývací části
Exteriér a parkování:
K domu náleží zahrada vhodná pro odpočinek i rodinné aktivity. Parkování je možné jak v garáži, tak přímo u domu. Do garáže se vejdou dvě auta a další dvě parkovací stání jsou k dispozici venku na pozemku.
Lokalita:
Jarošov je klidná a vyhledávaná část Uherského Hradiště. V okolí se nachází škola, školka, dětské hřiště, cyklostezka i zastávka MHD. Do centra města, které nabízí kompletní občanskou vybavenost, se dostanete během několika minut.
Neváhejte a domluvte si prohlídku!
Tento dům vám poskytne pohodlné, klidné bydlení s možností dvougeneračního využití a okamžitého nastěhování.
Rádi Vám pomůžeme i s vyřízením financování na míru. Prohlídky možné po předchozí domluvě.
Dům byl zkolaudován v roce 1993 a v roce 2010 prošel celkovou rekonstrukcí.Je postaven z kvalitních materiálů a je celkově zateplen. Díky dispozičnímu řešení jej lze využít i jako dvougenerační – v každém patře je příprava pro kuchyňskou část včetně odpadů a v domě jsou instalovány odpočtové elektroměry pro oddělené měření spotřeby.
Dispozice a vybavení:
V přízemí se nachází :
-Vstupní chodba se zádveřím
-Prostorná hala s přístupem do všech místností
-Samostatná toaleta a koupelna
-Velký obývací prostor s kuchyňským koutem a jídelnou
-Ložnice
V patře najdete 4+KK:
-Dva dětské pokoje (pracovna)
-Ložnici
-Koupelnu s toaletou
-Přípravu pro kuchyňský kout,jídelny včetně obývací části
Exteriér a parkování:
K domu náleží zahrada vhodná pro odpočinek i rodinné aktivity. Parkování je možné jak v garáži, tak přímo u domu. Do garáže se vejdou dvě auta a další dvě parkovací stání jsou k dispozici venku na pozemku.
Lokalita:
Jarošov je klidná a vyhledávaná část Uherského Hradiště. V okolí se nachází škola, školka, dětské hřiště, cyklostezka i zastávka MHD. Do centra města, které nabízí kompletní občanskou vybavenost, se dostanete během několika minut.
Neváhejte a domluvte si prohlídku!
Tento dům vám poskytne pohodlné, klidné bydlení s možností dvougeneračního využití a okamžitého nastěhování.
Rádi Vám pomůžeme i s vyřízením financování na míru. Prohlídky možné po předchozí domluvě.
|
| |||||||||||||||||||||||||||||||
Kontaktovat inzerenta emailem
Kontaktovat emailem může pouze ověřený uživatel.
Ověření je zdarma.
Vaše telefonní číslo *
Kontaktovat emailem může pouze ověřený uživatel.
Ověření je zdarma.
Vaše telefonní číslo *
Podobné inzeráty
Prodej rodinného domu 5+kk, Uherské Hradiště - Větrná - [18.11. 2025]Naše společnost Vám nabízí na prodej nadstandardní rodinný dům s dispozicí 5+kk v Uherském Hradišti - Větrná. Jedná se o patrový cihlový dům s čistou obytnou plochou 148 m² + 47 m² dvougaráž + terasa. Zahrada za domem má 225 m². Rodinný dům se v 1.NP ...
11 990 000 Kč
Uherské Hradiště
686 01
686 01
249 x
Označit špatný inzerát Chybnou kategorii Ohodnotit uživatele Smazat/Upravit/Topovat
Rodinný dům s dispozicí 2+1 a 3+kk ve vyhledávané lokalitě – - TOP - [20.11. 2025]Exkluzivně nabízíme prodej cihlového rodinného domu v jedné z nejprestižnějších lokalit Uherského Hradiště – v klidné a velmi ceněné ulici Svatováclavská.
Tato adresa patří dlouhodobě mezi nejžádanější díky svému rezidenčnímu charakteru, nízkému pro ...
15 999 000 Kč
Uherské Hradiště
686 01
686 01
452 x
Označit špatný inzerát Chybnou kategorii Ohodnotit uživatele Smazat/Upravit/Topovat
Prodej bezbariérového domu 4+kk v Uherském Hradišti – Jarošo - [5.11. 2025]Prodej bezbariérového domu 4+kk v Uherském Hradišti – Jarošově.
Tento dům není jen zdi, střecha a číslo popisné.
Je to příběh tvořený srdcem – o proměně starého domu v teplý, útulný a bezpečný domov, kam se budete rádi vracet. Každý kout a každý det ...
8 800 000 Kč
Uherské Hradiště
686 01
686 01
522 x
Označit špatný inzerát Chybnou kategorii Ohodnotit uživatele Smazat/Upravit/Topovat
Prodej domu, bytu 4kk, 3kk, 2kk (250+120+50m2), klidná ulice - [2.11. 2025]Nabízím prodej bytového domu, kde jsou 3 oddělené byty, na třech podlažích a sklepy. Výborná investice s garantovaným výnosem 5 %, který se časem ještě zvyšuje. Nebo možnost vlastního bydlení, kde nájemné z ostatních bytů, pomáhá se splátkou hypotéky ...
14 500 000 Kč
Uherské Hradiště
686 01
686 01
499 x
Označit špatný inzerát Chybnou kategorii Ohodnotit uživatele Smazat/Upravit/Topovat
PRODEJ RD UHERSKÉ HRADIŠTĚ-SADY - [31.10. 2025]Obec: Uherské Hradiště, Sady
Ulice: Za Kovárnou
IS: veškeré IS
Počet bytů: 1 ( 3+KK )
Počet koupelen: 1
Počet kuchyní: 1
Počet WC: 1
Okna: Plastová
Topení: ÚT El. Kotel
Sklep: Ano
Rozvod elektřiny: měď
Užitná plocha: 107 m2
Celková ploc ...
6 650 000 Kč
Uherské Hradiště
686 01
686 01
522 x
Označit špatný inzerát Chybnou kategorii Ohodnotit uživatele Smazat/Upravit/Topovat









