Pronájem komerčních prostor 183 m² – Zlín, u Tescomy
- [19.11. 2025]Smazat/ Upravit/ Topovat






























Ev.č. 14313
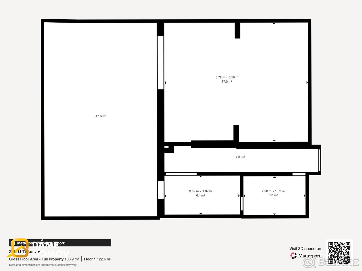
Nabízíme k pronájmu atraktivní komerční prostory o celkové výměře 183 m² s dostatečnou parkovací a manipulační plochou v průmyslové zóně na ulici U Tescomy ve Zlíně, pouhých pár minut od centra města.
Dispozice prostor:
Před budovou: parkovací a manipulační plocha o rozloze 195 m² (15m × 13 m).
Přízemí – 119 m²: otevřený prostor vhodný pro kanceláře, showroom, detailingové centrum, autoservis, pneuservis, různé služby či menší provoz.
Hlavní výhodou přízemí je přímý vstup přes tři garážová vrata, což vytváří ideální podmínky například pro auto-detailing, auto-pneu servis nebo jiné podnikání, kde je potřeba více vnitřních pracovních stání pro vozidla.
1. patro – 64 m²: ideální jako zázemí, kanceláře nebo sklad.
Celková plocha: 183 m² vnitřních prostorů, 195 m² venkovní plochy
Výhody lokality
- Prostorné parkoviště před budovou
- 3 vnitřní garážová stání
- Skvělá dostupnost autem i MHD
- Kompletní občanská vybavenost v okolí
- Frekventovaná poloha u Tescomy a blízkost centra města
- Flexibilní využití prostor s možností úprav dle dohody
Nájemné a poplatky:
Nájemné: 30 000 Kč / měsíc
Energie: 8 300 Kč / měsíc
Celkové měsíční náklady: 38 300 Kč
Při podpisu smlouvy se hradí vratná kauce a provize realitní kanceláři, obě ve výši jednoho celkového měsíčního nájemného.
Další informace:
V roce 2026 bude instalována fotovoltaická elektrárna, která povede ke snížení měsíčních nákladů na energie.
Pokud hledáte prostory pro své podnikání ve strategické lokalitě Zlína, neváhejte mě kontaktovat a domluvit si prohlídku.
Těšíme se na vás,
Dáme Domov & Gordana Bilecová
En. náročnost b.: G - Mimořádně nehospodárná
Cena: bez poplatků, + provize RK.
Nabízíme k pronájmu atraktivní komerční prostory o celkové výměře 183 m² s dostatečnou parkovací a manipulační plochou v průmyslové zóně na ulici U Tescomy ve Zlíně, pouhých pár minut od centra města.
Dispozice prostor:
Před budovou: parkovací a manipulační plocha o rozloze 195 m² (15m × 13 m).
Přízemí – 119 m²: otevřený prostor vhodný pro kanceláře, showroom, detailingové centrum, autoservis, pneuservis, různé služby či menší provoz.
Hlavní výhodou přízemí je přímý vstup přes tři garážová vrata, což vytváří ideální podmínky například pro auto-detailing, auto-pneu servis nebo jiné podnikání, kde je potřeba více vnitřních pracovních stání pro vozidla.
1. patro – 64 m²: ideální jako zázemí, kanceláře nebo sklad.
Celková plocha: 183 m² vnitřních prostorů, 195 m² venkovní plochy
Výhody lokality
- Prostorné parkoviště před budovou
- 3 vnitřní garážová stání
- Skvělá dostupnost autem i MHD
- Kompletní občanská vybavenost v okolí
- Frekventovaná poloha u Tescomy a blízkost centra města
- Flexibilní využití prostor s možností úprav dle dohody
Nájemné a poplatky:
Nájemné: 30 000 Kč / měsíc
Energie: 8 300 Kč / měsíc
Celkové měsíční náklady: 38 300 Kč
Při podpisu smlouvy se hradí vratná kauce a provize realitní kanceláři, obě ve výši jednoho celkového měsíčního nájemného.
Další informace:
V roce 2026 bude instalována fotovoltaická elektrárna, která povede ke snížení měsíčních nákladů na energie.
Pokud hledáte prostory pro své podnikání ve strategické lokalitě Zlína, neváhejte mě kontaktovat a domluvit si prohlídku.
Těšíme se na vás,
Dáme Domov & Gordana Bilecová
En. náročnost b.: G - Mimořádně nehospodárná
Cena: bez poplatků, + provize RK.
|
| |||||||||||||||||||||||||||||||
Kontaktovat inzerenta emailem
Kontaktovat emailem může pouze ověřený uživatel.
Ověření je zdarma.
Vaše telefonní číslo *
Kontaktovat emailem může pouze ověřený uživatel.
Ověření je zdarma.
Vaše telefonní číslo *









