Prodej bytu 3+kk 44 m² Václava Košaře, Ostrava - Dubina
- [28.11. 2025]Smazat/ Upravit/ Topovat



























Malý byt nafouknutý do obřích rozměrů. 3+kk na výměře 44m2 kde je efektivně využitý každý centimetr pro pohodlné bydlení i větší rodiny.
Nabízený družstevní zrekonstruovaný byt je v 1.patře zrevitalizovaného bytového domu v klidné a slušné části Dubiny, kde si jej během chvilky zamilujete pro jeho přehledné uspořádání, koupelnu přístupnou ihned z chodby a obrovskou skříň hned za vstupními dveřmi.
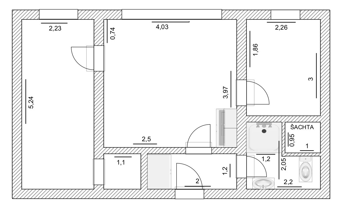
Ale vezměme to popořadě. Po vstupu do bytu se octnete v 3,6m2 velké chodbě, jejíž součástí je nalevo umístěná vestavěná skříň s atypickou hloubkou 97cm, kam dokážete uložit opravdu hooodně věcí. Napravo od vstupních dveří je se svými 3,4m2 koupelna s prostorným sprchovým koutem, toaletou a umyvadlem.
Dále pak vstoupíte do prostředního velkého pokoje s výměrou 16m2, který je rozdělen na část s rohovou pohovkou, kuchyňským koutem a jídelním stolem. Kuchyňská linka je menších rozměrů ale v galerii pak najdete zpracovaný návrh pro zvětšení na kuchyňskou linku přes celou stěnu, kdy tímto dosáhnete plnohodnotné kuchyně s dostatečným množstvím skladovacích prostor a také větší pracovní a přípravnou plochou jak pro masterchefa.
Vpravo i vlevo od tohoto pokoje se nacházejí dva menší pokojíky o výměře 6,85m2 vpravo a 11,7m2 nalevo. Ten větší je navíc vybaven výklenkem 1,3m2 sloužícím jako šatna. Oba tyto v současném uspořádání slouží jako ložnice.
Jako další úložný prostor vás nadchne i pořádný sklep o výměře 1,9m2.
Ať už byt využijete pro občasné přespání, nebo pro dlouhodobé bydlení, jistě oceníte družstvo, které spravuje výlučně tento jediný panelový dům a vzorně se o něj stará. Dále také slušné a klidné sousedy, parkování přímo před domem, nebo třeba dětská hřiště v okolí, na nichž se vyřádí děti od nejmenších až po puberťáky - je tu i menší skatepark. V docházkové vzdálenosti je MŠ i ZŠ, potraviny, restaurace, hospůdka, lékárna, tramvajové i autobusové zastávky a další.
Financování družstevního bytu bankou vám rádi zajistíme.
Pokud vás tento byt zaujal jako mě, ozvěte se pro domluvení prohlídky. Rád vás tu provedu.
Pozn.: Energetický štítek v nejbližší době doplníme, zatím musíme ze zákonných důvodů uvést třídu G. Uvedená kupní cena nezahrnuje zprostředkovatelský poplatek 150.000Kč.
Nabízený družstevní zrekonstruovaný byt je v 1.patře zrevitalizovaného bytového domu v klidné a slušné části Dubiny, kde si jej během chvilky zamilujete pro jeho přehledné uspořádání, koupelnu přístupnou ihned z chodby a obrovskou skříň hned za vstupními dveřmi.
Ale vezměme to popořadě. Po vstupu do bytu se octnete v 3,6m2 velké chodbě, jejíž součástí je nalevo umístěná vestavěná skříň s atypickou hloubkou 97cm, kam dokážete uložit opravdu hooodně věcí. Napravo od vstupních dveří je se svými 3,4m2 koupelna s prostorným sprchovým koutem, toaletou a umyvadlem.
Dále pak vstoupíte do prostředního velkého pokoje s výměrou 16m2, který je rozdělen na část s rohovou pohovkou, kuchyňským koutem a jídelním stolem. Kuchyňská linka je menších rozměrů ale v galerii pak najdete zpracovaný návrh pro zvětšení na kuchyňskou linku přes celou stěnu, kdy tímto dosáhnete plnohodnotné kuchyně s dostatečným množstvím skladovacích prostor a také větší pracovní a přípravnou plochou jak pro masterchefa.
Vpravo i vlevo od tohoto pokoje se nacházejí dva menší pokojíky o výměře 6,85m2 vpravo a 11,7m2 nalevo. Ten větší je navíc vybaven výklenkem 1,3m2 sloužícím jako šatna. Oba tyto v současném uspořádání slouží jako ložnice.
Jako další úložný prostor vás nadchne i pořádný sklep o výměře 1,9m2.
Ať už byt využijete pro občasné přespání, nebo pro dlouhodobé bydlení, jistě oceníte družstvo, které spravuje výlučně tento jediný panelový dům a vzorně se o něj stará. Dále také slušné a klidné sousedy, parkování přímo před domem, nebo třeba dětská hřiště v okolí, na nichž se vyřádí děti od nejmenších až po puberťáky - je tu i menší skatepark. V docházkové vzdálenosti je MŠ i ZŠ, potraviny, restaurace, hospůdka, lékárna, tramvajové i autobusové zastávky a další.
Financování družstevního bytu bankou vám rádi zajistíme.
Pokud vás tento byt zaujal jako mě, ozvěte se pro domluvení prohlídky. Rád vás tu provedu.
Pozn.: Energetický štítek v nejbližší době doplníme, zatím musíme ze zákonných důvodů uvést třídu G. Uvedená kupní cena nezahrnuje zprostředkovatelský poplatek 150.000Kč.
|
| |||||||||||||||||||||||||||||||
Kontaktovat inzerenta emailem
Kontaktovat emailem může pouze ověřený uživatel.
Ověření je zdarma.
Vaše telefonní číslo *
Kontaktovat emailem může pouze ověřený uživatel.
Ověření je zdarma.
Vaše telefonní číslo *
Podobné inzeráty
Byt 2 + 1 v osobním vlastnictví, Ostrava Zábřeh. - [29.11. 2025]Na prodej byt 2+1 v osobním vlastnictví,
52,63 m + navíc veliká uzavřená lodžie.
První podlaží - zvýšené přízemí.
Ostrava Zábřeh, ul. Strelkovova v těsné blízkosti Bělského lesa - cca 200 m.
Byt je v původním dobrém suchém stavu s vlastním topen ...
3 250 000 Kč
Ostrava
700 30
700 30
14 x
Označit špatný inzerát Chybnou kategorii Ohodnotit uživatele Smazat/Upravit/Topovat
Prodej bytu - [28.11. 2025]Nabizím k prodeji a k fajn žití krásný, slunný družstevní byt 4+1, 78.4 m2, po velmi zdařilé rekonstrukci. Byt se nachazí ve 3 patře 8 pod. panelového domu, který je rovněž revitalizován. Dům se nachází v klidné části OV Zabřeh, ulice V Zalomu 12, je ...
5 190 000 Kč
Ostrava
700 30
700 30
109 x
Označit špatný inzerát Chybnou kategorii Ohodnotit uživatele Smazat/Upravit/Topovat
Prodej moderně zrekonstruovaného bytu 3+kk v osobním vlastni - [28.11. 2025]Nabízíme vám jedinečnou příležitost ke koupi moderně zrekonstruovaného bytu 3+kk v osobním vlastnictví, situovaného ve vyhledávané lokalitě Ostrava-Zábřeh, v těsné blízkosti oblíbené restaurace Zámeček.
Byt právě prochází kompletní rekonstrukcí a bu ...
4 990 000 Kč
Ostrava
700 30
700 30
61 x
Označit špatný inzerát Chybnou kategorii Ohodnotit uživatele Smazat/Upravit/Topovat
Prodej bytu 3+1, 59 m², ul. Výškovická, Ostrava - jih Zábřeh - [27.11. 2025]BOžské výhledy na město i Beskydy díky vyššímu patru. Tohle a mnohem více nabízí byt 3+1 na ulici Výškovická, který Vám nabízíme ke koupi. Byt má užitnou plochu 59 m² a nachází se na 12.NP. Před časem prošel rekonstrukcí a je zde tudíž vyzděné jádro ...
4 150 000 Kč
Ostrava
700 30
700 30
59 x
Označit špatný inzerát Chybnou kategorii Ohodnotit uživatele Smazat/Upravit/Topovat
Prodej, byty/2+1, 52 m2, Gerasimovova 1792/24, 70030 Ostrava - [27.11. 2025]Prodej, byty/2+1, 52 m2, Gerasimovova 1792/24, 70030 Ostrava, Ostrava-město [ID 76428]
DO KONCE ROKU PROBÍHÁ SLEVA NA TENTO BYT!
Akční cena 3.000.000,-
Po novém roce se cena opět zvedne na 3.090.000,-
Vážení zájemci,
dovoluji si Vám nabídnout ke ...
3 000 000 Kč
Ostrava
700 30
700 30
74 x
Označit špatný inzerát Chybnou kategorii Ohodnotit uživatele Smazat/Upravit/Topovat
Prodej bytu 3+1, Ostrava Zábřeh - [27.11. 2025]Je to byt, který nepůsobí jen jako prostor. Má svou energii, příběh a atmosféru, kterou budete chtít žít.
Na vyhledávané ulici Bedrnova v Ostravě–Zábřehu vznikl domov, který si vás získá hned při první návštěvě. Nabízím elegantní byt 3+1 o rozloze 6 ...
4 050 000 Kč
Ostrava
700 30
700 30
83 x
Označit špatný inzerát Chybnou kategorii Ohodnotit uživatele Smazat/Upravit/Topovat
Byt 4+kk Mitušová, Ostrava Hrabůvka, 132294 - [26.11. 2025]Nabízíme nově a moderně zrekonstruovaný byt o dispozici 4+kk ve vyhledávané lokalitě Ostrava - Hrabůvka. Byt je prostorný, pokoje neprůchozí, výhled do zeleně a to ze všech oken, klidná a tichá lokalita. Kuchyně je vybavená moderními spotřebiči, obýv ...
4 999 000 Kč
Ostrava
700 30
700 30
79 x
Označit špatný inzerát Chybnou kategorii Ohodnotit uživatele Smazat/Upravit/Topovat
Byt po rekonstrukci 2+1, ul. Horní, Ostrava-Hrabůvka, 134062 - TOP - [29.11. 2025]Dobře ekonomicky fungující družstvo! FOND OPRAV POUZE 589,-Kč!!!!
Nabízíme k prodeji byt po kompletní rekonstrukci na ulici Horní v části obce Hrabůvka. Byt má výhled do dvou světových stran a nachází se ve 2. NP nízké zástavby. Jedná se o dispozi ...
3 299 000 Kč
Ostrava
700 30
700 30
128 x
Označit špatný inzerát Chybnou kategorii Ohodnotit uživatele Smazat/Upravit/Topovat
PRODEJ BYTU 3+1, MAROLDOVA, OSTRAVA - TOP - [29.11. 2025]V zastoupení majitele, nabízím k prodeji krásný byt 3+1 s balkónem v osobním vlastnictví, 69 m2, ul. Maroldova, Ostrava, 7NP/8NP. Byt prošel v minulosti kompletní rekonstrukcí.
Pro více info a prohlídku volejte.
3 999 000 Kč
Ostrava
700 30
700 30
285 x
Označit špatný inzerát Chybnou kategorii Ohodnotit uživatele Smazat/Upravit/Topovat
Prodej 2+1, Ostrava - Hrabůvka, ul. Fr. Hajdy, lodžie, 52 m2 - TOP - [29.11. 2025]Ve výhradním zastoupení vlastníka družstevního podílu nabízíme k prodeji družstevní byt 2+1 s možností převodu do osobního vlastnictví, na ulici Fr. Hajdy v Ostravě - Hrabůvce. Byt o výměře 52 m2, s lodžií, se nachází ve 2. nadzemním podlaží (1. patr ...
3 199 000 Kč
Ostrava
700 30
700 30
119 x
Označit špatný inzerát Chybnou kategorii Ohodnotit uživatele Smazat/Upravit/Topovat






