Prodej rodinného domu a mlýna, 14860 m², Hlohová
- [28.11. 2025]Smazat/ Upravit/ Topovat






























Exkluzivní prodej nemovitosti s bohatou, 400 let starou, minulostí a potenciálem do budoucnosti. Historický mlýn Paseka u Staňkova na říčce Zubřina. Výjimečné místo zapsané jako kulturní památka. Komplex s barokní dispozicí budované po 300 let mlynářským rodem Pavlíků, které si dodnes uchovává jedinečnou atmosféru minulých časů. Nabízený komplex se skládá ze dvou čísel popisných.
V dolní části dominuje budova mlýna s obytnou a mlýnskou částí, jejíž součástí je i malá vodní elektrárna fungující do roku 2017 s Francisovou turbínou z roku 1929. Dále se tu nachází rozsáhlé hospodářské stavby - opravdu velká částečně podsklepená stodola, kolna, chlévy a další. Část objektů je po rekonstrukci po požáru z roku 2009, část rekonstrukci teprve vyžaduje. Součástí mlýna je částečně zachovalé mlynářské složení z 20.let 20.století. Objekt nabízí mnoho možností k využití. Je tu možno obnovit mlýn, elektrárnu, nebo se může jednat o zcela nové využití - např. pro konání svateb a podobných třeba kulturních akcí, školení atp. Ale nabízí se tu i zázemí pro výrobu, sklady, ubytování, ateliéry, galerii, muzeum atd. Místo představuje ideální příležitost pro někoho, kdo případně rozumí řemeslu a nebojí se výzev. Horní část má za základ původní výměnek, který sloužil do roku 2024 jako rodinný dům. Tato stavba není předmětem památkové ochrany. Na pozemek je přivedena elektřina a telefonní přípojka.
Díky své poloze, rozloze a charakteru má nemovitost široké možnosti využití – od rekonstrukce na stylové bydlení, přes rekreační nebo ubytovací zařízení, až po komerční projekt.
Tento mlýn osloví každého, kdo hledá autentické místo s duší, historií a potenciálem, obklopené klidem přírody. Je to investice do jedinečného objektu, který má svou minulost – a čeká na nového majitele, který mu dá budoucnost.
Pro více informací neváhejte kontaktovat makléře.
ev.č.: 1031
poloha objektu: Samostatný
druh objektu: Smíšená
stav objektu: Před rekonstrukcí
umístění objektu: Samota
typ domu: Patrový
velikost: 5 a více pokojů
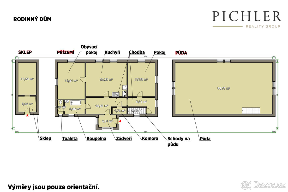
zastavěná plocha (m2): 1002
užitná plocha (m2): 1500
plocha parcely (m2): 14860
celková plocha (m2): 14860
počet podlaží objektu: 2
V dolní části dominuje budova mlýna s obytnou a mlýnskou částí, jejíž součástí je i malá vodní elektrárna fungující do roku 2017 s Francisovou turbínou z roku 1929. Dále se tu nachází rozsáhlé hospodářské stavby - opravdu velká částečně podsklepená stodola, kolna, chlévy a další. Část objektů je po rekonstrukci po požáru z roku 2009, část rekonstrukci teprve vyžaduje. Součástí mlýna je částečně zachovalé mlynářské složení z 20.let 20.století. Objekt nabízí mnoho možností k využití. Je tu možno obnovit mlýn, elektrárnu, nebo se může jednat o zcela nové využití - např. pro konání svateb a podobných třeba kulturních akcí, školení atp. Ale nabízí se tu i zázemí pro výrobu, sklady, ubytování, ateliéry, galerii, muzeum atd. Místo představuje ideální příležitost pro někoho, kdo případně rozumí řemeslu a nebojí se výzev. Horní část má za základ původní výměnek, který sloužil do roku 2024 jako rodinný dům. Tato stavba není předmětem památkové ochrany. Na pozemek je přivedena elektřina a telefonní přípojka.
Díky své poloze, rozloze a charakteru má nemovitost široké možnosti využití – od rekonstrukce na stylové bydlení, přes rekreační nebo ubytovací zařízení, až po komerční projekt.
Tento mlýn osloví každého, kdo hledá autentické místo s duší, historií a potenciálem, obklopené klidem přírody. Je to investice do jedinečného objektu, který má svou minulost – a čeká na nového majitele, který mu dá budoucnost.
Pro více informací neváhejte kontaktovat makléře.
ev.č.: 1031
poloha objektu: Samostatný
druh objektu: Smíšená
stav objektu: Před rekonstrukcí
umístění objektu: Samota
typ domu: Patrový
velikost: 5 a více pokojů
zastavěná plocha (m2): 1002
užitná plocha (m2): 1500
plocha parcely (m2): 14860
celková plocha (m2): 14860
počet podlaží objektu: 2
|
| |||||||||||||||||||||||||||||||
Kontaktovat inzerenta emailem
Kontaktovat emailem může pouze ověřený uživatel.
Ověření je zdarma.
Vaše telefonní číslo *
Kontaktovat emailem může pouze ověřený uživatel.
Ověření je zdarma.
Vaše telefonní číslo *









