Pronájem dílny/skladu, 106 m2, Libosváry-Loukov
- [2.12. 2025]Smazat/ Upravit/ Topovat












Nabízím pronájem nemovitosti v Libosvárech (část obce Loukov ve Zlínském kraji) o zastavěné ploše 106 m2 s celkovým pozemkem (365 m2). Budova v dobrém stavu, vhodná pro skladovací prostory, dílnu či lehkou výrobu (stavba občanského vybavení). V minulosti využíváno jako potraviny, následně prostor sloužil pro opravu motocyklů, jízdních kol a malé zahradní techniky.
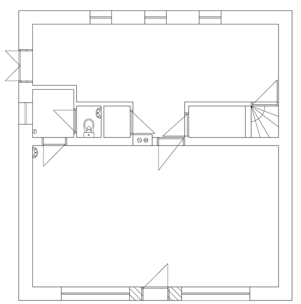
Prostory: přední místnost (46 m2), zadní místnost (27 m2), místnost pro personál (3 m2), místnost sociálního zařízení (1 m2), technická místnost (1 m2). K dispozici je i prostorná půda a menší sklepní prostor pod půdním schodištěm).
Možnost parkování aut vedle budovy. Za budovou je neoplocená zahrada.
Budova se nachází ve středu obce, okolní zástavbu tvoří rodinné domy a stavba občanské vybavenosti. Přístup je ze silnice III. třídy po zpevněných plochách - chodnících. Do zadní části objektu je přístup dopravní obsluze zajištěn po nezpevněné ploše napojené na silnici.
Vhodné pro dílnu, sklad, servis nebo lehkou výrobu.
Prostor je ihned k dispozici.
Cena dohodou.
V případě zájmu mě prosím kontaktujte.
Prostory: přední místnost (46 m2), zadní místnost (27 m2), místnost pro personál (3 m2), místnost sociálního zařízení (1 m2), technická místnost (1 m2). K dispozici je i prostorná půda a menší sklepní prostor pod půdním schodištěm).
Možnost parkování aut vedle budovy. Za budovou je neoplocená zahrada.
Budova se nachází ve středu obce, okolní zástavbu tvoří rodinné domy a stavba občanské vybavenosti. Přístup je ze silnice III. třídy po zpevněných plochách - chodnících. Do zadní části objektu je přístup dopravní obsluze zajištěn po nezpevněné ploše napojené na silnici.
Vhodné pro dílnu, sklad, servis nebo lehkou výrobu.
Prostor je ihned k dispozici.
Cena dohodou.
V případě zájmu mě prosím kontaktujte.
|
| |||||||||||||||||||||||||||||||
Kontaktovat inzerenta emailem
Kontaktovat emailem může pouze ověřený uživatel.
Ověření je zdarma.
Vaše telefonní číslo *
Kontaktovat emailem může pouze ověřený uživatel.
Ověření je zdarma.
Vaše telefonní číslo *