Milovice. Pronájem komerčního prostoru 120 m2 (bývalá zastav
- [8.12. 2025]Smazat/ Upravit/ Topovat














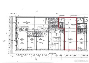
Nabízíme Vám k pronájmu komerční prostor 120 m2 v obchodním domě v centru města Milovice, okr. Nymburk. Komerční prostor (prodejna č. 6) se nachází na velmi frekventovaném místě v centru města Milovice. Vstup do každého obchodu je samostatný. Vlastní plocha prodejny je cca 120 m2. Vytápění zajišťuje elektrokotel. Ve všech prostorách jsou keramické dlažby. Okna a vstupní dveře jsou plastová. Zázemí: samostatné WC, sklad, prostor pro kuchyňku, sprchový kout. Před prostorem se nachází rozlehlé parkoviště. Poplatky: voda - rozpočítává se spotřeba dle stavu vodoměrů, elektro se převádí na nájemce. První měsíc nájmu ZDARMA na zařízení provozovny. Volné ihned.
ev.č.: 4151
+ elektřina a voda, vratná kauce + RK
třída energetické náročnosti budovy: G - Mimořádně nehospodárná
dle vyhlášky č.264/2020 Sb.
druh objektu: Cihlová
stav objektu: Velmi dobrý
typ domu: Přízemní
zastavěná plocha (m2): 120
plocha kanceláří (m2): 120
číslo podlaží v objektu: 1
počet podlaží objektu: 1
počet míst k parkování: 16
ev.č.: 4151
+ elektřina a voda, vratná kauce + RK
třída energetické náročnosti budovy: G - Mimořádně nehospodárná
dle vyhlášky č.264/2020 Sb.
druh objektu: Cihlová
stav objektu: Velmi dobrý
typ domu: Přízemní
zastavěná plocha (m2): 120
plocha kanceláří (m2): 120
číslo podlaží v objektu: 1
počet podlaží objektu: 1
počet míst k parkování: 16
|
| |||||||||||||||||||||||||||||||
Kontaktovat inzerenta emailem
Kontaktovat emailem může pouze ověřený uživatel.
Ověření je zdarma.
Vaše telefonní číslo *
Kontaktovat emailem může pouze ověřený uživatel.
Ověření je zdarma.
Vaše telefonní číslo *