Stavební pozemek Studénka
- [13.4. 2026]Smazat/ Upravit/ Topovat








Nabízím oplocený, rovinatý a plně zasíťovaný pozemek o velikosti 655 m², situovaný v klidné vilové čtvrti Studénky. Lokalita poskytuje dostatek soukromí a příjemné prostředí pro výstavbu rodinného domu, zároveň však zůstává dobře dostupná ke službám i dopravě.
Uliční šíře: 15 m
Sítě na pozemku: elektřina, voda, kanalizace
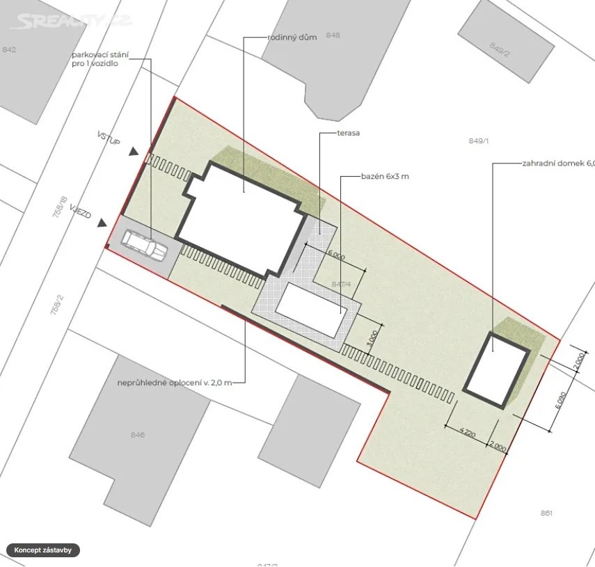
Vhodné pro výstavbu rodinného domu
Na fotografiích je uvedena ilustrační vizualizace možného umístění domu.
Cena: 2 100 000 Kč
Pro více informací mě neváhejte kontaktovat.
Uliční šíře: 15 m
Sítě na pozemku: elektřina, voda, kanalizace
Vhodné pro výstavbu rodinného domu
Na fotografiích je uvedena ilustrační vizualizace možného umístění domu.
Cena: 2 100 000 Kč
Pro více informací mě neváhejte kontaktovat.
|
| |||||||||||||||||||||||||||||||
Kontaktovat inzerenta emailem
Kontaktovat emailem může pouze ověřený uživatel.
Vaše telefonní číslo *
Kontaktovat emailem může pouze ověřený uživatel.
Vaše telefonní číslo *