Pronájem bytu 3+1, Lucemburská, Žižkov, 31900 Kč/měs, 76 m2
- [19.8. 2025]Smazat/ Upravit/ Topovat

























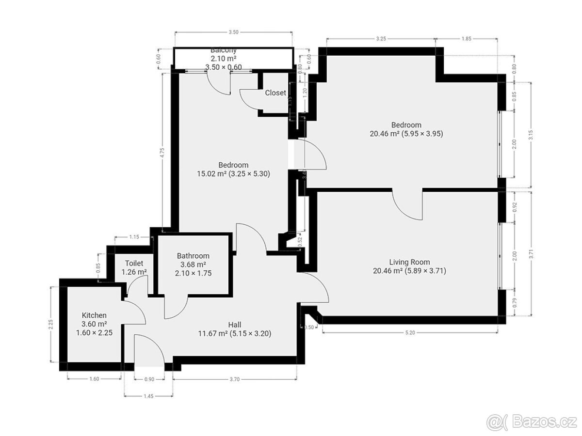
K dlouhodobému podnájmu nabízíme světlý byt 3+1 v oblíbené lokalitě pražského Žižkova. Byt o výměře 76 m² se nachází v 1. patře zděného domu s výtahem. K bytu náleží sklep a balkon s příjemným výhledem do ulice lemované zelení.
Byt je nabízen nezařízený, což umožňuje přizpůsobit si interiér dle vlastního stylu. Kuchyně je vybavena lednicí a kombinovaným sporákem. Obývací pokoj poskytuje dostatek prostoru i pro jídelní část. K dispozici jsou také dva samostatné pokoje, vhodné jako ložnice, dětský pokoj či pracovna. Součástí bytu je praktická komora. Koupelna je vybavena vanou, umyvadlem a pračkou, toaleta je samostatná.
V okolí domu se nachází široká občanská vybavenost – restaurace, kavárny, OC Flora, farmářské trhy na Jiřáku či školy. Pro volný čas je ideální park Parukářka, vzdálený pár minut minut chůze. Výbornou dopravní dostupnost zajišťuje blízká tramvajová zastávka a stanice metra Flora.
Byt je volný k nastěhování ihned.
Energetická třída: G (průkaz nedodán).
Poznámka k ceně: vratná jistota, náklady na bydlení 5 264 Kč, poplatek za podnájem
ID nabídky: N6599
Byt je nabízen nezařízený, což umožňuje přizpůsobit si interiér dle vlastního stylu. Kuchyně je vybavena lednicí a kombinovaným sporákem. Obývací pokoj poskytuje dostatek prostoru i pro jídelní část. K dispozici jsou také dva samostatné pokoje, vhodné jako ložnice, dětský pokoj či pracovna. Součástí bytu je praktická komora. Koupelna je vybavena vanou, umyvadlem a pračkou, toaleta je samostatná.
V okolí domu se nachází široká občanská vybavenost – restaurace, kavárny, OC Flora, farmářské trhy na Jiřáku či školy. Pro volný čas je ideální park Parukářka, vzdálený pár minut minut chůze. Výbornou dopravní dostupnost zajišťuje blízká tramvajová zastávka a stanice metra Flora.
Byt je volný k nastěhování ihned.
Energetická třída: G (průkaz nedodán).
Poznámka k ceně: vratná jistota, náklady na bydlení 5 264 Kč, poplatek za podnájem
ID nabídky: N6599
|
| |||||||||||||||||||||||||||||||
Kontaktovat inzerenta emailem
Kontaktovat emailem může pouze ověřený uživatel.
Ověření je zdarma.
Vaše telefonní číslo *
Kontaktovat emailem může pouze ověřený uživatel.
Ověření je zdarma.
Vaše telefonní číslo *




