prodej apartmánu 2+kk s terasou, 60m2, Harrachov
- [28.8. 2025]Smazat/ Upravit/ Topovat











Včetně parkovacího stání, zařízení a vybavení.
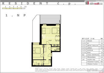
Včetně kompletního právního a realitního servisu., prodej nadstandardního horského apartmánu o dispozici 2+kk s vlastní předzahrádkou (6 m²) v prestižním a vyhledávaném areálu Resident Harrachov. Apartmán se nachází v klidné části resortu s krásným výhledem na okolní hory.
Dispozice a vybavení:
Obývací pokoj s moderním kuchyňským koutem včetně vestavěných spotřebičů
Koupelna po kompletní modernizaci
Podlahové vytápění
Sklepní kóje (3 m²)
Vlastní parkovací stání v uzavřeném areálu
Předzahrádka nabízí ideální prostor k relaxaci po dni stráveném v přírodě.
Wellness & služby:
Majitelé apartmánu mají přímý vstup do dvoupodlažního Grotta Spa – luxusního wellness centra s bazénem, saunou a relax zónou.
Lokalita:
Harrachov patří mezi nejatraktivnější horské destinace v ČR – ideální pro letní turistiku, cyklistiku, běžky i zimní sporty. V docházkové vzdálenosti najdete:
Ski areál
Bobovou dráhu
Hilby trail
Monkey Park pro děti
Přímý přístup na Jizerskou magistrálu
Investiční potenciál:
Atraktivní možnost krátkodobého pronájmu s vysokou obsazeností. V resortu je k dispozici snídaňový servis v samostatném prostoru v přízemí budovy.
Prohlídky možné i o víkendech. Rád vám zajistím nejvýhodnější financování hypotečním úvěrem dle aktuální nabídky na trhu.
Pro více informací mě neváhejte kontaktovat kdykoli.
Luxusní horské bydlení nebo výhodná investice – to vše v srdci Krkonoš! Ev. číslo: 651613. Energetický štítek: B (12 kWh/m2/rok).
Včetně kompletního právního a realitního servisu., prodej nadstandardního horského apartmánu o dispozici 2+kk s vlastní předzahrádkou (6 m²) v prestižním a vyhledávaném areálu Resident Harrachov. Apartmán se nachází v klidné části resortu s krásným výhledem na okolní hory.
Dispozice a vybavení:
Obývací pokoj s moderním kuchyňským koutem včetně vestavěných spotřebičů
Koupelna po kompletní modernizaci
Podlahové vytápění
Sklepní kóje (3 m²)
Vlastní parkovací stání v uzavřeném areálu
Předzahrádka nabízí ideální prostor k relaxaci po dni stráveném v přírodě.
Wellness & služby:
Majitelé apartmánu mají přímý vstup do dvoupodlažního Grotta Spa – luxusního wellness centra s bazénem, saunou a relax zónou.
Lokalita:
Harrachov patří mezi nejatraktivnější horské destinace v ČR – ideální pro letní turistiku, cyklistiku, běžky i zimní sporty. V docházkové vzdálenosti najdete:
Ski areál
Bobovou dráhu
Hilby trail
Monkey Park pro děti
Přímý přístup na Jizerskou magistrálu
Investiční potenciál:
Atraktivní možnost krátkodobého pronájmu s vysokou obsazeností. V resortu je k dispozici snídaňový servis v samostatném prostoru v přízemí budovy.
Prohlídky možné i o víkendech. Rád vám zajistím nejvýhodnější financování hypotečním úvěrem dle aktuální nabídky na trhu.
Pro více informací mě neváhejte kontaktovat kdykoli.
Luxusní horské bydlení nebo výhodná investice – to vše v srdci Krkonoš! Ev. číslo: 651613. Energetický štítek: B (12 kWh/m2/rok).
|
|
Kontaktovat inzerenta emailem
Kontaktovat emailem může pouze ověřený uživatel.
Ověření je zdarma.
Vaše telefonní číslo *
Kontaktovat emailem může pouze ověřený uživatel.
Ověření je zdarma.
Vaše telefonní číslo *
Podobné inzeráty

Exkluzivně Vám nabízím PRODEJ krásného a prostorného horského apartmánu 2+KK s balkonem a vlastním parkovacím stáním v podzemní garáži, v moderním komplexu Resident Harrachov, umístěném v malebném Anenském údolí v Harrachově.
Apartmán o velikosti už ...
6 490 000 Kč
Semily
512 46
512 46
46 x
Označit špatný inzerát Chybnou kategorii Ohodnotit uživatele Smazat/Upravit/Topovat

Prodej, byty/2+kk, 63 m2, 51246 Harrachov 608, Jablonec nad Nisou [ID 76842]
Chcete bydlet v srdci Krkonoš, mít sjezdovku doslova za rohem a zároveň využít potenciál své nemovitosti naplno – ať už pro vlastní potřeby, nebo další využití? Nabízím k p ...
6 400 000 Kč
Semily
512 46
512 46
243 x
Označit špatný inzerát Chybnou kategorii Ohodnotit uživatele Smazat/Upravit/Topovat

Předmětem prodeje je stylově zařízený mezonetový byt o dispozici 2+kk s velikostí podlahové plochy 77 m2. Byt se prodává s jedním venkovním stáním pro osobní automobil, který zaparkujete přímo před domem, je možné dokoupit k bytu ještě jedno parkovac ...
8 650 000 Kč
Semily
512 46
512 46
76 x
Označit špatný inzerát Chybnou kategorii Ohodnotit uživatele Smazat/Upravit/Topovat

Nabízíme k prodeji prostorný byt v osobním vlastnictví o dispozici 31, 71m2 , který se nachází na okraji obce v klidné lokalitě s výbornou dostupností služeb a dopravního spojení. Cena bytu je včetně vlastního parkovacího stání. Byt je situován ve 4. ...
6 050 000 Kč
Semily
512 46
512 46
61 x
Označit špatný inzerát Chybnou kategorii Ohodnotit uživatele Smazat/Upravit/Topovat

Včetně parkovacího stání, sklepní kóje a kompletního vybavení a zařízení., Nabízíme k prodeji plně vybavený a zařízený apartmán 1+kk o výměře 28 m² s prostornou lodžií 10,54 m² a vlastním parkovacím stáním. Nachází se ve 4. podlaží novostavby projekt ...
7 750 000 Kč
Semily
512 46
512 46
118 x
Označit špatný inzerát Chybnou kategorii Ohodnotit uživatele Smazat/Upravit/Topovat

Exkluzivně Vám nabízím PRODEJ krásného horského apartmánu 1+KK s balkonem, v moderním komplexu Resident Harrachov, umístěném v malebném Anenském údolí v Harrachově.
Apartmán o velikosti celkové užitné plochy 39,4 m2, (užitná plocha apartmánu 33,9 m2 ...
5 350 000 Kč
Semily
512 46
512 46
177 x
Označit špatný inzerát Chybnou kategorii Ohodnotit uživatele Smazat/Upravit/Topovat

Ev.č. 01169
Toužíte po vlastním zázemí v Krkonoších, které potěší jak při odpočinku, tak jako investice?
Nabízíme Vám jedinečnou možnost stát se majitelem apartmánu 1+kk (34 m²) s prostornou terasou a předzahrádkou (18 m²), který se nachází ve vyh ...
4 400 000 Kč
Semily
512 46
512 46
313 x
Označit špatný inzerát Chybnou kategorii Ohodnotit uživatele Smazat/Upravit/Topovat

BENEFIT - včetně nové kuchyňské linky a spotřebičů, garážového + povrchového stání a ski boxu., prodej exkluzivního mezonetového apartmánu 3+kk, 77,5 m² – Vitality Residence, Harrachov
Nabízíme vám jedinečnou příležitost ke koupi světlého a vzdušn ...
11 882 640 Kč
Semily
512 46
512 46
268 x
Označit špatný inzerát Chybnou kategorii Ohodnotit uživatele Smazat/Upravit/Topovat

BENEFIT - Nová kuchyňská linka včetně spotřebičů, garážové a povrchové parkovací stání a ski-boxu., prodej nadstandardního, světlého a vzdušného mezonetového apartmánu o dispozici 4+kk a celkové užitné ploše 105 m², který se nachází v exkluzivním pro ...
15 385 600 Kč
Semily
512 46
512 46
258 x
Označit špatný inzerát Chybnou kategorii Ohodnotit uživatele Smazat/Upravit/Topovat

Včetně povrchového, parkovacího stání. Včetně právního, realitního a kompletního servisu., Nabízíme k prodeji nadstandardní, světlý a vzdušný apartmán o dispozici 2+kk a celkové užitné ploše 56 m², který se nachází v exkluzivním projektu Vitality Res ...
8 982 000 Kč
Semily
512 46
512 46
255 x
Označit špatný inzerát Chybnou kategorii Ohodnotit uživatele Smazat/Upravit/Topovat