Pronájem skladu Tanvald 1.390 m2
- [11.9. 2025]Smazat/ Upravit/ Topovat





















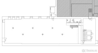
K dlouhodobému pronájmu nabízím skladové / výrobní prostory na kraji obce Tanvald o celkové výměře 1.390 m2. Objekt má 3 patra propojená nákladním výtahem (nosnost 700 kg) a schodištěm. Samostatný vstup z hlavní ulice Krkonošská + možnost zásobování ze zadní části budovy. Světlé prostory, velké množství oken.
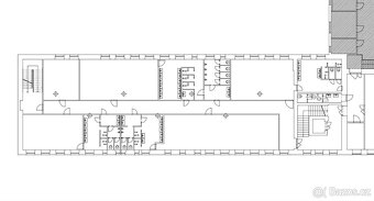
V 1. NP nabízí objekt velkou halu 407 m2 s vysokými stropy a nosností podlah 1.500 kg/m2. Další 2 patra nabízí mnoho menších místností od 5 m2 do 220 m2 s běžnou výškou stropů 3 m a podlahovou nosností 1.000 kg/m2.
V případně zájmu a dlouhodobé smlouvě je možná domluva na úpravě či rekonstrukci prostor, nebo případně jejich rozšíření až na 2.000 m2.
Teplo dodává místní Desenská teplárenská a to za velmi výhodných podmínek. Prostor má vlastní měřidla tepla i elektřiny, vyúčtování probíhá měsíčně dle reálné spotřeby. Vyúčtování vody probíhá 1x ročně. PENB: třída G
Budova je střežena společností KBS Security, která má kancelář přímo v areálu. Všude jsou instalována pohybová a požární čidla.
V rámci ceny pronájmu je možné na budovu po domluvě instalovat vlastní reklamu (lukrativní umístění s velkým počtem projíždějících aut).
Cena: 49.000 kč / měsíc + DPH (nezahrnuje energie)
Kauce: 2 měsíční nájmy
Neplatíte provizi RK, nabízí přímo majitel nemovitosti
V případě zájmu o prohlídku prosím volejte, rádi vše ukážeme.
V 1. NP nabízí objekt velkou halu 407 m2 s vysokými stropy a nosností podlah 1.500 kg/m2. Další 2 patra nabízí mnoho menších místností od 5 m2 do 220 m2 s běžnou výškou stropů 3 m a podlahovou nosností 1.000 kg/m2.
V případně zájmu a dlouhodobé smlouvě je možná domluva na úpravě či rekonstrukci prostor, nebo případně jejich rozšíření až na 2.000 m2.
Teplo dodává místní Desenská teplárenská a to za velmi výhodných podmínek. Prostor má vlastní měřidla tepla i elektřiny, vyúčtování probíhá měsíčně dle reálné spotřeby. Vyúčtování vody probíhá 1x ročně. PENB: třída G
Budova je střežena společností KBS Security, která má kancelář přímo v areálu. Všude jsou instalována pohybová a požární čidla.
V rámci ceny pronájmu je možné na budovu po domluvě instalovat vlastní reklamu (lukrativní umístění s velkým počtem projíždějících aut).
Cena: 49.000 kč / měsíc + DPH (nezahrnuje energie)
Kauce: 2 měsíční nájmy
Neplatíte provizi RK, nabízí přímo majitel nemovitosti
V případě zájmu o prohlídku prosím volejte, rádi vše ukážeme.
|
| |||||||||||||||||||||||||||||||
Kontaktovat inzerenta emailem
Kontaktovat emailem může pouze ověřený uživatel.
Ověření je zdarma.
Vaše telefonní číslo *
Kontaktovat emailem může pouze ověřený uživatel.
Ověření je zdarma.
Vaše telefonní číslo *
