Prodej domu Vranovice-Kelčice
- [11.9. 2025]Smazat/ Upravit/ Topovat






























Nabízíme k prodeji menší rodinný dům s pozemkem o výměře 407 m2.
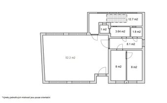
Nemovitost je koncipována jako bydlení 1+1 s dílnou (dílna 52 m2), RD částečně podsklepen, ve 2.NP půdní prostor. V katastru nemovitostí objekt veden jako rodinný dům, pozemek stavební. Po splnění podmínek lze k rekonstrukci či nové výstavbě RD čerpat dotační program nová zelená úsporám (oprav dům po babičce) až do výše 1.500.000,-Kč. Lze také vyřídit zvýhodněný úvěr až do výše dvojnásobku dotace bez zajištění.
Na stavebním úřadě předjednána i možnost výstavby nového RD.
Možné využití jako chalupa, podnikání se zázemím, po úpravách na trvalé bydlení.
Na pozemku kůlna, přístřešek pro případné parkování vozu.
Připojena voda, elektřina, vnitřní septik s přepadem napojen na obecní kanalizaci. Plyn není připojen (před domem v obecní komunikaci), topení na tuhá paliva.
Stavba přibližně z roku 1970.
V obci potřebná občanská vybavenost, napojení na dálnici D1.
Na nemovitosti nevázne žádné zástavní právo, lze řešit hypotečním úvěrem.
V případě zájmu o podrobné informace a prohlídku domu kontaktujte makléře zakázky.
★ Operace: Prodej
★ Typ nemovitosti: Dům, vila
★ Okres: Prostějov
★ Adresa: Vranovice-Kelčice, Kelčice
★ Celkem podlaží: 1
★ Plocha podlahová: 95 m2
★ Plocha užitná: 150 m2
★ Plocha vlastního pozemku: 407 m2
★ Druh objektu: Smíšená
★ Stav objektu: Před rekonstrukcí
★ Dostupnost: MHD, Dálnice
★ Infrastruktura: Školka, Restaurace, Pošta, Obecní úřad
★ Energetická náročnost budovy: C - Úsporná | podle vyhlášky 264/2020 Sb.
Nemovitost je koncipována jako bydlení 1+1 s dílnou (dílna 52 m2), RD částečně podsklepen, ve 2.NP půdní prostor. V katastru nemovitostí objekt veden jako rodinný dům, pozemek stavební. Po splnění podmínek lze k rekonstrukci či nové výstavbě RD čerpat dotační program nová zelená úsporám (oprav dům po babičce) až do výše 1.500.000,-Kč. Lze také vyřídit zvýhodněný úvěr až do výše dvojnásobku dotace bez zajištění.
Na stavebním úřadě předjednána i možnost výstavby nového RD.
Možné využití jako chalupa, podnikání se zázemím, po úpravách na trvalé bydlení.
Na pozemku kůlna, přístřešek pro případné parkování vozu.
Připojena voda, elektřina, vnitřní septik s přepadem napojen na obecní kanalizaci. Plyn není připojen (před domem v obecní komunikaci), topení na tuhá paliva.
Stavba přibližně z roku 1970.
V obci potřebná občanská vybavenost, napojení na dálnici D1.
Na nemovitosti nevázne žádné zástavní právo, lze řešit hypotečním úvěrem.
V případě zájmu o podrobné informace a prohlídku domu kontaktujte makléře zakázky.
★ Operace: Prodej
★ Typ nemovitosti: Dům, vila
★ Okres: Prostějov
★ Adresa: Vranovice-Kelčice, Kelčice
★ Celkem podlaží: 1
★ Plocha podlahová: 95 m2
★ Plocha užitná: 150 m2
★ Plocha vlastního pozemku: 407 m2
★ Druh objektu: Smíšená
★ Stav objektu: Před rekonstrukcí
★ Dostupnost: MHD, Dálnice
★ Infrastruktura: Školka, Restaurace, Pošta, Obecní úřad
★ Energetická náročnost budovy: C - Úsporná | podle vyhlášky 264/2020 Sb.
|
| |||||||||||||||||||||||||||||||
Kontaktovat inzerenta emailem
Kontaktovat emailem může pouze ověřený uživatel.
Ověření je zdarma.
Vaše telefonní číslo *
Kontaktovat emailem může pouze ověřený uživatel.
Ověření je zdarma.
Vaše telefonní číslo *









