Pronájem obchodního prostoru 99 m², Úvaly
- [17.9. 2025]Smazat/ Upravit/ Topovat






























Tento exkluzivní komerční prostor v novostavbě multifunkční vily nabízí vše – viditelnost, reprezentativnost i výjimečné technické standardy.
Přímo na hlavní dopravní tepně obce (ul. Hlavní), kterou denně projede více než 10 000 vozidel (dle hlukové studie), se nachází nový komerční prostor o ploše 79 m² s navazující soukromou předzahrádkou/terasou 20 m². Ideální pro provoz bistra, kavárny, lékárny, ordinace, vzorkovny, prodejny potravin, pet shopu, kanceláře, poradenské služby či studio pro volnočasové aktivity.
Klíčové benefity:
Skvělé umístění: na hranici Prahy 9 a Prahy-východ, v žádané lokalitě u Klánovického lesa
Moderní dispozice: Velkoplošná výloha, vchod z ulice, venkovní terasa, dvě prostorné místnosti (prodejna/recepce + kancelář/kuchyň/zasedací místnost)
Zázemí: kavárna na 26 míst, kuchyň/přípravna, 1 šatnu s WC pro personál, 1 dámské WC se sprchou, 1 pánské WC.
Možnost pronájmu skladu 10 m²
Bezbariérový přístup a výtah – komfort pro klienty i zaměstnance
Energeticky úsporné řešení: podlahové vytápění, elektrický kotel, masivní zateplení (50 cm zdivo + moderní fasáda)
Venkovní parkoviště s kapacitou 8 míst.
Prostor je kolaudován pro provoz kavárny/bistra, ale díky své flexibilitě nabízí široké možnosti využití pro různé podnikatelské záměry.
Investujte do úspěchu svého podnikání – ve spojení komfortu, viditelnosti a luxusu.
Kontaktujte nás ještě dnes a domluvte si osobní prohlídku. Tento prostor je připraven stát se výkladní skříní vaší značky.
ev.č.: 0448
Nájemné nezahrnuje poplatky za energie a komunální poplatky
třída energetické náročnosti budovy: B - Velmi úsporná
dle vyhlášky č.264/2020 Sb.
druh objektu: Cihlová
stav objektu: Velmi dobrý
umístění objektu: Rušná část obce
typ domu: Přízemní
zastavěná plocha (m2): 220
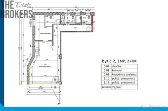
plocha kanceláří (m2): 99
číslo podlaží v objektu: 1
počet podlaží objektu: 4
Přímo na hlavní dopravní tepně obce (ul. Hlavní), kterou denně projede více než 10 000 vozidel (dle hlukové studie), se nachází nový komerční prostor o ploše 79 m² s navazující soukromou předzahrádkou/terasou 20 m². Ideální pro provoz bistra, kavárny, lékárny, ordinace, vzorkovny, prodejny potravin, pet shopu, kanceláře, poradenské služby či studio pro volnočasové aktivity.
Klíčové benefity:
Skvělé umístění: na hranici Prahy 9 a Prahy-východ, v žádané lokalitě u Klánovického lesa
Moderní dispozice: Velkoplošná výloha, vchod z ulice, venkovní terasa, dvě prostorné místnosti (prodejna/recepce + kancelář/kuchyň/zasedací místnost)
Zázemí: kavárna na 26 míst, kuchyň/přípravna, 1 šatnu s WC pro personál, 1 dámské WC se sprchou, 1 pánské WC.
Možnost pronájmu skladu 10 m²
Bezbariérový přístup a výtah – komfort pro klienty i zaměstnance
Energeticky úsporné řešení: podlahové vytápění, elektrický kotel, masivní zateplení (50 cm zdivo + moderní fasáda)
Venkovní parkoviště s kapacitou 8 míst.
Prostor je kolaudován pro provoz kavárny/bistra, ale díky své flexibilitě nabízí široké možnosti využití pro různé podnikatelské záměry.
Investujte do úspěchu svého podnikání – ve spojení komfortu, viditelnosti a luxusu.
Kontaktujte nás ještě dnes a domluvte si osobní prohlídku. Tento prostor je připraven stát se výkladní skříní vaší značky.
ev.č.: 0448
Nájemné nezahrnuje poplatky za energie a komunální poplatky
třída energetické náročnosti budovy: B - Velmi úsporná
dle vyhlášky č.264/2020 Sb.
druh objektu: Cihlová
stav objektu: Velmi dobrý
umístění objektu: Rušná část obce
typ domu: Přízemní
zastavěná plocha (m2): 220
plocha kanceláří (m2): 99
číslo podlaží v objektu: 1
počet podlaží objektu: 4
|
| |||||||||||||||||||||||||||||||
Kontaktovat inzerenta emailem
Kontaktovat emailem může pouze ověřený uživatel.
Ověření je zdarma.
Vaše telefonní číslo *
Kontaktovat emailem může pouze ověřený uživatel.
Ověření je zdarma.
Vaše telefonní číslo *









