Zahrada Bezemín
- [29.9. 2025]Smazat/ Upravit/ Topovat




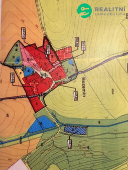
Nabízíme k prodeji zahradu v katastrálním území Bezemín, obec Cebiv, okres Tachov. Jedná se o pozemek o výměře 6745 m². Pozemek je z části podmáčený, nachází se zde prameny a přes část pozemku vede meliorace. Pozemek je vhodný k vybudování rybníku a menších tůní, je to zaneseno i v územním plánu Obce Cebiv. V minulosti byla obnovena jedna tůň a vysázeny nějaké dřeviny, zejména lípy (asi 40 ks). Na části pozemku byla historická zástavba. Na vybudování rybníku a tůní je možné čerpat dotaci. Ve vzdálenosti cca 15 m od hranice pozemku se nachází transformátor, je zde možnost zřídit elektrickou přípojku. Nemovitost není pronajatá, nachází se na klidném místě, přístupová (příjezdová) cesta je obecní komunikace. Cena je 145 Kč/1 m², celkem 978 025,- Kč. Pozemek je možné rozdělit (= prodat jen část).
Poznámka k ceně: + 1 % provize (+DPH)
Vlastnictví: osobní
Počet podlaží: 0
Podlaží: 0
Celková plocha: 6745 m2
Poznámka k ceně: + 1 % provize (+DPH)
Vlastnictví: osobní
Počet podlaží: 0
Podlaží: 0
Celková plocha: 6745 m2
|
|
Kontaktovat inzerenta emailem
Kontaktovat emailem může pouze ověřený uživatel.
Ověření je zdarma.
Vaše telefonní číslo *
Kontaktovat emailem může pouze ověřený uživatel.
Ověření je zdarma.
Vaše telefonní číslo *
Podobné inzeráty

Ev.č. 5344-19
Hledáte velký stavební pozemek na klidném místě obklopeném přírodou?
Exkluzivně nabízíme k prodeji pozemek o výměře 4014 m² v malebné obci Horní Kozolupy (okres Tachov). Tento převážně rovinatý pozemek obdélníkového tvaru s přímým př ...
1 890 000 Kč
Tachov
349 52
349 52
133 x
Označit špatný inzerát Chybnou kategorii Ohodnotit uživatele Smazat/Upravit/Topovat

Exkluzivně nabízíme k prodeji stavební parcelu v obci Horní Kozolupy.
Rovinatý pozemek s výměrou 1 000 m2 je přístupný přímo z komunikace. Z inženýrských sítí je k dispozici elektřina a vodovod.
Územním plánem obce je pozemek (zhruba 2/3 jeho ...
1 300 000 Kč
Tachov
349 52
349 52
524 x
Označit špatný inzerát Chybnou kategorii Ohodnotit uživatele Smazat/Upravit/Topovat