Rodinný dům, Dlouhá 2088, Aš
- [29.9. 2025]Smazat/ Upravit/ Topovat






























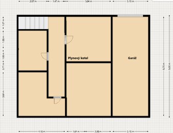
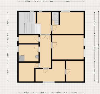
Nabízím k prodeji třípodlažní rodinný dům s obytným podkrovím, zahradou a garáží. Jedná se o samostatně stojící rodinný dům, v ulici Dlouhá, naproti parku u plaveckého bazénu. Za domem je sídliště panelových domů. V suterénu domu jsou technické a skladové prostory včetně kotelny, na úrovni suterénu je vedle domu přistavěná garáž s výjezdem do ulice. Do prvního nadzemního podlaží vedou venkovní schody se vstupem na schodiště, které vede přes druhé nadzemní podlaží až do obytného podkroví. Ze schodiště jsou vstupy do obytných prostor domu. V prvním a druhém nadzemním podlaží jsou dispozičně stejné byty 3+kk o výměře 70 m2, jen v prvním nadzemním podlaží je odstraněna stěna mezi pokoji. V obytném podkroví jsou tři větší pokoje a dva malé, koupelna a WC. Z obytného podkroví je vstup po dřevěných schodech na rekonstruovanou půdu. Dům má zastavěnou plochu 101 m2 a garáž 32 m2. Zahrada u domu je o výměře 357 m2. V roce 2000 byla dokončena částečná rekonstrukce domu. Nedávno proběhla instalace plastových oken, která nebyla dotažena do konce. Vytápění domu je ústředním topením napojeným na plynový kotel umístěný v suterénu domu. Teplá užitková voda je ohřívaná plynovým bojlerem, taktéž v suterénu. Dům je napojený na kanalizaci, elektřinu, vodovod a plyn. Průkaz energetické náročnosti budovy nebyl zatím dodán, proto uvádím třídu PENB „G“. V domě lze provozovat tři samostatné byty, nebo komerční prostory (například ordinace, kanceláře). Pro více informací mě kontaktujte.
|
| |||||||||||||||||||||||||||||||
Kontaktovat inzerenta emailem
Kontaktovat emailem může pouze ověřený uživatel.
Ověření je zdarma.
Vaše telefonní číslo *
Kontaktovat emailem může pouze ověřený uživatel.
Ověření je zdarma.
Vaše telefonní číslo *









