Pronájem kanceláře 260 m² – ul. Zubatého Praha 5
- [3.10. 2025]Smazat/ Upravit/ Topovat




























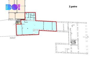
Nabízíme pronájem kancelářských prostor o výměře 260 m² ve 2. patře budovy ve dvoře areálu, adresa Zubatého, Praha 5. V prostoru je kuchyňský kout a vlastní toalety, klimatizace. K dispozici ihned. Přístup 24/7 (vrátnice).
Nájemné: 350 Kč/m²/měsíc bez DPH
Služby: 85 Kč/m²/měsíc bez DPH (teplo, TUV, studená voda/kanalizace, odvoz odpadu, úklid společných prostor a sociálek, zajištění 24/7 přístupu)
Elektřina: přeúčtování dle skutečné spotřeby na samostatném elektroměru.
Kauce: jistota ve výši 1 měsíčního nájmu.
Parkování: možnost stání ve dvoře 3 800 Kč + DPH/měsíc.
Možnost rozšíření: další 120 m² kanceláří ve vyšším patře.
Dispozice: otevřené kancelářské plochy orientované do dvora areálu, vlastní sociální zázemí a kuchyňka v jednotce. Ihned k nastěhování.
Vhodné pro firmy hledající přímočaré kanceláře na Smíchově s možností parkování a nepřetržitým přístupem.
Pro více informací a prohlídku mě kontaktujte.
ev.č.: 7369
třída energetické náročnosti budovy: G - Mimořádně nehospodárná
dle vyhlášky č.264/2020 Sb.
druh objektu: Smíšená
stav objektu: Velmi dobrý
typ domu: Patrový
plocha kanceláří (m2): 260
číslo podlaží v objektu: 2
Nájemné: 350 Kč/m²/měsíc bez DPH
Služby: 85 Kč/m²/měsíc bez DPH (teplo, TUV, studená voda/kanalizace, odvoz odpadu, úklid společných prostor a sociálek, zajištění 24/7 přístupu)
Elektřina: přeúčtování dle skutečné spotřeby na samostatném elektroměru.
Kauce: jistota ve výši 1 měsíčního nájmu.
Parkování: možnost stání ve dvoře 3 800 Kč + DPH/měsíc.
Možnost rozšíření: další 120 m² kanceláří ve vyšším patře.
Dispozice: otevřené kancelářské plochy orientované do dvora areálu, vlastní sociální zázemí a kuchyňka v jednotce. Ihned k nastěhování.
Vhodné pro firmy hledající přímočaré kanceláře na Smíchově s možností parkování a nepřetržitým přístupem.
Pro více informací a prohlídku mě kontaktujte.
ev.č.: 7369
třída energetické náročnosti budovy: G - Mimořádně nehospodárná
dle vyhlášky č.264/2020 Sb.
druh objektu: Smíšená
stav objektu: Velmi dobrý
typ domu: Patrový
plocha kanceláří (m2): 260
číslo podlaží v objektu: 2
|
| |||||||||||||||||||||||||||||||
Kontaktovat inzerenta emailem
Kontaktovat emailem může pouze ověřený uživatel.
Ověření je zdarma.
Vaše telefonní číslo *
Kontaktovat emailem může pouze ověřený uživatel.
Ověření je zdarma.
Vaše telefonní číslo *







