Milovice, prodej bytu 2+1 s lodžií, 60 m2, okr. Nymburk
- [3.10. 2025]Smazat/ Upravit/ Topovat





















Nabízíme Vám ke koupi byt o dispozici 2+1 s lodžií, který se nachází na 5. patře panelového domu s výtahem poblíž centra obce Milovice.
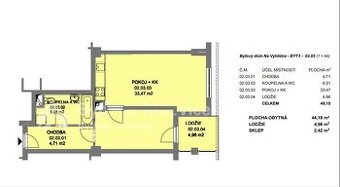
Dům prošel kompletní revitalizací v roce 1999, je udržovaný a v dobrém technickém stavu. Byt se skládá z předsíně, kuchyně, 2 pokojů, lodžie, koupelny a samostatné toalety. Kuchyňská linka je vybavena elektrickým sporákem a digestoří. Bytové jádro je zděné, v koupelně je vana, umyvadlo a prostor pro pračku. Okna jsou plastová, orientovaná na JV a SZ. Vytápění a ohřev vody zajišťuje plynová kotelna v domě. K bytu náleží sklepní kóje v suterénu domu (1,7 m²). K dispozici je také společná kolárna v suterénu domu. Parkovat je možné přímo před domem nebo v okolí.
V blízkosti domu je škola, školka, obchod s potravinami, autobusová zastávka. Veškerá další občanská vybavenost je v docházkové vzdálenosti.
Z Milovic je dobrá dopravní dostupnost do Prahy i Mladé Boleslavi (v dosahu dálnice D11 a D10, přímý vlakový spoj do Prahy).
Byt není zatížen zástavou, věcným břemenem ani nájemní smlouvou - ihned k prodeji.
ev.č.: 4080
třída energetické náročnosti budovy: D - Méně úsporná
dle vyhlášky č.264/2020 Sb.
vlastnictví: Osobní
druh objektu: Panelová
stav objektu: Velmi dobrý
užitná plocha (m2): 60
číslo podlaží v objektu: 6
počet podlaží objektu: 8
celková podlahová plocha (m2): 62
Dům prošel kompletní revitalizací v roce 1999, je udržovaný a v dobrém technickém stavu. Byt se skládá z předsíně, kuchyně, 2 pokojů, lodžie, koupelny a samostatné toalety. Kuchyňská linka je vybavena elektrickým sporákem a digestoří. Bytové jádro je zděné, v koupelně je vana, umyvadlo a prostor pro pračku. Okna jsou plastová, orientovaná na JV a SZ. Vytápění a ohřev vody zajišťuje plynová kotelna v domě. K bytu náleží sklepní kóje v suterénu domu (1,7 m²). K dispozici je také společná kolárna v suterénu domu. Parkovat je možné přímo před domem nebo v okolí.
V blízkosti domu je škola, školka, obchod s potravinami, autobusová zastávka. Veškerá další občanská vybavenost je v docházkové vzdálenosti.
Z Milovic je dobrá dopravní dostupnost do Prahy i Mladé Boleslavi (v dosahu dálnice D11 a D10, přímý vlakový spoj do Prahy).
Byt není zatížen zástavou, věcným břemenem ani nájemní smlouvou - ihned k prodeji.
ev.č.: 4080
třída energetické náročnosti budovy: D - Méně úsporná
dle vyhlášky č.264/2020 Sb.
vlastnictví: Osobní
druh objektu: Panelová
stav objektu: Velmi dobrý
užitná plocha (m2): 60
číslo podlaží v objektu: 6
počet podlaží objektu: 8
celková podlahová plocha (m2): 62
|
| |||||||||||||||||||||||||||||||
Kontaktovat inzerenta emailem
Kontaktovat emailem může pouze ověřený uživatel.
Ověření je zdarma.
Vaše telefonní číslo *
Kontaktovat emailem může pouze ověřený uživatel.
Ověření je zdarma.
Vaše telefonní číslo *
Podobné inzeráty
3 999 999 Kč
Nymburk
289 24
289 24
49 x
Označit špatný inzerát Chybnou kategorii Ohodnotit uživatele Smazat/Upravit/Topovat
Prodej bytu 3+kk v Milovicích - [27.10. 2025]Nabízíme k prodeji světlý byt 3+kk o rozloze 55 m², který se nachází ve 3. podlaží nově zrekonstruovaného cihlového domu. Tento moderně řešený byt je vhodný pro rodinu i jednotlivce, kteří ocení nadstandardní materiály a nízké provozní náklady. Dispo ...
4 690 000 Kč
Nymburk
289 24
289 24
63 x
Označit špatný inzerát Chybnou kategorii Ohodnotit uživatele Smazat/Upravit/Topovat
Milovice prodej bytu v OV 3 + 1, 73 m2 s předzahrádkou 92 m - [23.10. 2025]Nabízíme k prodeji byt o velikosti 3 + 1, který se nachází v klidné lokalitě na ulici Mírová v obci Milovice, okres Nymburk. Tento cihlový objekt, situovaný v prvním nadzemním podlaží, prošel kompletní rekonstrukcí a nabízí velmi dobrý stav. Celková ...
6 450 000 Kč
Nymburk
289 24
289 24
83 x
Označit špatný inzerát Chybnou kategorii Ohodnotit uživatele Smazat/Upravit/Topovat
Prodej bytu 2+1 - [22.10. 2025]Nabízím k prodeji byt v osobním vlastnictví 2+1 o rozloze 46m2. K bytu nalezi balkon a sklepni koje. Byt se nachází ve 4. podlaží. Dispozice bytu je prostorna vstupni chodba, loznice s balkonem, kuchyň, velky obyvaci pokoj s jidelnim koutem, koupeln ...
4 499 000 Kč
Nymburk
289 24
289 24
306 x
Označit špatný inzerát Chybnou kategorii Ohodnotit uživatele Smazat/Upravit/Topovat
Milovice, prodej bytu 3+1 + sklep, 66 m2, okr. Nymburk - [21.10. 2025]Nabízíme Vám k prodeji byt po rekonstrukci o dispozici 3+1, který se nachází v 1. patře panelového domu s výtahem poblíž centra obce Milovice.
Dům prošel kompletní revitalizací v roce 1999, je udržovaný a v dobrém technickém stavu. Dispozice bytu: př ...
4 596 000 Kč
Nymburk
289 24
289 24
117 x
Označit špatný inzerát Chybnou kategorii Ohodnotit uživatele Smazat/Upravit/Topovat
Prodej bytu 3+kk 89 m², Milovice - Mladá, ev.č. 00327 - [21.10. 2025]Ev.č. 00327
V zastoupení majitele nabízíme k prodeji nadstandardní byt o dispozici 3+kk a velikosti 89 m2, nacházející se
2. patře moderně zrekonstruovaného čtyřpodlažního bytového domu v žádané a klidné lokalitě Milovice. K bytu náleží parkovací st ...
7 690 000 Kč
Nymburk
289 24
289 24
106 x
Označit špatný inzerát Chybnou kategorii Ohodnotit uživatele Smazat/Upravit/Topovat
Prodej bytu 3+1, 94 m² , dvě sklepní kóje - [17.10. 2025]Nabízím k prodeji prostorný byt 3+1 o velikosti 94 m² v klidné lokalitě Milovic, v ulici Letecká. Byt se nachází v přízemí cihlového domu, který prošel kompletní rekonstrukcí před 7 lety.
Dispozice bytu je velmi praktická – samostatná kuchyň, tři p ...
6 380 000 Kč
Nymburk
289 24
289 24
181 x
Označit špatný inzerát Chybnou kategorii Ohodnotit uživatele Smazat/Upravit/Topovat
Milovice, prodej bytu 2+kk 88,5 m2 + parkovací stání, okr. N - [1.10. 2025]Nabízíme Vám k prodeji byt o velikosti 2+kk o výměře 88,5 m2, ke kterému náleží parkovací stání před domem, v Milovicích, ulice Rakouská. V bytě je v obou místnostech klimatizace, v koupelně podlahové topení.
Dispozice bytu: vstupní chodba (s velkou ...
5 600 000 Kč
Nymburk
289 24
289 24
280 x
Označit špatný inzerát Chybnou kategorii Ohodnotit uživatele Smazat/Upravit/Topovat
Milovice, prodej bytu 2+kk OV o výměře 49 m2 okr. Nymburk. - [23.9. 2025]Nabízíme k prodeji byt o velikosti 2 + kk v osobním vlastnictví, jehož výměra činí 49 m². Byt se nachází v přízemí dvoupatrového smíšeného objektu v ulici Družstevní, v části obce Milovice, okres Nymburk.
Dispozice bytu zahrnuje vstupní chodbu, koupe ...
3 550 000 Kč
Nymburk
289 24
289 24
309 x
Označit špatný inzerát Chybnou kategorii Ohodnotit uživatele Smazat/Upravit/Topovat
Byt 1+1, 43 m², klidné bydlení kousek od Prahy - TOP - [28.10. 2025]Nabízím k prodeji útulný podkrovní byt 1+1 o rozloze 43 m² v klidné části Milovic. Byt se nachází ve 3. nadzemním podlaží menšího bytového domu a je ideální jak pro vlastní bydlení, tak i jako investiční příležitost k pronájmu. Byt má nová plastová o ...
3 239 000 Kč
Nymburk
289 24
289 24
466 x
Označit špatný inzerát Chybnou kategorii Ohodnotit uživatele Smazat/Upravit/Topovat

