Pronájem prodejny 107 m², Kunovice
- [6.10. 2025]Smazat/ Upravit/ Topovat











Naše společnost Vám nabízí k pronájmu prodejnu v Kunovicích. Dům je vhodný k podnikání v potravinářském průmyslu (pekárna, cukrárna, přípravna jídel), ale i jako obchodní prostory se skladem. Prodejna byla naposledy provozována jako pekárna. Zkolaudováno jako cukrářská výroba.
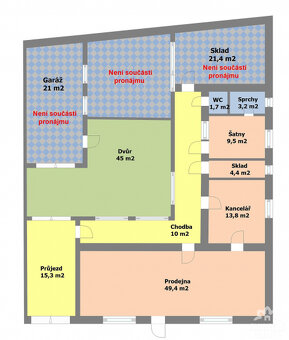
Skládá se z jedné hlavní místnosti 49 m², která je dostupná přímo z ulice Lidická. Tato místnost má dvě velká okna do ulice, přívod vody, odpadu a elektřinu 400 V. Rozvod plynu pro plynové spotřebiče. Dále pak dva nové nerezové komíny, odtah na střechu pro digestoř a odvětrání novým ventilátorem.
Z hlavní místnosti je vstup přímo do kanceláře, kde se nachází velký nerezový dřez, a do chodby s dalším nerezovým dřezem.
Dále je zde k dispozici menší sklad a šatna se sociálním zázemím. Celková podlahová plocha pro využití je 107 m². Zvlášť je dvorek, který má rozlohu 45 m².
Průjezd do dvora byl využit jako další sklad, ale je možné přes něj projet přímo do dvora.
V nemovitosti je dále zděná garáž a další skladovací místnost, které však nejsou v současnosti k pronájmu z důvodu budoucí rekonstrukce v následujícím roce. Po rekonstrukci budou nabídnuty současnému nájemci jako možné rozšíření plochy pronájmu.
Dvůr je vydlážděný. Ze strany od dvora a z ulice je dům nově zateplen.
Napojení na obecní vodovod, kanalizaci. Hlavní jistič 25 A.
V nemovitosti byly vyměněny okna a topná tělesa. Vytápění plynové a ohřev vody rovněž. Na podlahách dlažba a v šatnách lino.
Finanční podmínky:
Nájem: 18.000,- Kč/měsíc/včetně DPH.
Energie: budou řešeny dle konkrétního typu provozu
Vratná Kauce: 18.000,- Kč
Provize RK: 21.780,- Kč včetně DPH.
Prostor je volný od 1.11.2025
Nemovitost se nachází při cestě z Kunovic do Podolí, ulice Lidická.
Před domem je možné parkovat až 5 aut.
Pro více informací volejte makléře!
Skládá se z jedné hlavní místnosti 49 m², která je dostupná přímo z ulice Lidická. Tato místnost má dvě velká okna do ulice, přívod vody, odpadu a elektřinu 400 V. Rozvod plynu pro plynové spotřebiče. Dále pak dva nové nerezové komíny, odtah na střechu pro digestoř a odvětrání novým ventilátorem.
Z hlavní místnosti je vstup přímo do kanceláře, kde se nachází velký nerezový dřez, a do chodby s dalším nerezovým dřezem.
Dále je zde k dispozici menší sklad a šatna se sociálním zázemím. Celková podlahová plocha pro využití je 107 m². Zvlášť je dvorek, který má rozlohu 45 m².
Průjezd do dvora byl využit jako další sklad, ale je možné přes něj projet přímo do dvora.
V nemovitosti je dále zděná garáž a další skladovací místnost, které však nejsou v současnosti k pronájmu z důvodu budoucí rekonstrukce v následujícím roce. Po rekonstrukci budou nabídnuty současnému nájemci jako možné rozšíření plochy pronájmu.
Dvůr je vydlážděný. Ze strany od dvora a z ulice je dům nově zateplen.
Napojení na obecní vodovod, kanalizaci. Hlavní jistič 25 A.
V nemovitosti byly vyměněny okna a topná tělesa. Vytápění plynové a ohřev vody rovněž. Na podlahách dlažba a v šatnách lino.
Finanční podmínky:
Nájem: 18.000,- Kč/měsíc/včetně DPH.
Energie: budou řešeny dle konkrétního typu provozu
Vratná Kauce: 18.000,- Kč
Provize RK: 21.780,- Kč včetně DPH.
Prostor je volný od 1.11.2025
Nemovitost se nachází při cestě z Kunovic do Podolí, ulice Lidická.
Před domem je možné parkovat až 5 aut.
Pro více informací volejte makléře!
|
|
Kontaktovat inzerenta emailem
Kontaktovat emailem může pouze ověřený uživatel.
Ověření je zdarma.
Vaše telefonní číslo *
Kontaktovat emailem může pouze ověřený uživatel.
Ověření je zdarma.
Vaše telefonní číslo *