Prodej exkluzivního bytu 3+KK, 108,6 m² Jablonec nad Nisou
- [8.10. 2025]Smazat/ Upravit/ Topovat











Představujeme Vám jedinečnou příležitost pro ty, kteří hledají moderní bydlení s krásami přírody. Dům se nachází v atraktivní lokalitě v Jablonci nad Nisou, která nabízí luxusní výhled na celé město.
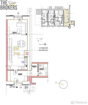
Nabízíme krásný třípodlažní byt 3+KK o celkové užitné ploše 106,7 m² a podlahové ploše 108,6 m², situovaný v moderním projektu. Byt je rozdělen do tří podlaží, z nichž každé nabízí specifické funkční využití pro maximální komfort a pohodlí bydlení.
Vstupní část bytu zahrnuje prostorné zádveří s keramickou dlažbou pro snadnou údržbu.
Obývací pokoj s přípravou na kuchyňskou linku bude centrem společenského života, se spoustou denního světla díky velkým oknům. Koupelna je vybavena doplňkovými zařizovacími předměty od renomované značky Hansgrohe, což zajišťuje dlouhou životnost a vysoký komfort.
Druhé podlaží slouží jako klidová zóna. Velkorysá hlavní ložnice nabízí dostatek prostoru pro relaxaci. Praktická druhá koupelna se nachází přímo vedle ložnice.
Podkrovní prostor (galerie nebo víceúčelový pokoj) nabízí širokou škálu využití, ať už jako pracovna nebo hobby místnost.
Díky jedinečné atmosféře podkroví je toto patro ideální pro kreativní činnosti nebo klidnou relaxaci.
Každé patro je navrženo s ohledem na pohodlí a maximální využití prostoru.
Dům je postaven ze systémového zdiva Ytong, a to vč. stropní konstrukce , což zajišťuje pevnost a vynikající tepelně izolační vlastnosti. S 18 cm zateplením fasády se pyšní energetickým štítkem třídy B, což garantuje úsporný provoz. Podlahové vytápění s možností individuální regulace v každé místnosti a centrální vytápění prostřednictvím plynové kotelny v přízemí budovy, přináší maximální komfort. Francouzská okna s trojsklem jsou velkou předností, protože zajišťují dostatek denního světla a podtrhují moderní charakter bydlení.
Areál je kompletně oplocený, vjezd zajišťuje pojezdová brána s pohodlným otevíráním na dálkové ovládání. Parkování je zajištěno formou krytých i nekrytých stání.
V okolí Krkonošské ulice v Jablonci nad Nisou naleznete občanskou vybavenost a vynikající dopravní dostupnost. Do centra Jablonce se autem dostanete za přibližně 5 minut. V blízkosti se nachází i napojení na dálnici, což usnadňuje cestování do okolních měst a regionů.
Termín nastěhování je 2. polovina roku 2025. Máte zájem? Kontaktujte nás ještě dnes a domluvte si prohlídku!
ev.č.: 0475
třída energetické náročnosti budovy: B - Velmi úsporná
dle vyhlášky č.264/2020 Sb.
vlastnictví: Osobní
druh objektu: Cihlová
stav objektu: Novostavba
umístění objektu: Klidná část obce
typ bytu: Mezonet (vícepatrový byt s vnitřním schodištěm)
užitná plocha (m2): 106.7
číslo podlaží v objektu: 1
počet podlaží objektu: 3
celková podlahová plocha (m2): 106.7
Nabízíme krásný třípodlažní byt 3+KK o celkové užitné ploše 106,7 m² a podlahové ploše 108,6 m², situovaný v moderním projektu. Byt je rozdělen do tří podlaží, z nichž každé nabízí specifické funkční využití pro maximální komfort a pohodlí bydlení.
Vstupní část bytu zahrnuje prostorné zádveří s keramickou dlažbou pro snadnou údržbu.
Obývací pokoj s přípravou na kuchyňskou linku bude centrem společenského života, se spoustou denního světla díky velkým oknům. Koupelna je vybavena doplňkovými zařizovacími předměty od renomované značky Hansgrohe, což zajišťuje dlouhou životnost a vysoký komfort.
Druhé podlaží slouží jako klidová zóna. Velkorysá hlavní ložnice nabízí dostatek prostoru pro relaxaci. Praktická druhá koupelna se nachází přímo vedle ložnice.
Podkrovní prostor (galerie nebo víceúčelový pokoj) nabízí širokou škálu využití, ať už jako pracovna nebo hobby místnost.
Díky jedinečné atmosféře podkroví je toto patro ideální pro kreativní činnosti nebo klidnou relaxaci.
Každé patro je navrženo s ohledem na pohodlí a maximální využití prostoru.
Dům je postaven ze systémového zdiva Ytong, a to vč. stropní konstrukce , což zajišťuje pevnost a vynikající tepelně izolační vlastnosti. S 18 cm zateplením fasády se pyšní energetickým štítkem třídy B, což garantuje úsporný provoz. Podlahové vytápění s možností individuální regulace v každé místnosti a centrální vytápění prostřednictvím plynové kotelny v přízemí budovy, přináší maximální komfort. Francouzská okna s trojsklem jsou velkou předností, protože zajišťují dostatek denního světla a podtrhují moderní charakter bydlení.
Areál je kompletně oplocený, vjezd zajišťuje pojezdová brána s pohodlným otevíráním na dálkové ovládání. Parkování je zajištěno formou krytých i nekrytých stání.
V okolí Krkonošské ulice v Jablonci nad Nisou naleznete občanskou vybavenost a vynikající dopravní dostupnost. Do centra Jablonce se autem dostanete za přibližně 5 minut. V blízkosti se nachází i napojení na dálnici, což usnadňuje cestování do okolních měst a regionů.
Termín nastěhování je 2. polovina roku 2025. Máte zájem? Kontaktujte nás ještě dnes a domluvte si prohlídku!
ev.č.: 0475
třída energetické náročnosti budovy: B - Velmi úsporná
dle vyhlášky č.264/2020 Sb.
vlastnictví: Osobní
druh objektu: Cihlová
stav objektu: Novostavba
umístění objektu: Klidná část obce
typ bytu: Mezonet (vícepatrový byt s vnitřním schodištěm)
užitná plocha (m2): 106.7
číslo podlaží v objektu: 1
počet podlaží objektu: 3
celková podlahová plocha (m2): 106.7
|
|
Kontaktovat inzerenta emailem
Kontaktovat emailem může pouze ověřený uživatel.
Ověření je zdarma.
Vaše telefonní číslo *
Kontaktovat emailem může pouze ověřený uživatel.
Ověření je zdarma.
Vaše telefonní číslo *