Prodej moderní kanceláře, ul. Mojmírovo náměstí, Brno-Králov
- [8.10. 2025]Smazat/ Upravit/ Topovat











Hledáte prostory pro svoje podnikání nebo hledáte vhodnou investiční příležitost?
Tak pro Vás máme tuto moderní zařízenou kancelář se seriózním dlouhodobým nájemníkem.
Představujeme Vám reprezentativní kancelářské prostory po zdařilé kompletní rekonstrukci.
Design interiéru je moderní, s důrazem na funkčnost a pohodlí. Najdete tu inteligentní osvětlení, klimatizační jednotku, kuchyňskou linku na míru a chytře řešený kancelářský nábytek, který disponuje nepřeberným množstvím úložného prostoru.
Pro zviditelnění Vaší firmy je i vymezená reklamní plocha hned při vstupu do domu.
Další velkou výhodou je lokalita samotná. Královo Pole je oblíbené nejen kvůli svému strategickému umístění, ale také díky skvělé dopravní dostupnosti. Zastávky MHD jsou v těsné blízkosti, stejně jako napojení na hlavní dopravní tepny města.
Přidanou hodnotou je i vedlejší parkovací dům, který poskytuje dostatek parkovacích míst pro vás i vaše klienty. A pokud potřebujete skladovací prostory, tak v těsné blízkosti se zároveň nachází skladovací areál, který nabízí flexibilní řešení dle vašich potřeb.
Prostě tu najdete vše co k vašemu podnikání potřebujete.
Přijďte se přesvědčit osobně a uvidíte sami.
Nenechte si ujít tuto exkluzivní nabídku.
V případě více informací se můžete podívat na stránku nemovitosti.
ev.č.: 0103 (0038)
včetně všech poplatků
druh objektu: Cihlová
stav objektu: Velmi dobrý
umístění objektu: Rušná část obce
typ domu: Přízemní
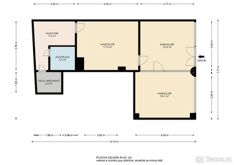
plocha kanceláří (m2): 65
Tak pro Vás máme tuto moderní zařízenou kancelář se seriózním dlouhodobým nájemníkem.
Představujeme Vám reprezentativní kancelářské prostory po zdařilé kompletní rekonstrukci.
Design interiéru je moderní, s důrazem na funkčnost a pohodlí. Najdete tu inteligentní osvětlení, klimatizační jednotku, kuchyňskou linku na míru a chytře řešený kancelářský nábytek, který disponuje nepřeberným množstvím úložného prostoru.
Pro zviditelnění Vaší firmy je i vymezená reklamní plocha hned při vstupu do domu.
Další velkou výhodou je lokalita samotná. Královo Pole je oblíbené nejen kvůli svému strategickému umístění, ale také díky skvělé dopravní dostupnosti. Zastávky MHD jsou v těsné blízkosti, stejně jako napojení na hlavní dopravní tepny města.
Přidanou hodnotou je i vedlejší parkovací dům, který poskytuje dostatek parkovacích míst pro vás i vaše klienty. A pokud potřebujete skladovací prostory, tak v těsné blízkosti se zároveň nachází skladovací areál, který nabízí flexibilní řešení dle vašich potřeb.
Prostě tu najdete vše co k vašemu podnikání potřebujete.
Přijďte se přesvědčit osobně a uvidíte sami.
Nenechte si ujít tuto exkluzivní nabídku.
V případě více informací se můžete podívat na stránku nemovitosti.
ev.č.: 0103 (0038)
včetně všech poplatků
druh objektu: Cihlová
stav objektu: Velmi dobrý
umístění objektu: Rušná část obce
typ domu: Přízemní
plocha kanceláří (m2): 65
|
|
Kontaktovat inzerenta emailem
Kontaktovat emailem může pouze ověřený uživatel.
Ověření je zdarma.
Vaše telefonní číslo *
Kontaktovat emailem může pouze ověřený uživatel.
Ověření je zdarma.
Vaše telefonní číslo *