Krásný st. pozemek 901 m2 Krásný Dvůr, Louny
- [9.10. 2025]Smazat/ Upravit/ Topovat








, krásný rovinatý stavební pozemek 901 m² v klidné části obce Krásný Dvůr Brody. Napojení parcely na sítě (voda, elektřina) zajištěno, na patě hlavní parcely se nachází přípojky od stejného majitele.
Spojuje klidné bydlení obklopené přírodou s výbornou dostupností do blízkých měst s kompletní občanskou vybaveností. Díky rozvoji obce a rostoucí poptávce po rodinném bydlení představují nabízené pozemky mimořádnou investiční příležitost.
Soubor 1
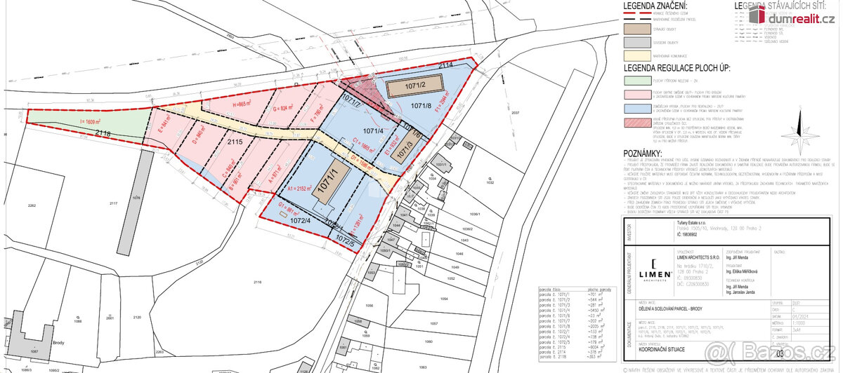
Celková plocha: cca 8 800 m²
Parcely: č. 2115/1, 2115/2, 2115/3, 2115/4, 2115/5, 2115/6, 2115/7, 2115/8,
Podíl na komunikacích které jsou již stavebně řešeny
Soubor 2
Celková plocha: cca 6600 m²
Parcely: č. 2116/1, 2116/2, 2116/3, 2116/4, 2116/5, 2116/6
Stavební podmínky
výstavba rodinných domů do dvou nadzemních podlaží se sedlovou střechou, koeficient zastavěnosti 30 % na každém pozemku
klidná a žádaná lokalita pro bydlení i investici
Inženýrské sítě: Veškeré práce na zasíťování byly provedeny k dispozici je kompletní dokumentace o průběhu a rozsahu prací.
Možnosti prodeje
možnost koupě jednotlivých pozemků (od 760 do 900 m²), nebo koupi obou souborů najednou (celkem 14 000 m)
Investiční potenciál
rychle se rozvíjející lokalita v těsném sousedství Krásného Dvora, vysoká poptávka po rodinném bydlení, stabilní růst hodnoty pozemků v této oblasti, vhodné jak pro developery, tak pro investory hledající bezpečné uložení kapitálu, či klienty, kteří si chtějí postavit svůj rodinný dům.
Informace a prohlídky
Podrobné informace o parcelách, možnosti osobní prohlídky Vám poskytne pověřený realitní makléř.
V případě zájmu o jakékoli pozemky v této lokalitě nás prosím kontaktujte. K této nabídce Vám zcela zdarma zajistíme nejlepší financování na trhu. Doporučujeme Ev. číslo: 652735.
Spojuje klidné bydlení obklopené přírodou s výbornou dostupností do blízkých měst s kompletní občanskou vybaveností. Díky rozvoji obce a rostoucí poptávce po rodinném bydlení představují nabízené pozemky mimořádnou investiční příležitost.
Soubor 1
Celková plocha: cca 8 800 m²
Parcely: č. 2115/1, 2115/2, 2115/3, 2115/4, 2115/5, 2115/6, 2115/7, 2115/8,
Podíl na komunikacích které jsou již stavebně řešeny
Soubor 2
Celková plocha: cca 6600 m²
Parcely: č. 2116/1, 2116/2, 2116/3, 2116/4, 2116/5, 2116/6
Stavební podmínky
výstavba rodinných domů do dvou nadzemních podlaží se sedlovou střechou, koeficient zastavěnosti 30 % na každém pozemku
klidná a žádaná lokalita pro bydlení i investici
Inženýrské sítě: Veškeré práce na zasíťování byly provedeny k dispozici je kompletní dokumentace o průběhu a rozsahu prací.
Možnosti prodeje
možnost koupě jednotlivých pozemků (od 760 do 900 m²), nebo koupi obou souborů najednou (celkem 14 000 m)
Investiční potenciál
rychle se rozvíjející lokalita v těsném sousedství Krásného Dvora, vysoká poptávka po rodinném bydlení, stabilní růst hodnoty pozemků v této oblasti, vhodné jak pro developery, tak pro investory hledající bezpečné uložení kapitálu, či klienty, kteří si chtějí postavit svůj rodinný dům.
Informace a prohlídky
Podrobné informace o parcelách, možnosti osobní prohlídky Vám poskytne pověřený realitní makléř.
V případě zájmu o jakékoli pozemky v této lokalitě nás prosím kontaktujte. K této nabídce Vám zcela zdarma zajistíme nejlepší financování na trhu. Doporučujeme Ev. číslo: 652735.
|
|
Kontaktovat inzerenta emailem
Kontaktovat emailem může pouze ověřený uživatel.
Ověření je zdarma.
Vaše telefonní číslo *
Kontaktovat emailem může pouze ověřený uživatel.
Ověření je zdarma.
Vaše telefonní číslo *