Nabídka projektu dvou modulového moderní mobilní domu
- [11.10. 2025]Smazat/ Upravit/ Topovat






















Komfort bez kompromisu
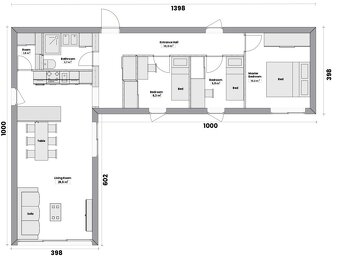
MOHO Lova je dvoumodulový dům, který spojuje moderní design, pohodlí a vysoký komfort. Tento inovativní modulový dům vznikl spojením dvou modulů MOHO Fjord a nabízí ideální prostor pro každodenní život. K dispozici je ve třech velikostech – 68 m², 80 m² a 100 m². Název Lova pochází ze švédštiny a znamená „slib“ nebo „přislíbit“. Je to název, který symbolizuje dům jako místo, kde nacházíte záruku pohodlí, bezpečí a kvality.
Prostor je navržen s důrazem na velkorysost obývacího pokoje, jenž je součástí společenského modulu spolu s kuchyní, koupelnou a toaletou. Tento modul vytváří otevřený a funkční celek, kde jsou klíčové zóny harmonicky propojeny. Klidový modul je určen pro spánek a relaxaci, jehož součástí jsou ložnice poskytující maximální soukromí a pohodlí. MOHO Lova je víc než jen dům. Je to místo, kde se vaše představy o ideálním bydlení stávají skutečností. Díky možnosti přizpůsobení dispozic a designu podle vašich potřeb vytvoříte prostor dokonale odpovídající vašemu životnímu stylu.
NABÍZÍME TYTO VÝBAVY
Verze výbavy Comfort a Nadstandardní výbava nabízejí široké možnosti individualizace podle vašich představ. Rádi vám pomůžeme přizpůsobit vybavení a materiály tak, aby dokonale odpovídaly vašemu vkusu a potřebám. Ať už hledáte praktické řešení nebo luxusní detaily, náš tým je připraven vám poradit a vytvořit prostor, který bude přesně podle vašich přání.
Chci individuální výbavu
Standard
Masivní ocelová konstrukce
Plechová střecha
Vnější obložení ze sibiřského smrku
Podlaha chráněna pozinkovaným plechem
Podlahové vytápění
PUR pěna s otevřenými buňkami v podlaze, stěnách a střeše
Dřevěné příčky
Plastová okna s dvojskly
Vchodové dveře a interiérové dveře
Venkovní parapety
Elektroinstalace a vodovodní instalace
Dýha oken v barvě antracitu v exteriéru
Vinylová podlaha, interiérové osvětlení
Pohledové stěnové panely
Doprava z výrobního závodu do Hradce Králové.
Zároveň je možné investovat do pozemku v obci Divec s plošnou výměrou 1005m2.
Cena pozemku je 4 300 000,- Kč. Foto pozemku pošlu emailem.
MOHO Lova 80
STANDARD
cena bez DPH
3 588 300 Kč
cena s 21% DPH
4 341 843 Kč
Prohlídka je možná po dohodě a pozemku zároveň
MOHO Lova je dvoumodulový dům, který spojuje moderní design, pohodlí a vysoký komfort. Tento inovativní modulový dům vznikl spojením dvou modulů MOHO Fjord a nabízí ideální prostor pro každodenní život. K dispozici je ve třech velikostech – 68 m², 80 m² a 100 m². Název Lova pochází ze švédštiny a znamená „slib“ nebo „přislíbit“. Je to název, který symbolizuje dům jako místo, kde nacházíte záruku pohodlí, bezpečí a kvality.
Prostor je navržen s důrazem na velkorysost obývacího pokoje, jenž je součástí společenského modulu spolu s kuchyní, koupelnou a toaletou. Tento modul vytváří otevřený a funkční celek, kde jsou klíčové zóny harmonicky propojeny. Klidový modul je určen pro spánek a relaxaci, jehož součástí jsou ložnice poskytující maximální soukromí a pohodlí. MOHO Lova je víc než jen dům. Je to místo, kde se vaše představy o ideálním bydlení stávají skutečností. Díky možnosti přizpůsobení dispozic a designu podle vašich potřeb vytvoříte prostor dokonale odpovídající vašemu životnímu stylu.
NABÍZÍME TYTO VÝBAVY
Verze výbavy Comfort a Nadstandardní výbava nabízejí široké možnosti individualizace podle vašich představ. Rádi vám pomůžeme přizpůsobit vybavení a materiály tak, aby dokonale odpovídaly vašemu vkusu a potřebám. Ať už hledáte praktické řešení nebo luxusní detaily, náš tým je připraven vám poradit a vytvořit prostor, který bude přesně podle vašich přání.
Chci individuální výbavu
Standard
Masivní ocelová konstrukce
Plechová střecha
Vnější obložení ze sibiřského smrku
Podlaha chráněna pozinkovaným plechem
Podlahové vytápění
PUR pěna s otevřenými buňkami v podlaze, stěnách a střeše
Dřevěné příčky
Plastová okna s dvojskly
Vchodové dveře a interiérové dveře
Venkovní parapety
Elektroinstalace a vodovodní instalace
Dýha oken v barvě antracitu v exteriéru
Vinylová podlaha, interiérové osvětlení
Pohledové stěnové panely
Doprava z výrobního závodu do Hradce Králové.
Zároveň je možné investovat do pozemku v obci Divec s plošnou výměrou 1005m2.
Cena pozemku je 4 300 000,- Kč. Foto pozemku pošlu emailem.
MOHO Lova 80
STANDARD
cena bez DPH
3 588 300 Kč
cena s 21% DPH
4 341 843 Kč
Prohlídka je možná po dohodě a pozemku zároveň
|
| |||||||||||||||||||||||||||||||
Kontaktovat inzerenta emailem
Kontaktovat emailem může pouze ověřený uživatel.
Ověření je zdarma.
Vaše telefonní číslo *
Kontaktovat emailem může pouze ověřený uživatel.
Ověření je zdarma.
Vaše telefonní číslo *

