Malebná drevenica v pohraničí
- TOP - [15.11. 2025]Smazat/ Upravit/ Topovat


























Ponúkam na predaj rekreačný celoročne obývateľný dom - 2 poschodovú drevenicu s autentickými prvkami v okrese Púchov, v obci Lazy pod Makytou, ktorá sa rozprestiera na úpätí a svahoch Javorníkov. Veľkorysé bývanie na pozemku s výmerou cca 1100 m2 je situované v rekreačnej lokalite využívanej návštevníkmi celoročne.
O DOME:
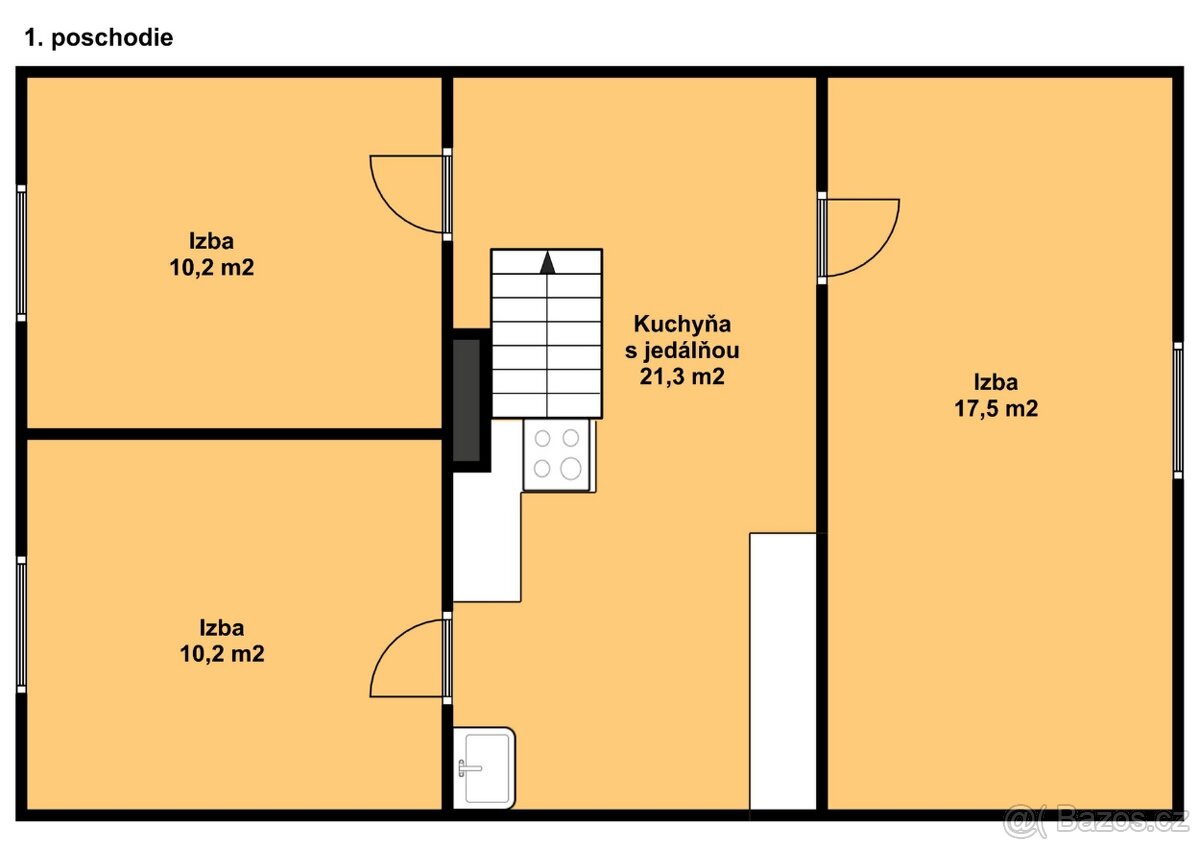
- 6 izbový poschodový dom s úžitkovou plochou 134,5 m2
- priestranné izby (viď pôdorysy)
- na prízemí 1 bytová jednotka (75,5 m2) - 2 izby, kuchyňa, technické zázemie, kúpeľňa s vaňou a samostatné wc
- na poschodí 2 bytová jednotka (59 m2) - 3 izby a kuchyňa
- rodinný dom bol využívaný na celoročné bývanie
- je napojený na elektrinu, septik, zdroj vody kopaná studňa, možnosť pripojenia na obecný vodovod a internet
- vykurovanie radiátormi, kúrenie na tuhé palivo, ohrev vody - bojlerom alebo kotlom
- v kuchyni sa nachádza vstavaná pec na pevné palivo.
VÝHODY PONUKY:
- dom spolu so slnečnou záhradou
- pri rodinnom dome sa nachádza garáž, pivnica, kotolňa s drevárňou
- po pravej strane lemuje hranicu pozemku potok
- vstup na pozemok z miestnej komunikácie
vo dvore je je možné zaparkovať aj 3-4 osobné autá
- dom je situovaný v centre obce s dobrou občianskou vybavenosťou.
VÝHODY LOKALITY:
- v blízkosti lyžiarske stredisko Čertov a Kohútka
- bežecké trasy
- welness a spa
- horské hotely a penzióny
- neďaleko kúpele Nimnica
- prírodné jazero Karolínka
O DOME:
- 6 izbový poschodový dom s úžitkovou plochou 134,5 m2
- priestranné izby (viď pôdorysy)
- na prízemí 1 bytová jednotka (75,5 m2) - 2 izby, kuchyňa, technické zázemie, kúpeľňa s vaňou a samostatné wc
- na poschodí 2 bytová jednotka (59 m2) - 3 izby a kuchyňa
- rodinný dom bol využívaný na celoročné bývanie
- je napojený na elektrinu, septik, zdroj vody kopaná studňa, možnosť pripojenia na obecný vodovod a internet
- vykurovanie radiátormi, kúrenie na tuhé palivo, ohrev vody - bojlerom alebo kotlom
- v kuchyni sa nachádza vstavaná pec na pevné palivo.
VÝHODY PONUKY:
- dom spolu so slnečnou záhradou
- pri rodinnom dome sa nachádza garáž, pivnica, kotolňa s drevárňou
- po pravej strane lemuje hranicu pozemku potok
- vstup na pozemok z miestnej komunikácie
vo dvore je je možné zaparkovať aj 3-4 osobné autá
- dom je situovaný v centre obce s dobrou občianskou vybavenosťou.
VÝHODY LOKALITY:
- v blízkosti lyžiarske stredisko Čertov a Kohútka
- bežecké trasy
- welness a spa
- horské hotely a penzióny
- neďaleko kúpele Nimnica
- prírodné jazero Karolínka
|
| |||||||||||||||||||||||||||||||
Podobné inzeráty
Prodej menší chalupy v Janové u Vsetína - [20.11. 2025]Prodej menší chalupy v Janové u Vsetína, v přízemí otevřený prostor s kuchyní a východem na malou terasu, koupelna s WC, z důvodů zastaralosti bylo demontováno vybavení kuchyně a koupelny, v podkroví přístupném po schodišti obytný prostor, který je k ...
2 600 000 Kč
Vsetín
755 01
755 01
181 x
Označit špatný inzerát Chybnou kategorii Ohodnotit uživatele Smazat/Upravit/Topovat
Prodej chaty 36 m², pozemek 580m², Semetín - Vsetín - [14.11. 2025]Ev.č. 14349
Chcete mít svůj vlastní kout klidu a zeleně, kde můžete relaxovat pod širým nebem nebo si užít večery u ohně? Pak je tato nabídka přesně pro vás.
K prodeji nabízíme dvoupodlažní chatu v osobním vlastnictví, umístěnou v malebné a klidné ...
1 649 000 Kč
Vsetín
755 01
755 01
608 x
Označit špatný inzerát Chybnou kategorii Ohodnotit uživatele Smazat/Upravit/Topovat
Prodej, chata, 80 m², Vsetín - Semetín - [12.11. 2025]Chata v Semetíně k rekonstrukci – garáž, sklep, balkon a terasa navíc.
Hledáte místo, kde je klid, krásný výhled a a přitom je snadno dostupné? Ve vyhledávané lokalitě Vsetín – Semetín vám exkluzivně nabízíme chatu o ploše cca 80 m² postavenou na roh ...
1 990 000 Kč
Vsetín
755 01
755 01
414 x
Označit špatný inzerát Chybnou kategorii Ohodnotit uživatele Smazat/Upravit/Topovat
Prodej chalupy, 90 m², Janová - [3.11. 2025]Nabízíme k prodeji samostatně stojící chalupu v klidné části obce Janová. Tato nemovitost je ideální volbou pro ty, kteří hledají prostor pro realizaci vlastních představ o bydlení. Chalupa disponuje dvěma bytovými jednotkami 1+kk a 2+kk. Celková plo ...
2 970 000 Kč
Vsetín
755 01
755 01
453 x
Označit špatný inzerát Chybnou kategorii Ohodnotit uživatele Smazat/Upravit/Topovat
Prodej chalupy Vsetín – Ohrada - [1.11. 2025]Nabízíme vám možnost koupě chalupy ve Vsetíně se stavebním pozemkem, a to v žádané lokalitě, ulice Hlukoké, místní část Ohrada. Jedná se o kompletně zasíťovaný stavební pozemek o celkové ploše 2655m2, na kterém je postavena chata s číslem evidenčním ...
3 995 000 Kč
Vsetín
755 01
755 01
505 x
Označit špatný inzerát Chybnou kategorii Ohodnotit uživatele Smazat/Upravit/Topovat





