Prodej, pozemky/bydlení, 322 m2, Bujesily, Rokycany [ID 7536
- TOP - [25.10. 2025]Smazat/ Upravit/ Topovat






















Prodej, pozemky/bydlení, 322 m2, Bujesily, Rokycany [ID 75362]
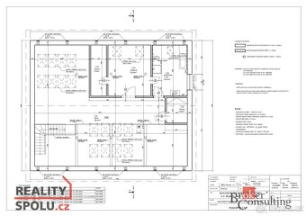
Prodej rozestavěného domu v Bujesilech u Rokycan.
Nabízím k prodeji rozestavěný rodinný dům na pozemku o celkové výměře 1005 m2 na klidném místě v obci Bujesily u Rokycan s krásným výhledem a unikátním charakterem. Stavba byla zahájena v roce 2024 a je postavena z kvalitního materiálu (Porotherm 44,5 plněný vatou). Momentálně je dům ve fázi věnce, s většinou stavebního materiálu již připraveného na pozemku (včetně tašek Figaro 11 a nadkrokevní izolace). Projekt je navržen s důrazem na nadčasový styl a multifunkčnost, inspirován čtyřmi elementy – sklem, kovem, dřevem a kamenem.
Po dokončení projektu bude dům nabízet moderní design v kombinaci s tradičním statkářským stylem, s velkým množstvím oken pro přirozené světlo – ideální pro milovníky umění, fotografie nebo sochařství. V projektu byly provedeny drobné úpravy, jako zesílená železobetonová deska a změna tepelného čerpadla na systém země/voda.
Příjezd k nemovitosti je momentálně řešen přes pozemek s věcným břemenem jízdy a chůze.
Dálnice D5 je vzdálená pouhých 15 minut, což zajišťuje výbornou dostupnost do Prahy a Plzně. Město s veškerou občanskou vybaveností, jako jsou obchody, školy a zdravotnická zařízení, je vzdáleno 15 minut jízdy.
V případě jakéhokoliv dotazu nás neváhejte kontaktovat.
Cena: 3 999 000 Kč včetně provize RK
Kategorie objektu: bydlení
Vlastnictví: Osobní
Umístění objektu: okraj obce
Plocha pozemku: 322
Půdní vestavba: Ne
Balkón: Ne
Lodžie: Ne
Terasa: Ne
Sklep: Ne
Garáž: Ne
Parkovací místo: Ne
Prodej rozestavěného domu v Bujesilech u Rokycan.
Nabízím k prodeji rozestavěný rodinný dům na pozemku o celkové výměře 1005 m2 na klidném místě v obci Bujesily u Rokycan s krásným výhledem a unikátním charakterem. Stavba byla zahájena v roce 2024 a je postavena z kvalitního materiálu (Porotherm 44,5 plněný vatou). Momentálně je dům ve fázi věnce, s většinou stavebního materiálu již připraveného na pozemku (včetně tašek Figaro 11 a nadkrokevní izolace). Projekt je navržen s důrazem na nadčasový styl a multifunkčnost, inspirován čtyřmi elementy – sklem, kovem, dřevem a kamenem.
Po dokončení projektu bude dům nabízet moderní design v kombinaci s tradičním statkářským stylem, s velkým množstvím oken pro přirozené světlo – ideální pro milovníky umění, fotografie nebo sochařství. V projektu byly provedeny drobné úpravy, jako zesílená železobetonová deska a změna tepelného čerpadla na systém země/voda.
Příjezd k nemovitosti je momentálně řešen přes pozemek s věcným břemenem jízdy a chůze.
Dálnice D5 je vzdálená pouhých 15 minut, což zajišťuje výbornou dostupnost do Prahy a Plzně. Město s veškerou občanskou vybaveností, jako jsou obchody, školy a zdravotnická zařízení, je vzdáleno 15 minut jízdy.
V případě jakéhokoliv dotazu nás neváhejte kontaktovat.
Cena: 3 999 000 Kč včetně provize RK
Kategorie objektu: bydlení
Vlastnictví: Osobní
Umístění objektu: okraj obce
Plocha pozemku: 322
Půdní vestavba: Ne
Balkón: Ne
Lodžie: Ne
Terasa: Ne
Sklep: Ne
Garáž: Ne
Parkovací místo: Ne
|
| |||||||||||||||||||||||||||||||
Kontaktovat inzerenta emailem
Kontaktovat emailem může pouze ověřený uživatel.
Ověření je zdarma.
Vaše telefonní číslo *
Kontaktovat emailem může pouze ověřený uživatel.
Ověření je zdarma.
Vaše telefonní číslo *
Podobné inzeráty
Zemědělská půda, prodej, Chrášťovice, Mladotice, Plzeň sever - [9.10. 2025]Nabízím k prodeji rozsáhlý soubor pozemků ve výlučném vlastnictví v katastrálním území Chrášťovice u Mladotic, obec Mladotice, okres Plzeň-sever. Pozemky jsou zapsány na listu vlastnictví č. 511.
Jedná se celkem o 26 parcel s rozmanitým využitím:
or ...
3 197 475 Kč
Plzeň-sever
331 41
331 41
108 x
Označit špatný inzerát Chybnou kategorii Ohodnotit uživatele Smazat/Upravit/Topovat
Prodej pozemku k bydlení, 1726 m², Výrov - Hadačka. - [3.10. 2025]Možná je teď ten pravý čas na koupi pozemku ke stavbě o výměře 1726 m² v osobním vlastnictví v žádané a vyhledávané lokalitě Hadačka v katastrálním území Výrov u Kralovic, okres Plzeň-sever. Rovinatý, travnatý, pozemek, který Vám umožní postavit si c ...
2 890 000 Kč
Plzeň-sever
331 41
331 41
136 x
Označit špatný inzerát Chybnou kategorii Ohodnotit uživatele Smazat/Upravit/Topovat

