Prodej RD Podkopná Lhota, CP 344 m2, k rekonstrukci
- TOP - [17.11. 2025]Smazat/ Upravit/ Topovat


























Realitka Green ® vám zprostředkuje prodej samostatně stojícího rodinného domu v obci Podkopná Lhota, vzdálené 17 km od města Zlín.
Celková plocha je 344 m2.
Nachází se ve velmi klidné lokalitě, v blízkosti lesa.
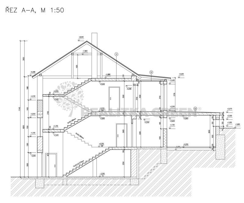
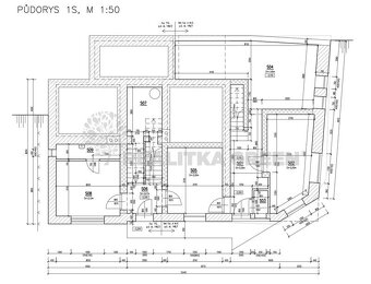
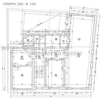
Dům je částečně podsklepený, určen k celkové rekonstrukci. Vhodný jak k bydlení, tak k přebudování na komerční využití, popř. ubytování. K dispozici jsou 3 podlaží. Zdivo cihla, tvárnice. Střecha plechová s možností půdní vestavby.
IS: elektřina, vlastní studna, plynová a vodovodní v přípojka v blízkosti domu.
Veškerá dokumentace k domu. (půdorys, řez domu, PENB). Energetická náročnost budovy: B-velmi úsporná.
V blízkosti je rekreační středisko, lyžařský vlek.
Tato nemovitost je ideální k čerpání dotace v rámci výzvy "Oprav dům po babičce", kde získáte zálohově 50% z nákladů na rekonstrukci (zateplení, fasády, výměna oken a dveří, zateplení střechy, fotovoltaika, tepelné čerpadlo, atd.) Dotace je vyplácena najednou, ještě před realizací rekonstrukce. Výše dotace může činit až 1 milion korun + možné bonusy.
K dispozici ihned. V případě zájmu zajistíme výhodné financování.
★ Operace: Prodej
★ Typ nemovitosti: Dům, vila
★ Okres: Zlín
★ Adresa: Podkopná Lhota, Podkopná Lhota
★ Celkem podlaží: 3
★ Plocha užitná: 305 m2
★ Plocha zastavěná: 305 m2
★ Plocha vlastního pozemku: 344 m2
★ Druh objektu: Cihlová
★ Stav objektu: Před rekonstrukcí
★ Dostupnost: Silnice
★ Energetická náročnost budovy: B - Velmi úsporná | podle vyhlášky 148/2007 Sb.
Celková plocha je 344 m2.
Nachází se ve velmi klidné lokalitě, v blízkosti lesa.
Dům je částečně podsklepený, určen k celkové rekonstrukci. Vhodný jak k bydlení, tak k přebudování na komerční využití, popř. ubytování. K dispozici jsou 3 podlaží. Zdivo cihla, tvárnice. Střecha plechová s možností půdní vestavby.
IS: elektřina, vlastní studna, plynová a vodovodní v přípojka v blízkosti domu.
Veškerá dokumentace k domu. (půdorys, řez domu, PENB). Energetická náročnost budovy: B-velmi úsporná.
V blízkosti je rekreační středisko, lyžařský vlek.
Tato nemovitost je ideální k čerpání dotace v rámci výzvy "Oprav dům po babičce", kde získáte zálohově 50% z nákladů na rekonstrukci (zateplení, fasády, výměna oken a dveří, zateplení střechy, fotovoltaika, tepelné čerpadlo, atd.) Dotace je vyplácena najednou, ještě před realizací rekonstrukce. Výše dotace může činit až 1 milion korun + možné bonusy.
K dispozici ihned. V případě zájmu zajistíme výhodné financování.
★ Operace: Prodej
★ Typ nemovitosti: Dům, vila
★ Okres: Zlín
★ Adresa: Podkopná Lhota, Podkopná Lhota
★ Celkem podlaží: 3
★ Plocha užitná: 305 m2
★ Plocha zastavěná: 305 m2
★ Plocha vlastního pozemku: 344 m2
★ Druh objektu: Cihlová
★ Stav objektu: Před rekonstrukcí
★ Dostupnost: Silnice
★ Energetická náročnost budovy: B - Velmi úsporná | podle vyhlášky 148/2007 Sb.
|
| |||||||||||||||||||||||||||||||
Kontaktovat inzerenta emailem
Kontaktovat emailem může pouze ověřený uživatel.
Ověření je zdarma.
Vaše telefonní číslo *
Kontaktovat emailem může pouze ověřený uživatel.
Ověření je zdarma.
Vaše telefonní číslo *





