II.etapa-Veleliby, prodej 1/2 RD tzv. dvojdům o velikosti 5+
- [14.10. 2025]Smazat/ Upravit/ Topovat











Nabízíme Vám k prodeji 1/2 rodinného domu (jednotka č. 2.B-dům 4-s masivní pergolou), tzv. dvojdomu, o velikosti 5+kk o obytné ploše cca 133 m2 + terasa cca 17 m2, na pozemku 440 m2 Veleliby, okres Nymburk.
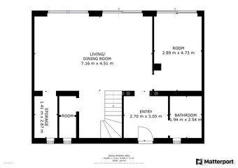
Dispozice přízemí: zádveří, technická místnost, schodiště, předsíňka + WC, spíž, obývací pokoj s kuchyňským koutem (kuchyňská linka není součástí kupní ceny), pokoj/pracovna.
Dispozice patro: chodba, koupelna s vanou, dvojumyvadlem se skříňkou, sprchovým koutem + WC, ložnice, 2x dětský pokoj. V celém domě zajišťuje teplo podlahové topení. Vytápění: tepelné čerpadlo v kombinaci s elektrokotlem + příprava pro budoucí možnost umístění solárních panelů na střeše.
Jednotka je plně samostatná s důrazem na zachování soukromí u vchodové části i u terasy.
Dále součástí ceny je: plovoucí podlaha v patře, vinylová podlaha obývací pokoj s kuchyňským koutem + spíž, dlažba v chodbě, technické místnosti, koupelně a WC, dále zařizovací předměty v koupelně a na WC (WC, vana, umyvadla, sprchový kout), obklad, dále železobetonové schodiště s keramickou dlažbou, zábradlí zakomponované s vestavbou do úložného prostoru pod schody, příprava na venkovní žaluzie/rolety. Terénní úpravy: oplocení, vjezdová brána, zatravnění.
Obec Veleliby je vesnice v okrese Nymburk, patřící pod obec Dvory. Leží 2 km na západ od Dvorů a 3 km severně od Nymburka. V docházkové vzdálenosti autobusová a vlaková zastávka. Výměra pozemku bude následně vymezena dle přesného zaměření a geometrického plánu. II. etapa nyní ve výstavbě, kolaudace II. etapy léto 2026.
ev.č.: 3839
cena včetně provize RK, právního a finančního servisu
třída energetické náročnosti budovy: B - Velmi úsporná
dle vyhlášky č.264/2020 Sb.
poloha objektu: Řadový
druh objektu: Cihlová
stav objektu: Novostavba
umístění objektu: Centrum obce
typ domu: Patrový
velikost: 5 a více pokojů
zastavěná plocha (m2): 75
užitná plocha (m2): 133
plocha parcely (m2): 440
počet podlaží objektu: 1
Dispozice přízemí: zádveří, technická místnost, schodiště, předsíňka + WC, spíž, obývací pokoj s kuchyňským koutem (kuchyňská linka není součástí kupní ceny), pokoj/pracovna.
Dispozice patro: chodba, koupelna s vanou, dvojumyvadlem se skříňkou, sprchovým koutem + WC, ložnice, 2x dětský pokoj. V celém domě zajišťuje teplo podlahové topení. Vytápění: tepelné čerpadlo v kombinaci s elektrokotlem + příprava pro budoucí možnost umístění solárních panelů na střeše.
Jednotka je plně samostatná s důrazem na zachování soukromí u vchodové části i u terasy.
Dále součástí ceny je: plovoucí podlaha v patře, vinylová podlaha obývací pokoj s kuchyňským koutem + spíž, dlažba v chodbě, technické místnosti, koupelně a WC, dále zařizovací předměty v koupelně a na WC (WC, vana, umyvadla, sprchový kout), obklad, dále železobetonové schodiště s keramickou dlažbou, zábradlí zakomponované s vestavbou do úložného prostoru pod schody, příprava na venkovní žaluzie/rolety. Terénní úpravy: oplocení, vjezdová brána, zatravnění.
Obec Veleliby je vesnice v okrese Nymburk, patřící pod obec Dvory. Leží 2 km na západ od Dvorů a 3 km severně od Nymburka. V docházkové vzdálenosti autobusová a vlaková zastávka. Výměra pozemku bude následně vymezena dle přesného zaměření a geometrického plánu. II. etapa nyní ve výstavbě, kolaudace II. etapy léto 2026.
ev.č.: 3839
cena včetně provize RK, právního a finančního servisu
třída energetické náročnosti budovy: B - Velmi úsporná
dle vyhlášky č.264/2020 Sb.
poloha objektu: Řadový
druh objektu: Cihlová
stav objektu: Novostavba
umístění objektu: Centrum obce
typ domu: Patrový
velikost: 5 a více pokojů
zastavěná plocha (m2): 75
užitná plocha (m2): 133
plocha parcely (m2): 440
počet podlaží objektu: 1
|
|
Kontaktovat inzerenta emailem
Kontaktovat emailem může pouze ověřený uživatel.
Ověření je zdarma.
Vaše telefonní číslo *
Kontaktovat emailem může pouze ověřený uživatel.
Ověření je zdarma.
Vaše telefonní číslo *
Podobné inzeráty

Nabízíme k prodeji prostorný rodinný dům v klidné části obce Nymburk. Tato cihlová nemovitost je ideální volbou pro rodiny hledající bydlení s dostatkem prostoru. Dům s podlahovou plochu 159 m² + sklepy 51 m² a samostatně stojící dvojgaráží s dílnou ...
9 900 000 Kč
Nymburk
288 02
288 02
82 x
Označit špatný inzerát Chybnou kategorii Ohodnotit uživatele Smazat/Upravit/Topovat

Nabízíme k prodeji exkluzivní novostavbu rodinného domu s užitnou plochou 178 m². Dům je ideální volbou pro ty, kteří hledají komfortní bydlení v nově vznikající moderní části na okraji Nymburka se skvělou dostupností a občanskou vybaveností. Dispozi ...
13 990 000 Kč
Nymburk
288 02
288 02
71 x
Označit špatný inzerát Chybnou kategorii Ohodnotit uživatele Smazat/Upravit/Topovat

Nabízíme k prodeji prostorný rodinný dům v centru Nymburka s výbornou dopravní dostupností a veškerou občanskou vybaveností v okolí. Ideální pro ty, kteří hledají možnost realizovat vlastní představy o bydlení. Dům o celkové užitné ploše 120 m² dispo ...
5 950 000 Kč
Nymburk
288 02
288 02
106 x
Označit špatný inzerát Chybnou kategorii Ohodnotit uživatele Smazat/Upravit/Topovat

Hledáte vhodnou investiční nemovitost? Máme pro vás rodinný dům, kde jsou aktuálně 2 samostatné byty připravené k rekonstrukci a prostor na půdě pro další jeden velký byt s terasou. Dokonce máme i připravený projekt, který se vám může hodit.
A proč i ...
11 399 000 Kč
Nymburk
288 02
288 02
127 x
Označit špatný inzerát Chybnou kategorii Ohodnotit uživatele Smazat/Upravit/Topovat

Nabízíme k prodeji rodinný dům se šesti obytnými místnostmi, který lze rozdělit až na tři domácnosti. V suterénu se nachází malý samostatně uzamykatelný byt 2+kk s koupelnou. V 1NP jsou dva prostorné pokoje (jeden z nich má krb a vstup na terasu se s ...
9 990 000 Kč
Nymburk
288 02
288 02
114 x
Označit špatný inzerát Chybnou kategorii Ohodnotit uživatele Smazat/Upravit/Topovat
![Prodej, domy/rodinný, 112 m2, Všechlapy, Nymburk [ID 63778]](https://www.bazos.cz/img/1t/298/209066298.jpg)
Prodej, domy/rodinný, 112 m2, Všechlapy, Nymburk [ID 63778]
Nabízíme k prodeji novostavbu rodinného domu ve Všechlapech. Dům je koncipován jako přízemní 4kk jehož podlahová plocha je 112 m2. Nachází se na vlastním pozemku o výměře 854 m², na okraji ...
9 990 000 Kč
Nymburk
288 02
288 02
144 x
Označit špatný inzerát Chybnou kategorii Ohodnotit uživatele Smazat/Upravit/Topovat

V domě jsou čtyři byty 2+kk a 2+1, aktuálně kompletně pronajato, nájemníci mají k dispozici zahradu, stodolu, kterou používají jako garáže, prostorný sklep. Každý byt je zařízený a vybavený, byty se velmi dobře pronajímají, je zde příjemné bydlení. ...
16 900 000 Kč
Nymburk
288 02
288 02
141 x
Označit špatný inzerát Chybnou kategorii Ohodnotit uživatele Smazat/Upravit/Topovat

Exkluzivně nabízíme patrový RD v obci Všechlapy, okr. Nymburk.
Dům o zastavěné ploše 77 m2 se nachází na vlastním rovinatém pozemku o výměře 742 m2 v původní zástavbě.
Součet zastavěných ploch ostatních přístřešků k plnohodnotnému využití, částeč ...
7 395 000 Kč
Nymburk
288 02
288 02
183 x
Označit špatný inzerát Chybnou kategorii Ohodnotit uživatele Smazat/Upravit/Topovat

Naše realitní kancelář Vám nabízí k prodeji vícegenerační rodinný dům na adrese Brigádnická 1812, Nymburk. Dům se se vyznačuje rozlehlým pozemkem a udržovanou zahradou. Tato nemovitost je ideální pro početné rodiny nebo pro bydlení více generací, pro ...
10 000 000 Kč
Nymburk
288 02
288 02
159 x
Označit špatný inzerát Chybnou kategorii Ohodnotit uživatele Smazat/Upravit/Topovat

Ev.č. 00293
Dispozice:
1.N.P. vstup, vstupní chodba, chodba se schodištěm do patra, obývací pokoj s kuchyní a jídelním koutem, pracovna, komora, WC a technické zázemí. V přízemí domu je také garáž.
2.N.P. chodba, čtyři ložnice, jedna z ložnic má ...
10 500 000 Kč
Nymburk
288 02
288 02
176 x
Označit špatný inzerát Chybnou kategorii Ohodnotit uživatele Smazat/Upravit/Topovat