Prodej stavebního pozemku (607m2) a rodinného domu (144m2),
- [15.10. 2025]Smazat/ Upravit/ Topovat





























Ev.č. 00747-2
Ve výhradním zastoupení si Vám dovoluji představit pozemek s hrubou
stavbou v obci Velký Ratmírov, která se nachází pouhých 7,5 km od města
Jindřichův Hradec v jižních Čechách. Tento pozemek o rozloze 607 m² je
ideální pro ty, kteří hledají klid a krásné výhledy, a přitom chtějí být v dosahu
městského života.
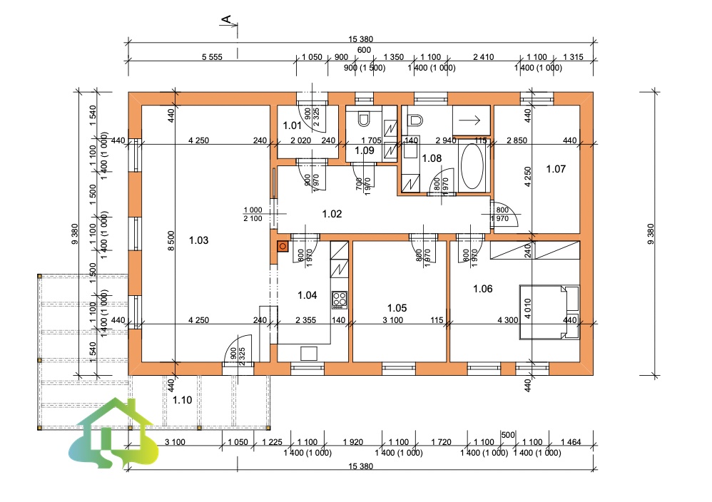
Na pozemku se nachází hrubá stavba domu s zastavěnou plochou 144 m² a
užitnou plochou přízemí 116 m². Dům byl navržen s možností rozšíření o
další bytovou jednotku v prvním nadzemním podlaží, která může mít
samostatný vchod. Stavba je realizována z cihel Heluz Family 44, které jsou
vyplněné polystyrénem, což zajišťuje tepelnou izolaci o 40 % vyšší než
standard. Energetický štítek domu je v kategorii A, což svědčí o jeho
vynikající energetické účinnosti. Orientace pozemku je na jih.
Dům je postaven ve venkovském stylu a je vybaven nejmodernějšími
technologiemi. Bude napojen na všechny potřebné inženýrské sítě včetně
kanalizace, vodovodu a elektřiny. Okna jsou plastová s trojskly a fasáda
rovnou na cihlu zajišťuje vynikající tepelnou izolaci. Střecha je sedlová,
pokrytá pálenými taškami BRAMAC, a okapy jsou hliníkové.
Pozemek zahrnuje i zahradu, která je ideální pro relaxaci. Dům splňuje
kritéria pasivního domu a k dispozici je kompletní projekt a stavební deník.
Dokončení stavby je možné po dohodě se zájemcem - zbývá pouze 25 %
práce, což umožňuje rychlé nastěhování. Dům je připraven na instalaci
elektrokotle nebo tepelného čerpadla, podlahového topení i předokenních
rolet. Je zde také příprava na příprava na kamna nebo krb - komín má již
obložení.Mimo jiné z boku domu bude terasa o velikosti 24m2, kde si můžete
užívat klid.
Práce na domě stále pokračují již jsou na řadě příčky. Lze se domluvit i na
dokončení domu k nastěhování, dle plánu odhadujeme cca do 6 měsíců.
Cena dokončení je na dohodě. Výhody tohoto pozemku spočívají nejen v
jeho poloze s nádherným výhledem do přírody, ale i v dobré dopravní
dostupnosti. Vlaková zastávka Děbolín je vzdálená jen 2 km. V obci Velký
Ratmírov najdete hospodu, a veškeré další služby a obchody jsou v blízkém
Jindřichově Hradci.
Tento pozemek s hrubou stavbou je ideální volbou pro ty, kteří hledají kvalitní
bydlení v klidném prostředí s veškerým komfortem moderního života. Stačí
jen dokončit zbývající práce a můžete se stěhovat do svého nového domova.
Budem se na Vás těšit na prohlídce.
En. náročnost b.: A - Mimořádně úsporná (35.4 kWh/m2 za rok)
Ve výhradním zastoupení si Vám dovoluji představit pozemek s hrubou
stavbou v obci Velký Ratmírov, která se nachází pouhých 7,5 km od města
Jindřichův Hradec v jižních Čechách. Tento pozemek o rozloze 607 m² je
ideální pro ty, kteří hledají klid a krásné výhledy, a přitom chtějí být v dosahu
městského života.
Na pozemku se nachází hrubá stavba domu s zastavěnou plochou 144 m² a
užitnou plochou přízemí 116 m². Dům byl navržen s možností rozšíření o
další bytovou jednotku v prvním nadzemním podlaží, která může mít
samostatný vchod. Stavba je realizována z cihel Heluz Family 44, které jsou
vyplněné polystyrénem, což zajišťuje tepelnou izolaci o 40 % vyšší než
standard. Energetický štítek domu je v kategorii A, což svědčí o jeho
vynikající energetické účinnosti. Orientace pozemku je na jih.
Dům je postaven ve venkovském stylu a je vybaven nejmodernějšími
technologiemi. Bude napojen na všechny potřebné inženýrské sítě včetně
kanalizace, vodovodu a elektřiny. Okna jsou plastová s trojskly a fasáda
rovnou na cihlu zajišťuje vynikající tepelnou izolaci. Střecha je sedlová,
pokrytá pálenými taškami BRAMAC, a okapy jsou hliníkové.
Pozemek zahrnuje i zahradu, která je ideální pro relaxaci. Dům splňuje
kritéria pasivního domu a k dispozici je kompletní projekt a stavební deník.
Dokončení stavby je možné po dohodě se zájemcem - zbývá pouze 25 %
práce, což umožňuje rychlé nastěhování. Dům je připraven na instalaci
elektrokotle nebo tepelného čerpadla, podlahového topení i předokenních
rolet. Je zde také příprava na příprava na kamna nebo krb - komín má již
obložení.Mimo jiné z boku domu bude terasa o velikosti 24m2, kde si můžete
užívat klid.
Práce na domě stále pokračují již jsou na řadě příčky. Lze se domluvit i na
dokončení domu k nastěhování, dle plánu odhadujeme cca do 6 měsíců.
Cena dokončení je na dohodě. Výhody tohoto pozemku spočívají nejen v
jeho poloze s nádherným výhledem do přírody, ale i v dobré dopravní
dostupnosti. Vlaková zastávka Děbolín je vzdálená jen 2 km. V obci Velký
Ratmírov najdete hospodu, a veškeré další služby a obchody jsou v blízkém
Jindřichově Hradci.
Tento pozemek s hrubou stavbou je ideální volbou pro ty, kteří hledají kvalitní
bydlení v klidném prostředí s veškerým komfortem moderního života. Stačí
jen dokončit zbývající práce a můžete se stěhovat do svého nového domova.
Budem se na Vás těšit na prohlídce.
En. náročnost b.: A - Mimořádně úsporná (35.4 kWh/m2 za rok)
|
| |||||||||||||||||||||||||||||||
Kontaktovat inzerenta emailem
Kontaktovat emailem může pouze ověřený uživatel.
Ověření je zdarma.
Vaše telefonní číslo *
Kontaktovat emailem může pouze ověřený uživatel.
Ověření je zdarma.
Vaše telefonní číslo *








