Prodej rodinného domu ve Vlašimi
- [16.10. 2025]Smazat/ Upravit/ Topovat








Ve výhradním zastoupení Vám nabízíme ke koupi dvougenerační rodinný dům s celkovou užitnou plochou 235 m2 ve velmi žádané lokalitě v obci Vlašim. Dům zkolaudovaný v roce 1986 stojí na pozemku o rozloze 501 m2. Dispoziční řešení 2x3+1 + 2 garáže, sklep a hospodářská budova je ideální volbou pro rodinu, která si potrpí na dostatek prostoru.
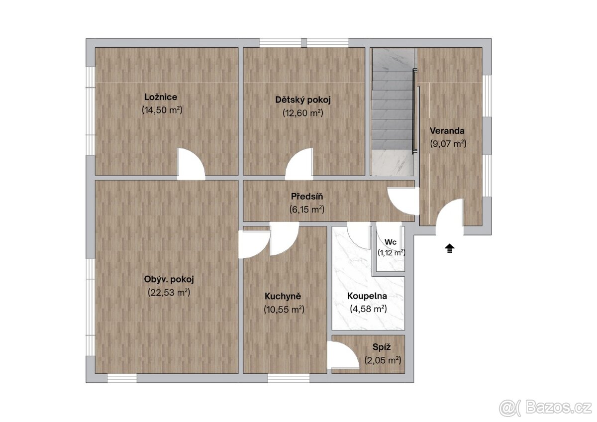
I. NP - zádveří, veranda (9,07m2), předsíň (6,15m2), koupelna s vanou (4,58m2), samostatné WC (1,12m2), kuchyně (10,55m2), dětský pokoj (12,60m2), obývací pokoj (22,53m2) a ložnice (14,50m2).
II. NP – předsíň (5,46m2), koupelna s vanou (5,55m2), spíž (1,04m2), dětský pokoj (11,30m2), obývací pokoj (20,04m2), ložnice (12,35m2).
Součástí domu je sklep s garáží o výměře 76m2. IS elektro 230 a 400V, vodovodní přípojka, splašková kanalizace, ÚT - plyn, kotel na tuhá paliva, ohřev teplé vody el. bojler, svislé konstrukce – tvárnice, stropy – hurdisky, nová střešní krytina Bramac Aerloc (2022), krov dřevěný. RD je v udržovaném stavu, je vhodný k rekonstrukci.
K domu patří zahrada se zelení a posezením. Lze využívat dvě garáže s dílnou a skladem s parkovací plochou. Dům se nachází v klidné ulici, v docházkové vzdálenosti jsou mateřské školky, řada dětských hřišť a sportovišť, školky, školy, obchody, restaurace a služby. Jedná se o atraktivní rezidenční lokalitu v blízkosti vlašimského zámku, tří historických náměstí, s dobrou dostupností do Benešova a Prahy.
I. NP - zádveří, veranda (9,07m2), předsíň (6,15m2), koupelna s vanou (4,58m2), samostatné WC (1,12m2), kuchyně (10,55m2), dětský pokoj (12,60m2), obývací pokoj (22,53m2) a ložnice (14,50m2).
II. NP – předsíň (5,46m2), koupelna s vanou (5,55m2), spíž (1,04m2), dětský pokoj (11,30m2), obývací pokoj (20,04m2), ložnice (12,35m2).
Součástí domu je sklep s garáží o výměře 76m2. IS elektro 230 a 400V, vodovodní přípojka, splašková kanalizace, ÚT - plyn, kotel na tuhá paliva, ohřev teplé vody el. bojler, svislé konstrukce – tvárnice, stropy – hurdisky, nová střešní krytina Bramac Aerloc (2022), krov dřevěný. RD je v udržovaném stavu, je vhodný k rekonstrukci.
K domu patří zahrada se zelení a posezením. Lze využívat dvě garáže s dílnou a skladem s parkovací plochou. Dům se nachází v klidné ulici, v docházkové vzdálenosti jsou mateřské školky, řada dětských hřišť a sportovišť, školky, školy, obchody, restaurace a služby. Jedná se o atraktivní rezidenční lokalitu v blízkosti vlašimského zámku, tří historických náměstí, s dobrou dostupností do Benešova a Prahy.
|
|
Kontaktovat inzerenta emailem
Kontaktovat emailem může pouze ověřený uživatel.
Ověření je zdarma.
Vaše telefonní číslo *
Kontaktovat emailem může pouze ověřený uživatel.
Ověření je zdarma.
Vaše telefonní číslo *