Prodej pozemku se stavebním povol., Popůvky u Brna,CP 1924m²
- [16.10. 2025]Smazat/ Upravit/ Topovat























Ve výhradním zastoupení Vám nabízíme zprostředkování prodeje pozemku, na který již bylo vydáno stavební povolení, a který se nachází v nově se rozvíjející části Popůvek.
Celková výměra pozemku činí 1.924 m², přičemž se jedná o skoro pravidelný čtverec (42 m x 47 m). V přední části je pozemek rovinatější než v části zadní. Momentálně zde stojí chata (23 m2), která je určena k demolici.
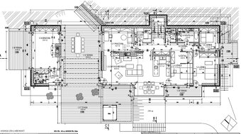
Stavební povolení je v současnosti vydáno na výstavbu nadstandardního dvoupodlažního rekreačního objektu se zelenou střechou o velikosti 5+kk, cca 400 m² včetně teras (150 m2). Dům je navržen včetně dvojgaráže, technického zázemí a tepelného čerpadla.
Ovšem na pozemku lze postavit i nemovitost podle Vašich představ max. do 100 m2. Popřípadě se dá pozemek rozdělit a následně obě části využít k výstavbě.
IS: elektřina - stavební rozvaděč na pozemku, voda - vlastní studna na pozemku, kanalizace - povolená jímka na vyvážení.
Příjezd na pozemek je po asfaltové komunikaci kolem Dolního rybníku a následně vede po panelové komunikaci. V blízkosti pozemku stojí chaty a nově postavené domy.
Popůvky u Brna mají přibližně 1.900 obyvatel a nachází se v okrese Brno-venkov v těsné blízkosti Brna a přitom v Bobravské vrchovině. Obec je součástí IDS, nabízí pravidelné autobusové spojení i infrastrukturu v podobě mateřské a základní školy.
V okolí jsou rozsáhlé lesy lákající k procházkám, turistice a ke sběru hub. V blízkosti je soukromý rybník určený ke sportovnímu rybolovu.
Uvedená cena včetně všech poplatků.
Neváhejte mě kontaktovat a domluvte si prohlídku. Rád vám tento výjimečný pozemek osobně představím.
Celková výměra pozemku činí 1.924 m², přičemž se jedná o skoro pravidelný čtverec (42 m x 47 m). V přední části je pozemek rovinatější než v části zadní. Momentálně zde stojí chata (23 m2), která je určena k demolici.
Stavební povolení je v současnosti vydáno na výstavbu nadstandardního dvoupodlažního rekreačního objektu se zelenou střechou o velikosti 5+kk, cca 400 m² včetně teras (150 m2). Dům je navržen včetně dvojgaráže, technického zázemí a tepelného čerpadla.
Ovšem na pozemku lze postavit i nemovitost podle Vašich představ max. do 100 m2. Popřípadě se dá pozemek rozdělit a následně obě části využít k výstavbě.
IS: elektřina - stavební rozvaděč na pozemku, voda - vlastní studna na pozemku, kanalizace - povolená jímka na vyvážení.
Příjezd na pozemek je po asfaltové komunikaci kolem Dolního rybníku a následně vede po panelové komunikaci. V blízkosti pozemku stojí chaty a nově postavené domy.
Popůvky u Brna mají přibližně 1.900 obyvatel a nachází se v okrese Brno-venkov v těsné blízkosti Brna a přitom v Bobravské vrchovině. Obec je součástí IDS, nabízí pravidelné autobusové spojení i infrastrukturu v podobě mateřské a základní školy.
V okolí jsou rozsáhlé lesy lákající k procházkám, turistice a ke sběru hub. V blízkosti je soukromý rybník určený ke sportovnímu rybolovu.
Uvedená cena včetně všech poplatků.
Neváhejte mě kontaktovat a domluvte si prohlídku. Rád vám tento výjimečný pozemek osobně představím.
|
| |||||||||||||||||||||||||||||||
Kontaktovat inzerenta emailem
Kontaktovat emailem může pouze ověřený uživatel.
Ověření je zdarma.
Vaše telefonní číslo *
Kontaktovat emailem může pouze ověřený uživatel.
Ověření je zdarma.
Vaše telefonní číslo *


