Bydlení v blízkosti Prahy
- [18.10. 2025]Smazat/ Upravit/ Topovat









Máme pro vás exkluzivní nabídku stavebního pozemku v atraktivní a klidné lokalitě Poříčí nad Sázavou, která právě prochází proměnou v moderní čtvrť rodinných domů.
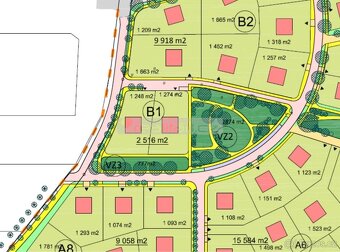
Pozemková parcela č. 198/6 o rozloze 1.249 m² se nachází v západní části této nové rezidenční oblasti. Kupní cena činí 3.050.000,- Kč za pozemek.
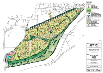
V ceně nejsou zahrnuty poplatky za připojení na inženýrské sítě. V plánu je vybudování kompletní infrastruktury – elektřiny, vody, plynu, kanalizace, komunikací a veřejné zeleně.
Celé území je dle územního plánu určeno k výstavbě rodinných domů, což z něj činí ideální volbu pro klidné a pohodové bydlení.
Zaujala vás tato nabídka? Neváhejte mě kontaktovat – ráda vám poskytnu více informací na níže uvedených kontaktech Po-pá 9.00-17.00 hod.
Pozemková parcela č. 198/6 o rozloze 1.249 m² se nachází v západní části této nové rezidenční oblasti. Kupní cena činí 3.050.000,- Kč za pozemek.
V ceně nejsou zahrnuty poplatky za připojení na inženýrské sítě. V plánu je vybudování kompletní infrastruktury – elektřiny, vody, plynu, kanalizace, komunikací a veřejné zeleně.
Celé území je dle územního plánu určeno k výstavbě rodinných domů, což z něj činí ideální volbu pro klidné a pohodové bydlení.
Zaujala vás tato nabídka? Neváhejte mě kontaktovat – ráda vám poskytnu více informací na níže uvedených kontaktech Po-pá 9.00-17.00 hod.
|
|
Kontaktovat inzerenta emailem
Kontaktovat emailem může pouze ověřený uživatel.
Ověření je zdarma.
Vaše telefonní číslo *
Kontaktovat emailem může pouze ověřený uživatel.
Ověření je zdarma.
Vaše telefonní číslo *