Velmi pěkný zděný byt 3+kk 91 m2, Havlíčkův Brod - Stromovka
- [19.10. 2025]Smazat/ Upravit/ Topovat











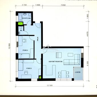
Ve výhradním zastoupení nabízíme velmi pěkný zděný byt 3+kk o podlahové ploše 91 m², který byl dokončen v roce 2019 a nachází se ve 2. nadzemním podlaží zatepleného a moderně vybaveného bytového domu.
Dispozice bytu zahrnuje prostornou předsíň a chodbu, koupelnu s vanou, umyvadlem a místem pro pračku se sušičkou. Samostatné WC je umístěno hned vedle koupelny. Dominantou bytu je velkorysý obývací pokoj s kuchyní o ploše přibližně 45 m², orientovaný na jižní stranu směrem do ulice. Z této místnosti je přímý vstup na lodžii. Kuchyňská linka je plně vybavena vestavěnými spotřebiči – elektrickou varnou deskou, horkovzdušnou troubou, digestoří, myčkou a novou lednicí s mrazákem. Celý byt byl nově vymalován bílou barvou.
Topení je dálkové s dálkovými odečty, v koupelně je navíc podlahové topení pro vyšší komfort. V bytě jsou plovoucí podlahy, v koupelně a na WC keramická dlažba. Jádro je zděné, voda i teplo jsou zajištěny dálkovým odečtem.
Součástí nabídky je také uzamykatelná sklepní kóje o velikosti cca 3 m² a možnost pronájmu krytého parkovacího stání (2.000 Kč/měsíc), které se nachází ve stejném podlaží jako sklep. Vstup do domu je zabezpečen čipovým systémem a garážová vrata se ovládají pohodlně přes mobilní telefon.
Velkou výhodou je možnost dokoupit stávající pronajaté i sousední parkovací místo, které je aktuálně do konce roku 2025 v pronájmu – ideální řešení pro dvouvozidlovou domácnost.
Byt je ve výborném technickém stavu, ihned k nastěhování. Bytový dům je čistý a pravidelně udržovaný, úklid zajišťuje profesionální firma. Díky osobnímu vlastnictví lze koupi financovat hypotečním úvěrem nebo stavebním spořením – s vyřízením vám ochotně pomůže náš hypoteční specialista.
Dispozice bytu zahrnuje prostornou předsíň a chodbu, koupelnu s vanou, umyvadlem a místem pro pračku se sušičkou. Samostatné WC je umístěno hned vedle koupelny. Dominantou bytu je velkorysý obývací pokoj s kuchyní o ploše přibližně 45 m², orientovaný na jižní stranu směrem do ulice. Z této místnosti je přímý vstup na lodžii. Kuchyňská linka je plně vybavena vestavěnými spotřebiči – elektrickou varnou deskou, horkovzdušnou troubou, digestoří, myčkou a novou lednicí s mrazákem. Celý byt byl nově vymalován bílou barvou.
Topení je dálkové s dálkovými odečty, v koupelně je navíc podlahové topení pro vyšší komfort. V bytě jsou plovoucí podlahy, v koupelně a na WC keramická dlažba. Jádro je zděné, voda i teplo jsou zajištěny dálkovým odečtem.
Součástí nabídky je také uzamykatelná sklepní kóje o velikosti cca 3 m² a možnost pronájmu krytého parkovacího stání (2.000 Kč/měsíc), které se nachází ve stejném podlaží jako sklep. Vstup do domu je zabezpečen čipovým systémem a garážová vrata se ovládají pohodlně přes mobilní telefon.
Velkou výhodou je možnost dokoupit stávající pronajaté i sousední parkovací místo, které je aktuálně do konce roku 2025 v pronájmu – ideální řešení pro dvouvozidlovou domácnost.
Byt je ve výborném technickém stavu, ihned k nastěhování. Bytový dům je čistý a pravidelně udržovaný, úklid zajišťuje profesionální firma. Díky osobnímu vlastnictví lze koupi financovat hypotečním úvěrem nebo stavebním spořením – s vyřízením vám ochotně pomůže náš hypoteční specialista.
|
|
Kontaktovat inzerenta emailem
Kontaktovat emailem může pouze ověřený uživatel.
Ověření je zdarma.
Vaše telefonní číslo *
Kontaktovat emailem může pouze ověřený uživatel.
Ověření je zdarma.
Vaše telefonní číslo *