Prodej komerčně-obytného domu v centru Veselí n. Lužnicí
- TOP - [7.11. 2025]Smazat/ Upravit/ Topovat






























– ideální pro podnikání, bydlení i investici.
https://www.youtube.com/watch?v=c-1P3U-WYWE
Nabízíme k prodeji výraznou rohovou patrovou budovu přímo na Náměstí T. G. Masaryka ve Veselí nad Lužnicí. Nemovitost představuje výjimečnou příležitost pro podnikatele, investory i zájemce o spojení podnikání s bydlením. Objekt lze ihned využívat a zároveň nabízí velký potenciál pro modernizaci či další rozšíření podle vlastních představ.
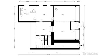
V přízemí se nachází dva samostatné obchodní prostory / nebytové jednotky se zázemím a skladem o celkové výměře cca 180 m². Příčku mezi nimi lze snadno odstranit a vytvořit jeden velkorysý otevřený prostor vhodný pro prodejnu, showroom, kanceláře, gastro provoz nebo služby.
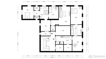
V 1. patře se nachází 2 prostorné bytové jednotky (každá cca 95 m², dispozice 5+1 a 5+kk), které budou volné a připravené k užívání přibližně od konce listopadu.
Půda o velikosti cca 180 m² je ideální pro vestavbu dalších bytů, kanceláří či ateliéru, čímž lze výrazně navýšit výnos z investice. V suterénu se nachází technické zázemí o rozloze cca 180 m² – členité sklepní prostory vhodné pro skladování, archiv, dílnu nebo servisní zázemí.
K domu náleží také menší zahrada, garáž o velikosti 27 m² a dvě terasy (každá cca 15 m²). Celková plocha pozemku včetně zastavěné plochy činí 418 m². Objekt disponuje přípojkou plynu, komerční prostory jsou vytápěny plynovým kotlem, byty elektrickými přímotopy.
Lokalita a výhody:
Dům se nachází v samotném centru města s kompletní občanskou vybaveností – obchody, služby, školy, školky, kulturní dům, sportoviště, banky i pošta jsou v docházkové vzdálenosti. Veselí nad Lužnicí leží na strategické trase Praha – Tábor – České Budějovice – Rakousko s přímým napojením na dálnici D3 a je významnou železniční křižovatkou.
Okolí nabízí bohaté možnosti pro rekreaci a aktivní odpočinek – přírodní koupaliště Veselské pískovny, řeky Lužnice a Nežárka, cyklostezky a CHKO Třeboňsko. Lokalita má dlouhodobě rostoucí investiční potenciál a poptávku po kvalitních bytech i komerčních prostorech.
Tato nemovitost je ideální volbou pro investory, podnikatele i developery – nabízí kombinaci obchodních prostor, bytového zázemí, technických prostor i možnosti další výstavby. Díky své poloze, dispozici a potenciálu se jedná o mimořádnou nabídku, která se na trhu objevuje jen zřídka.
📍 Adresa: Náměstí T. G. Masaryka, Veselí nad Lužnicí
📐 Pozemek: 418 m²
📩 Kontakt: prodejdumveseli@gmail.com
https://www.youtube.com/watch?v=c-1P3U-WYWE
Nabízíme k prodeji výraznou rohovou patrovou budovu přímo na Náměstí T. G. Masaryka ve Veselí nad Lužnicí. Nemovitost představuje výjimečnou příležitost pro podnikatele, investory i zájemce o spojení podnikání s bydlením. Objekt lze ihned využívat a zároveň nabízí velký potenciál pro modernizaci či další rozšíření podle vlastních představ.
V přízemí se nachází dva samostatné obchodní prostory / nebytové jednotky se zázemím a skladem o celkové výměře cca 180 m². Příčku mezi nimi lze snadno odstranit a vytvořit jeden velkorysý otevřený prostor vhodný pro prodejnu, showroom, kanceláře, gastro provoz nebo služby.
V 1. patře se nachází 2 prostorné bytové jednotky (každá cca 95 m², dispozice 5+1 a 5+kk), které budou volné a připravené k užívání přibližně od konce listopadu.
Půda o velikosti cca 180 m² je ideální pro vestavbu dalších bytů, kanceláří či ateliéru, čímž lze výrazně navýšit výnos z investice. V suterénu se nachází technické zázemí o rozloze cca 180 m² – členité sklepní prostory vhodné pro skladování, archiv, dílnu nebo servisní zázemí.
K domu náleží také menší zahrada, garáž o velikosti 27 m² a dvě terasy (každá cca 15 m²). Celková plocha pozemku včetně zastavěné plochy činí 418 m². Objekt disponuje přípojkou plynu, komerční prostory jsou vytápěny plynovým kotlem, byty elektrickými přímotopy.
Lokalita a výhody:
Dům se nachází v samotném centru města s kompletní občanskou vybaveností – obchody, služby, školy, školky, kulturní dům, sportoviště, banky i pošta jsou v docházkové vzdálenosti. Veselí nad Lužnicí leží na strategické trase Praha – Tábor – České Budějovice – Rakousko s přímým napojením na dálnici D3 a je významnou železniční křižovatkou.
Okolí nabízí bohaté možnosti pro rekreaci a aktivní odpočinek – přírodní koupaliště Veselské pískovny, řeky Lužnice a Nežárka, cyklostezky a CHKO Třeboňsko. Lokalita má dlouhodobě rostoucí investiční potenciál a poptávku po kvalitních bytech i komerčních prostorech.
Tato nemovitost je ideální volbou pro investory, podnikatele i developery – nabízí kombinaci obchodních prostor, bytového zázemí, technických prostor i možnosti další výstavby. Díky své poloze, dispozici a potenciálu se jedná o mimořádnou nabídku, která se na trhu objevuje jen zřídka.
📍 Adresa: Náměstí T. G. Masaryka, Veselí nad Lužnicí
📐 Pozemek: 418 m²
📩 Kontakt: prodejdumveseli@gmail.com
|
| |||||||||||||||||||||||||||||||
Kontaktovat inzerenta emailem
Kontaktovat emailem může pouze ověřený uživatel.
Ověření je zdarma.
Vaše telefonní číslo *
Kontaktovat emailem může pouze ověřený uživatel.
Ověření je zdarma.
Vaše telefonní číslo *
Podobné inzeráty
Prodej obchodního objektu, 4001 m², Veselí nad Lužnicí - [16.11. 2025]Prodej výrobního a skladovacího areálu o celkové ploše 4001 m² ve Veselí nad Lužnicí. Součástí prodeje je soubor skladovacích a výrobních hal s podlahovou plochou 1047 m² a kanceláří se sociálním zařízením. Dále je zde zpevněná manipulační plocha o v ...
19 990 000 Kč
Tábor
391 81
391 81
270 x
Označit špatný inzerát Chybnou kategorii Ohodnotit uživatele Smazat/Upravit/Topovat









