Prodej komerčně-obytného domu – bydlení, podnikání i investi
- TOP - [21.10. 2025]Smazat/ Upravit/ Topovat











Nabízíme k prodeji jedinečný patrový dům přímo na Náměstí T. G. Masaryka v centru Veselí nad Lužnicí. Nemovitost kombinuje bydlení, komerční prostory i prostor pro další rozvoj, což z ní dělá skvělou příležitost pro podnikatele, investory nebo rodinu, která chce spojit domov s podnikáním pod jednou střechou.
video: https://bit.ly/prodej_dum_veseli
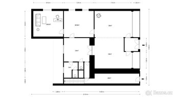
Dispozice objektu:
🏢 Přízemí: dvě samostatné obchodní jednotky / nebytové prostory (celkem cca 180 m²) se zázemím a skladem. Příčku lze odstranit a vytvořit jeden velkorysý prostor.
🏡 1. patro: dvě bytové jednotky (5+1 a 5+kk), každá cca 95 m², které budou volné a připravené k užívání od konce listopadu.
🏗️ Půda: cca 180 m² – ideální pro vestavbu dalších bytů nebo kanceláří.
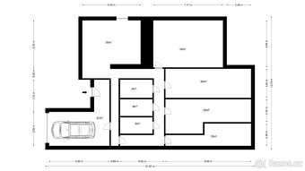
🛠️ Suterén: cca 180 m² technického zázemí, členité sklepy vhodné pro sklad, archiv či dílnu.
🌿 Exteriér: menší zahrada, garáž (27 m²) a dvě terasy (cca 15 m²).
📐 Celková plocha pozemku včetně zastavěné plochy: cca 418 m².
Dům je možné ihned užívat, zároveň nabízí velký potenciál pro modernizaci a úpravy dle vlastních představ. Díky variabilní dispozici lze objekt využít jako prostorné rodinné sídlo, kombinaci bydlení a kanceláří, investiční dům k pronájmu nebo developerský projekt.
Technické informace:
Přípojka plynu k dispozici.
Nebytové prostory – vytápění plynovým kotlem.
Byty – elektrické přímotopy.
Lokalita – Veselí nad Lužnicí:
Dům se nachází v centru města s kompletní občanskou vybaveností v docházkové vzdálenosti. Výborná dopravní dostupnost – přímé napojení na dálnici D3 a železniční uzel. Oblíbená rekreační oblast (Veselské pískovny, Lužnice, CHKO Třeboňsko) a rostoucí poptávka po kvalitních bytech i komerčních prostorách zajišťují vysoký investiční potenciál.
📍 Adresa: Náměstí T. G. Masaryka, Veselí nad Lužnicí
📐 Pozemek: 418 m²
📩 Kontakt: prodejdumveseli@gmail.com
video: https://bit.ly/prodej_dum_veseli
Dispozice objektu:
🏢 Přízemí: dvě samostatné obchodní jednotky / nebytové prostory (celkem cca 180 m²) se zázemím a skladem. Příčku lze odstranit a vytvořit jeden velkorysý prostor.
🏡 1. patro: dvě bytové jednotky (5+1 a 5+kk), každá cca 95 m², které budou volné a připravené k užívání od konce listopadu.
🏗️ Půda: cca 180 m² – ideální pro vestavbu dalších bytů nebo kanceláří.
🛠️ Suterén: cca 180 m² technického zázemí, členité sklepy vhodné pro sklad, archiv či dílnu.
🌿 Exteriér: menší zahrada, garáž (27 m²) a dvě terasy (cca 15 m²).
📐 Celková plocha pozemku včetně zastavěné plochy: cca 418 m².
Dům je možné ihned užívat, zároveň nabízí velký potenciál pro modernizaci a úpravy dle vlastních představ. Díky variabilní dispozici lze objekt využít jako prostorné rodinné sídlo, kombinaci bydlení a kanceláří, investiční dům k pronájmu nebo developerský projekt.
Technické informace:
Přípojka plynu k dispozici.
Nebytové prostory – vytápění plynovým kotlem.
Byty – elektrické přímotopy.
Lokalita – Veselí nad Lužnicí:
Dům se nachází v centru města s kompletní občanskou vybaveností v docházkové vzdálenosti. Výborná dopravní dostupnost – přímé napojení na dálnici D3 a železniční uzel. Oblíbená rekreační oblast (Veselské pískovny, Lužnice, CHKO Třeboňsko) a rostoucí poptávka po kvalitních bytech i komerčních prostorách zajišťují vysoký investiční potenciál.
📍 Adresa: Náměstí T. G. Masaryka, Veselí nad Lužnicí
📐 Pozemek: 418 m²
📩 Kontakt: prodejdumveseli@gmail.com
|
|
Kontaktovat inzerenta emailem
Kontaktovat emailem může pouze ověřený uživatel.
Ověření je zdarma.
Vaše telefonní číslo *
Kontaktovat emailem může pouze ověřený uživatel.
Ověření je zdarma.
Vaše telefonní číslo *
Podobné inzeráty

Nabízíme ke koupi moderní rodinný dům 4+kk o užitné ploše 110 m², nacházející se v klidné části Veselí nad Lužnicí, ulice Polní. Tento samostatně stojící dům byl dokončen v roce 202 a je ideální pro rodiny hledající komfortní bydlení v moderním stylu ...
9 800 000 Kč
Tábor
391 81
391 81
234 x
Označit špatný inzerát Chybnou kategorii Ohodnotit uživatele Smazat/Upravit/Topovat

Prostorný dvougenerační dům s velkou zahradou ve Veselí nad Lužnicí.
Hledáte klidné rodinné bydlení s dostatkem prostoru, soukromí a možností úprav dle vlastních představ? Máme pro vás ideální nabídku!
Nabízíme k prodeji prostorný rodinný dům o uži ...
7 950 000 Kč
Tábor
391 81
391 81
152 x
Označit špatný inzerát Chybnou kategorii Ohodnotit uživatele Smazat/Upravit/Topovat

Nabízíme k prodeji výjimečnou usedlost v jihočeské obci Žíšov s rozlehlým pozemkem o výměře 2546 m² a stabilním příjmem z provozovaného ubytování. Objekt tvoří samostatný byt 4+1 (123,8 m²) a ubytovací část s 9 SAMOSTANÝCH JEDNOTEK se sociálním zaříz ...
16 900 000 Kč
Tábor
391 81
391 81
251 x
Označit špatný inzerát Chybnou kategorii Ohodnotit uživatele Smazat/Upravit/Topovat

Prostorná dvougenerační vila se zahradou ve Veselí nad Lužnicí II – ideální pro rodinné bydlení i investici!
K prodeji zprostředkujeme krásně udržovanou dvougenerační vilu ve vyhledávané vilové čtvrti Veselí nad Lužnicí II, jen pár kroků od lesa a r ...
8 900 000 Kč
Tábor
391 81
391 81
766 x
Označit špatný inzerát Chybnou kategorii Ohodnotit uživatele Smazat/Upravit/Topovat