Kancelářské prostory 181 m², Plzeň - Litice, ul. Klatovská
- [22.10. 2025]Smazat/ Upravit/ Topovat

























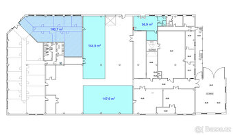
Na pronájem kancelářské prostory o ploše 180,7 m² na Klatovské ulici v Plzni, v části Litice. K kancelářím je možné si pronajmout také skladové prostory v objektu a až 12 parkovacích míst před domem. Společné prostory zahrnují pánské a dámské toalety a kuchyňku.
Půdorys skladových prostor volných k pronájmu je přiložen ve fotografiích.
Kancelářské prostory se nacházejí v přízemí a jsou rozděleny na jednotlivé kanceláře moderními skleněnými příčkami. Vytápění je podlahové. Automatický systém Loxone ovládá topení, řídí žaluzie, osvětlení i audio. Pro každou kancelář je možné individuální nastavení. Objekt je elektronicky zabezpečen a napojen na PCO.
Výše nájemného je stanovena bez DPH. Vratná kauce činí 113 696 Kč a provize RK 46 982 Kč. Elektřina se hradí dle skutečné spotřeby. Služby budou účtovány dle využití (cca 3 000 Kč – 10 000 Kč), a to s ohledem na rozsah služeb úklidové firmy.
ev.č.: 0326
třída energetické náročnosti budovy: B - Velmi úsporná
dle vyhlášky č.264/2020 Sb.
druh objektu: Cihlová
stav objektu: Po rekonstrukci
typ domu: Přízemní
zastavěná plocha (m2): 2138
plocha kanceláří (m2): 181
počet podlaží objektu: 1
celková podlahová plocha (m2): 181
Půdorys skladových prostor volných k pronájmu je přiložen ve fotografiích.
Kancelářské prostory se nacházejí v přízemí a jsou rozděleny na jednotlivé kanceláře moderními skleněnými příčkami. Vytápění je podlahové. Automatický systém Loxone ovládá topení, řídí žaluzie, osvětlení i audio. Pro každou kancelář je možné individuální nastavení. Objekt je elektronicky zabezpečen a napojen na PCO.
Výše nájemného je stanovena bez DPH. Vratná kauce činí 113 696 Kč a provize RK 46 982 Kč. Elektřina se hradí dle skutečné spotřeby. Služby budou účtovány dle využití (cca 3 000 Kč – 10 000 Kč), a to s ohledem na rozsah služeb úklidové firmy.
ev.č.: 0326
třída energetické náročnosti budovy: B - Velmi úsporná
dle vyhlášky č.264/2020 Sb.
druh objektu: Cihlová
stav objektu: Po rekonstrukci
typ domu: Přízemní
zastavěná plocha (m2): 2138
plocha kanceláří (m2): 181
počet podlaží objektu: 1
celková podlahová plocha (m2): 181
|
| |||||||||||||||||||||||||||||||
Kontaktovat inzerenta emailem
Kontaktovat emailem může pouze ověřený uživatel.
Ověření je zdarma.
Vaše telefonní číslo *
Kontaktovat emailem může pouze ověřený uživatel.
Ověření je zdarma.
Vaše telefonní číslo *




