PRODEJ STAVEBNÍ PARCELY 1.053 M2, LIPÍ U ČESKÝCH BUDĚJOVIC
- [23.10. 2025]Smazat/ Upravit/ Topovat






























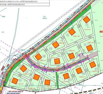
Nabízíme k prodeji stavební parcelu o výměře 1.053 m2 v klidné a okrajové části obce Lipí u Českých Budějovic. Stavební parcela se nachází v nově vzniklé lokalitě 14 stavebních pozemků okrajové části obce. Pozemek je kompletně zasíťovaný (elektřina 220/380 V, plyn, voda - obecní, kanalizace – obecní, internet ) a přístupný z obecní komunikace. Tato nově vzniklá lokalita obce Lipí je vzdálena 11 km od centra krajského města České Budějovice. Při plánování této výstavby byl kladen důraz na zachování prestiže a soukromí této lokality s důrazem na vysoký komfort bydlení. V obci Lipí se nachází obecní úřad, mateřská školka, pohostinství, zastávka linkového autobusu). Krajské město České Budějovice s veškerou občanskou vybaveností je vzdáleno 11 km. Další dotazy Vám rádi zodpovíme v naší kanceláři. Doporučujeme osobní prohlídku.
★ Operace: Prodej
★ Typ nemovitosti: Pozemek
★ Okres: České Budějovice
★ Adresa: Lipí, Lipí
★ Plocha vlastního pozemku: 1053 m2
★ Dostupnost: Příměstská doprava, Silnice
★ Operace: Prodej
★ Typ nemovitosti: Pozemek
★ Okres: České Budějovice
★ Adresa: Lipí, Lipí
★ Plocha vlastního pozemku: 1053 m2
★ Dostupnost: Příměstská doprava, Silnice
|
| |||||||||||||||||||||||||||||||
Kontaktovat inzerenta emailem
Kontaktovat emailem může pouze ověřený uživatel.
Ověření je zdarma.
Vaše telefonní číslo *
Kontaktovat emailem může pouze ověřený uživatel.
Ověření je zdarma.
Vaše telefonní číslo *









