Pronájem rodinného domu 220 m², pozemek 883 m² Cheznovice
- [24.10. 2025]Smazat/ Upravit/ Topovat






























Nabízíme k pronájmu rodinný dům v Cheznovicích, okr. Rokycany. Tato nabídky je určena pro stabilního nájemce s garancí spolehlivosti a kladných referencí z předchozího bydlení.
Dům je primárně určený k bydlení, lze ho využít také jako sídlo firmy, kanceláře apod.
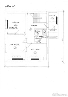
Jedná se o samostatně stojící dvoupodlažní dům po celkové nákladné rekonstrukci. Dům má dva byty o velikosti 2+1. V bytě ve druhém nadzemním podlaží není instalovaná kuchyňská linka, proto nabízíme k pronájmu oba byty jako jeden byt o velikosti 5+1.
Nachází se v klidné části obce mezi dalšími samostatně stojícími rodinnými domy. Byl postaven v roce 1975, rekonstrukce proběhla v roce 2025.
Obě patra co do místností jsou totožná (mimo kuchyňskou linku ve 2. nadzemním podlaží):
- kuchyně v prvním nadzemí 4,1 x 3,5 m (ve druhém nadzemí bez kuchyňské linky)
- obývací pokoj 4,1 x 5,5 m
- ložnice 4,4 x 4,2 m
- koupelna 2,4 x 1,5 m (v jedné koupelně je vana, ve druhé sprcha)
- ve druhém nadzemním podlaží je balkon 6 x 2 m.
V obývacím pokoji a ložnici jsou plovoucí podlahy, v kuchyni a dalších částech domu vinylová krytina.
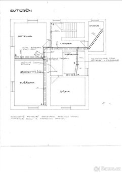
K dispozici je garáž – 4,1 x 4,5 m, výška vjezdových vrat jsou 2 m. Na garáž navazuje dílna a kurník pro slepice.
Dům je podsklepený, nachází se zde kotel na dřevo s příslušenstvím, bojler na teplou vodu prádelna a skladové prostory.
Vytápění domu je pomocí kotle na dřevo, který ohřívá vodu ve akumulačních nádržích o objemu 750 litrů. Teplá voda je rozváděná do radiátorů v celém domě.
Ohřev vody pro hygienu a do kuchyně je bojlerem.
Dům je napojen na elektřinu (230 a 400 V), obecní vodovod a kanalizaci. Plyn v Cheznovicích není.
Cheznovice se nachází v krajině, kterou tvoří pole, louky, vodní plochy, ale hluboké lesy v těsném sousedství pohoří Brdy. Tato lokalita je cílem turistů, kteří přijíždějí za krásami zachovalé přírody, za houbařením a relaxací. Pokud hledáte klidné místo s krásnou přírodou, může být cílem bydlení v Cheznovicích.
V Cheznovicích je základní občanská vybavenost – obecní úřad, pošta, mateřská školka, základní škola, prodejna potravin. Obec žije bohatým společenským životem.
nájezd na dálnici D5 v Mýtě 4 minuty, Praha - metro Zličín - 38 minut, Plzeň, Tesco Rokycanská - 20 minut, Rokycany -
15.vminut.
P l a t b y:
1. měsíc:
- nájemné 35.000,- Kč/měsíc.
- vratná kauce = 3 měsíční nájmy, tj. 105.000,- Kč.
- provize realitní kanceláře je 1 měsíční nájem, tj. 35.000,- Kč.
- náklady na energie (voda a elektřina) jsou podle spotřeby nájemníků.
Celkem: 175.000,- Kč + platba za energie.
2. měsíc a další:
- nájemné 35.000,- Kč/měsíc.
- náklady na energie (voda a elektřina) podle spotřeby nájemníků.
Sjednejte si termín prohlídky.
Dům je primárně určený k bydlení, lze ho využít také jako sídlo firmy, kanceláře apod.
Jedná se o samostatně stojící dvoupodlažní dům po celkové nákladné rekonstrukci. Dům má dva byty o velikosti 2+1. V bytě ve druhém nadzemním podlaží není instalovaná kuchyňská linka, proto nabízíme k pronájmu oba byty jako jeden byt o velikosti 5+1.
Nachází se v klidné části obce mezi dalšími samostatně stojícími rodinnými domy. Byl postaven v roce 1975, rekonstrukce proběhla v roce 2025.
Obě patra co do místností jsou totožná (mimo kuchyňskou linku ve 2. nadzemním podlaží):
- kuchyně v prvním nadzemí 4,1 x 3,5 m (ve druhém nadzemí bez kuchyňské linky)
- obývací pokoj 4,1 x 5,5 m
- ložnice 4,4 x 4,2 m
- koupelna 2,4 x 1,5 m (v jedné koupelně je vana, ve druhé sprcha)
- ve druhém nadzemním podlaží je balkon 6 x 2 m.
V obývacím pokoji a ložnici jsou plovoucí podlahy, v kuchyni a dalších částech domu vinylová krytina.
K dispozici je garáž – 4,1 x 4,5 m, výška vjezdových vrat jsou 2 m. Na garáž navazuje dílna a kurník pro slepice.
Dům je podsklepený, nachází se zde kotel na dřevo s příslušenstvím, bojler na teplou vodu prádelna a skladové prostory.
Vytápění domu je pomocí kotle na dřevo, který ohřívá vodu ve akumulačních nádržích o objemu 750 litrů. Teplá voda je rozváděná do radiátorů v celém domě.
Ohřev vody pro hygienu a do kuchyně je bojlerem.
Dům je napojen na elektřinu (230 a 400 V), obecní vodovod a kanalizaci. Plyn v Cheznovicích není.
Cheznovice se nachází v krajině, kterou tvoří pole, louky, vodní plochy, ale hluboké lesy v těsném sousedství pohoří Brdy. Tato lokalita je cílem turistů, kteří přijíždějí za krásami zachovalé přírody, za houbařením a relaxací. Pokud hledáte klidné místo s krásnou přírodou, může být cílem bydlení v Cheznovicích.
V Cheznovicích je základní občanská vybavenost – obecní úřad, pošta, mateřská školka, základní škola, prodejna potravin. Obec žije bohatým společenským životem.
nájezd na dálnici D5 v Mýtě 4 minuty, Praha - metro Zličín - 38 minut, Plzeň, Tesco Rokycanská - 20 minut, Rokycany -
15.vminut.
P l a t b y:
1. měsíc:
- nájemné 35.000,- Kč/měsíc.
- vratná kauce = 3 měsíční nájmy, tj. 105.000,- Kč.
- provize realitní kanceláře je 1 měsíční nájem, tj. 35.000,- Kč.
- náklady na energie (voda a elektřina) jsou podle spotřeby nájemníků.
Celkem: 175.000,- Kč + platba za energie.
2. měsíc a další:
- nájemné 35.000,- Kč/měsíc.
- náklady na energie (voda a elektřina) podle spotřeby nájemníků.
Sjednejte si termín prohlídky.
|
| |||||||||||||||||||||||||||||||
Kontaktovat inzerenta emailem
Kontaktovat emailem může pouze ověřený uživatel.
Ověření je zdarma.
Vaše telefonní číslo *
Kontaktovat emailem může pouze ověřený uživatel.
Ověření je zdarma.
Vaše telefonní číslo *









