Prodej byt 2+1 s balkónem, 50,5m², Děcín - Kamenická
- [26.10. 2025]Smazat/ Upravit/ Topovat


























PRODÁNO
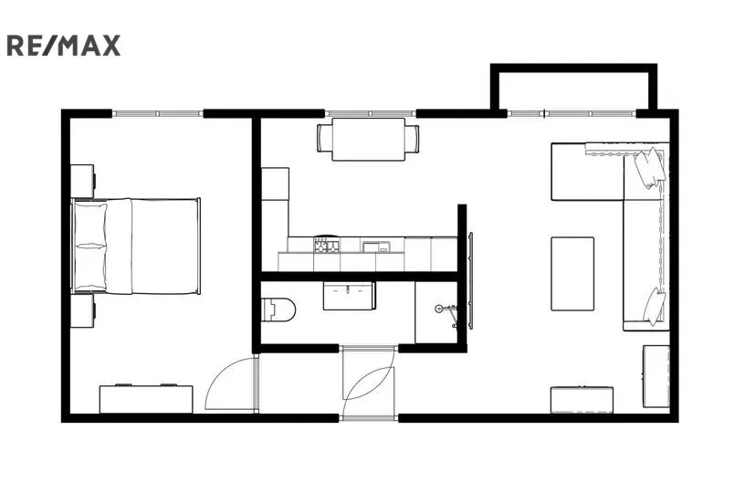
Nabízím k prodeji byt 2+1 o velikosti 50,5 m² v osobním vlastnictví, umístěný ve 4. patře (5. NP) panelového domu na adrese Kamenická 304/88, Děčín. Byt prošel před pěti lety kompletní rekonstrukcí, má zděné jádro a upravenou dispozici, která poskytuje pohodlné a praktické bydlení. Součástí je balkón s příjemným výhledem – ideální pro ranní kávu, večerní odpočinek nebo jen posezení na čerstvém vzduchu – a také sklepní kóje, která nabízí dostatek úložného prostoru. Samotný dům je čistý a udržovaný, s klidným prostředím vhodným jak pro rodiny, tak i jednotlivce či starší osoby. Přibližně před třinácti lety prošel rozsáhlejší revitalizací, je zateplený a vybavený plastovými okny. Vytápění je řešeno dálkově, což v kombinaci s kvalitním zateplením zaručuje nízké provozní náklady a komfortní bydlení po celý rok.
Lokalita patří mezi vyhledávané části Děčína. V docházkové vzdálenosti najdete vše potřebné pro každodenní život – školy, školky, obchody, restaurace, lékárny i nemocnici. Do samotného centra města se dostanete během několika minut pěší chůze. Dopravní dostupnost je velmi dobrá díky blízkým zastávkám MHD i snadnému napojení na hlavní silniční tahy.
Děčín leží na soutoku Labe a Ploučnice a obklopuje ho nádherná příroda Českého Švýcarska a Labských pískovců. Dominantou je Zámek Děčín, naproti němu se tyčí Pastýřská stěna s vyhlídkou a zoologickou zahradou. Město je také centrem sportu – nabízí aquapark, zimní stadion, cyklostezky i špičkový basketbalový klub. Díky vodáckým a horolezeckým možnostem si zde přijdou na své i milovníci dobrodružství.
Měsíční zálohy pro 2 osoby:
- služby (voda, topení, společné prostory, fond): 3700 Kč
- elektřina: 750 Kč
- plyn (vaření): 350 Kč
V případě zájmu o prohlídku nebo pro další informace mě neváhejte kontaktovat.
Odkaz na inzerát: https://www.remax-pro-vas.cz/reality/prodej-byt-2-1-s-balkonem-50-5m-decin-kamenicka-421534/
Nabízím k prodeji byt 2+1 o velikosti 50,5 m² v osobním vlastnictví, umístěný ve 4. patře (5. NP) panelového domu na adrese Kamenická 304/88, Děčín. Byt prošel před pěti lety kompletní rekonstrukcí, má zděné jádro a upravenou dispozici, která poskytuje pohodlné a praktické bydlení. Součástí je balkón s příjemným výhledem – ideální pro ranní kávu, večerní odpočinek nebo jen posezení na čerstvém vzduchu – a také sklepní kóje, která nabízí dostatek úložného prostoru. Samotný dům je čistý a udržovaný, s klidným prostředím vhodným jak pro rodiny, tak i jednotlivce či starší osoby. Přibližně před třinácti lety prošel rozsáhlejší revitalizací, je zateplený a vybavený plastovými okny. Vytápění je řešeno dálkově, což v kombinaci s kvalitním zateplením zaručuje nízké provozní náklady a komfortní bydlení po celý rok.
Lokalita patří mezi vyhledávané části Děčína. V docházkové vzdálenosti najdete vše potřebné pro každodenní život – školy, školky, obchody, restaurace, lékárny i nemocnici. Do samotného centra města se dostanete během několika minut pěší chůze. Dopravní dostupnost je velmi dobrá díky blízkým zastávkám MHD i snadnému napojení na hlavní silniční tahy.
Děčín leží na soutoku Labe a Ploučnice a obklopuje ho nádherná příroda Českého Švýcarska a Labských pískovců. Dominantou je Zámek Děčín, naproti němu se tyčí Pastýřská stěna s vyhlídkou a zoologickou zahradou. Město je také centrem sportu – nabízí aquapark, zimní stadion, cyklostezky i špičkový basketbalový klub. Díky vodáckým a horolezeckým možnostem si zde přijdou na své i milovníci dobrodružství.
Měsíční zálohy pro 2 osoby:
- služby (voda, topení, společné prostory, fond): 3700 Kč
- elektřina: 750 Kč
- plyn (vaření): 350 Kč
V případě zájmu o prohlídku nebo pro další informace mě neváhejte kontaktovat.
Odkaz na inzerát: https://www.remax-pro-vas.cz/reality/prodej-byt-2-1-s-balkonem-50-5m-decin-kamenicka-421534/
|
| |||||||||||||||||||||||||||||||
Kontaktovat inzerenta emailem
Kontaktovat emailem může pouze ověřený uživatel.
Ověření je zdarma.
Vaše telefonní číslo *
Kontaktovat emailem může pouze ověřený uživatel.
Ověření je zdarma.
Vaše telefonní číslo *





