STAVTE IHNED:BALÍČEK= PARCELA+PROJEKT+ST.POVOLENÍ
- [27.10. 2025]Smazat/ Upravit/ Topovat






Nabízíme luxusní pozemek o rozloze více než 1000 m2 v prestižní lokalitě Prahy-východ, vedle Líbeznic, okraj K.ú.Předboj. Situován v klidné zelené rezidenční části obce, která je ideální pro ty, kteří hledají spojení s přírodou a zároveň výbornou dostupnost do centra Prahy. Pozemek představuje skvělou investiční příležitost díky své rovinaté poloze, velikosti i skvělé orientaci a nabízí potenciál pro realizaci RD luxusní vily.
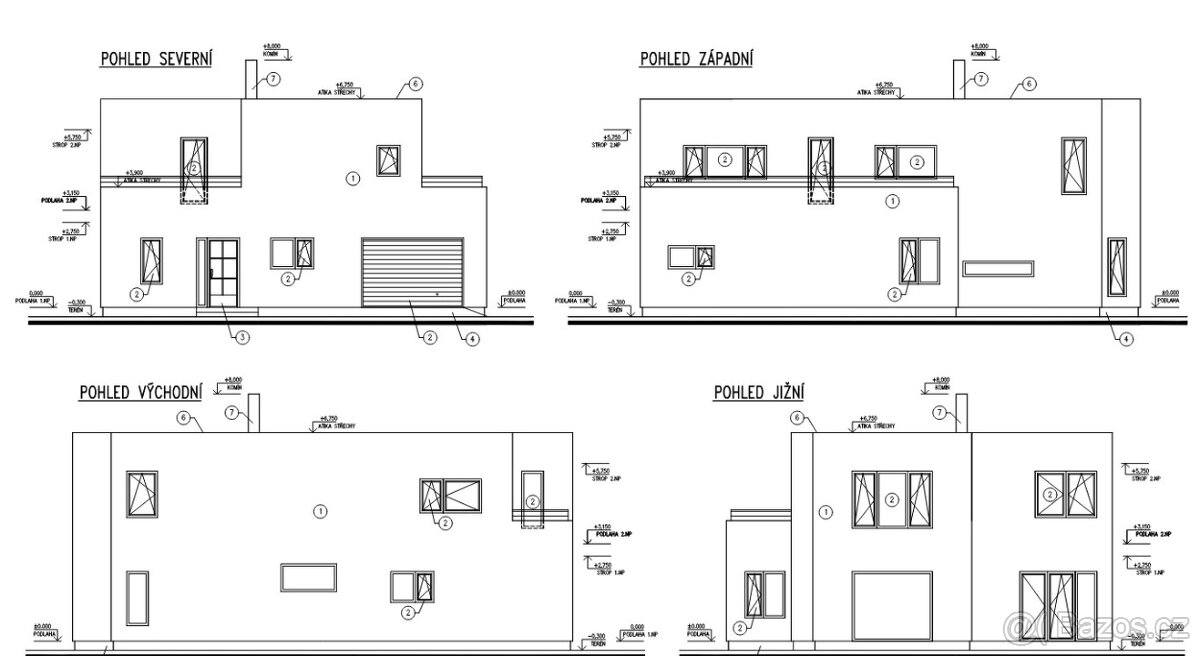
Navíc můžete využít velkorysý projekt Villa Pod Kapličkou domu 6 +..... S PLATNÝM STAVEBNÍM POVOLENÍM (vydané st.úřadem Libeznice)a ušetřit mnoho času, starostí a hned začít stavět.
Stavební firmy mohu doporučit.
Přímý prodej a jednání bez RK.
Navíc můžete využít velkorysý projekt Villa Pod Kapličkou domu 6 +..... S PLATNÝM STAVEBNÍM POVOLENÍM (vydané st.úřadem Libeznice)a ušetřit mnoho času, starostí a hned začít stavět.
Stavební firmy mohu doporučit.
Přímý prodej a jednání bez RK.
|
| |||||||||||||||||||||||||||||||
Kontaktovat inzerenta emailem
Kontaktovat emailem může pouze ověřený uživatel.
Ověření je zdarma.
Vaše telefonní číslo *
Kontaktovat emailem může pouze ověřený uživatel.
Ověření je zdarma.
Vaše telefonní číslo *