Prodej bytu 3+1, Palackého třída, Pardubice, ev.č. 00866
- [27.10. 2025]Smazat/ Upravit/ Topovat











Ev.č. 00866
Ráda bych vám nabídla ke koupi krásný prostorný, slunný byt v centru Pardubic.
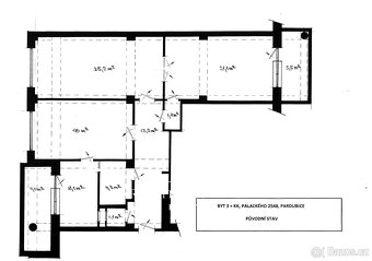
Byt v osobním vlastnictví s dispozicí 3+1 a celkovou plochou 109m2 se nachází v 7.NP zděného, bytového domu s výtahem.
Dům je po kompletní revitalizaci, v rámci které se dělala nová střecha, plastová okna, zateplení, vchodové dveře, bezpečnostní systém v domě a přístupové čipy. V současné době probíha instalace nových elektrických rozvodů a malování společných prostor domu.
K bytu náleží sklep a dvě lodžie. Jedna lodžie o velikosti 10 m2 situovaná na východ, přístupná z kuchyně nabízí dostatek prostoru pro venkovní posezení, kde si můžete vychutnávat ranní kávu, či servírovat snídaně. Druhá lodžie s přístupem z ložnice o velikosti 5m2 je situovaná na západ.
Dispozice:
Z prostorné chodby je vstup na samostatnou toaletu, do koupelny, obývacího pokoje a dvou ložnic. Přístup do kuchyně, vybavenou kuchyňskou linkou je přes průchozí koupelnu, nebo obývací pokoj.
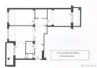
Pro Vaši lepší představu jsme vytvořili půdorysy stávajícího stavu dispozice a půdorys stavu po možné rekonstrukci.
Byt je v původním stavu, což umožňuje jedinečnou příležitost upravit si jej dle svých představ.
Je to skvělá příležitost k vytvoření moderního a komfortního bydlení v atraktivní lokalitě v centru Pardubic.
V případě vašeho zájmu mne neváhejte kontaktovat, ráda vám tuto nemovitost představím osobně.
En. náročnost b.: G - Mimořádně nehospodárná
Ráda bych vám nabídla ke koupi krásný prostorný, slunný byt v centru Pardubic.
Byt v osobním vlastnictví s dispozicí 3+1 a celkovou plochou 109m2 se nachází v 7.NP zděného, bytového domu s výtahem.
Dům je po kompletní revitalizaci, v rámci které se dělala nová střecha, plastová okna, zateplení, vchodové dveře, bezpečnostní systém v domě a přístupové čipy. V současné době probíha instalace nových elektrických rozvodů a malování společných prostor domu.
K bytu náleží sklep a dvě lodžie. Jedna lodžie o velikosti 10 m2 situovaná na východ, přístupná z kuchyně nabízí dostatek prostoru pro venkovní posezení, kde si můžete vychutnávat ranní kávu, či servírovat snídaně. Druhá lodžie s přístupem z ložnice o velikosti 5m2 je situovaná na západ.
Dispozice:
Z prostorné chodby je vstup na samostatnou toaletu, do koupelny, obývacího pokoje a dvou ložnic. Přístup do kuchyně, vybavenou kuchyňskou linkou je přes průchozí koupelnu, nebo obývací pokoj.
Pro Vaši lepší představu jsme vytvořili půdorysy stávajícího stavu dispozice a půdorys stavu po možné rekonstrukci.
Byt je v původním stavu, což umožňuje jedinečnou příležitost upravit si jej dle svých představ.
Je to skvělá příležitost k vytvoření moderního a komfortního bydlení v atraktivní lokalitě v centru Pardubic.
V případě vašeho zájmu mne neváhejte kontaktovat, ráda vám tuto nemovitost představím osobně.
En. náročnost b.: G - Mimořádně nehospodárná
| 
 | 
 | |||||||||||||||||||||||||||||||
Kontaktovat inzerenta emailem
Kontaktovat emailem může pouze ověřený uživatel.
Ověření je zdarma.
Vaše telefonní číslo *
Kontaktovat emailem může pouze ověřený uživatel.
Ověření je zdarma.
Vaše telefonní číslo *
 


