Prodej bytu 3+KK loft 95,1 m², parkovací stání, Švábenice
- [29.10. 2025]Smazat/ Upravit/ Topovat



























V rámci projektu Byty Švábenice si Vám dovoluji představit výjimečné a na danou lokalitu ojedinělé bydlení v nízkoenergetickém cihlovém domě s 5 byty včetně parkovacích míst nedaleko Vyškova.
Ceny již od 60.000 Kč za m²!
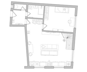
"Byt D" loftového typu je dispozičně řešen jako 3+KK o velikosti 95,1 m² nacházející se v 1. patře domu. K bytu náleží 1 parkovací stání a podíl na společných prostorech domu (dvorek).
Dispozice: zádveří 3,7 m², obytná místnost 36,9 m², galerie s šatnou 33,4 m², pokoj 15,2 m², koupelna 4,2 m², WC 1,7 m²
Standardy bytu, které jsou součástí kupní ceny:
- podlahy - vinyl, keramická dlažba
- sanitární technika - sprchový kout walk-in včetně sprchového setu, umyvadlo včetně baterie, závěsné WC, zrcadlo
- kuchyňská linka na míru včetně ostrůvku + úsporné spotřebiče Bosch (kombinovaná lednice, indukční varná deska, odsavač par, vestavná trouba, vestavná myčka)
- interiérové dveře + obložkové zárubně, posuvné dveře
- kovové schodiště s dřevěnými nášlapy včetně zábradlí v galerii
- podlahové vytápění, v koupelně topné těleso
- osvětlení
- krbová kamna
- klimatizace
Dům bude splňovat energetickou náročnost třídy B - velmi úsporná.
Na střeše domu budou instalovány solární panely, pro úsporu energie. V podzemí bude nainstalovaná akumulační nádrž pro zachycování a využití dešťové vody (splachování). Dům bude napojen na obecní vodovod. Vytápění jednotlivých bytů bude podlahové. Ohřev vody budou zajišťovat el. bojlery. Kanalizace bude prozatím řešena svodem do jímky, která se později napojí na kanalizaci (obec plánuje kanalizaci do 2 let).
Byty 3+KK budou navíc vybaveny krbovými kamny a "loftové" byty budou vybaveny i klimatizací s funkcí chlazení/vytápění.
Předpokládané dokončení projektu: 10/2026
Uvedená cena je konečná (neplatí se provize) a zahrnuje právní služby, parkovací stání a vybavení viz standardy. V případě zájmu je možné byt koupit bez kuchyňské linky a spotřebičů se slevou 140.000 Kč!
Bližší informace jsou uvedeny na stránkách projektu byty-svabenice.
ev.č.: D01 (0004)
třída energetické náročnosti budovy: B - Velmi úsporná
dle vyhlášky č.264/2020 Sb.
vlastnictví: Osobní
druh objektu: Cihlová
stav objektu: Projekt
umístění objektu: Klidná část obce
typ bytu: Loft (otevřený industriální prostor, vysoké stropy)
užitná plocha (m2): 95.1
číslo podlaží v objektu: 2
počet podlaží objektu: 2
Ceny již od 60.000 Kč za m²!
"Byt D" loftového typu je dispozičně řešen jako 3+KK o velikosti 95,1 m² nacházející se v 1. patře domu. K bytu náleží 1 parkovací stání a podíl na společných prostorech domu (dvorek).
Dispozice: zádveří 3,7 m², obytná místnost 36,9 m², galerie s šatnou 33,4 m², pokoj 15,2 m², koupelna 4,2 m², WC 1,7 m²
Standardy bytu, které jsou součástí kupní ceny:
- podlahy - vinyl, keramická dlažba
- sanitární technika - sprchový kout walk-in včetně sprchového setu, umyvadlo včetně baterie, závěsné WC, zrcadlo
- kuchyňská linka na míru včetně ostrůvku + úsporné spotřebiče Bosch (kombinovaná lednice, indukční varná deska, odsavač par, vestavná trouba, vestavná myčka)
- interiérové dveře + obložkové zárubně, posuvné dveře
- kovové schodiště s dřevěnými nášlapy včetně zábradlí v galerii
- podlahové vytápění, v koupelně topné těleso
- osvětlení
- krbová kamna
- klimatizace
Dům bude splňovat energetickou náročnost třídy B - velmi úsporná.
Na střeše domu budou instalovány solární panely, pro úsporu energie. V podzemí bude nainstalovaná akumulační nádrž pro zachycování a využití dešťové vody (splachování). Dům bude napojen na obecní vodovod. Vytápění jednotlivých bytů bude podlahové. Ohřev vody budou zajišťovat el. bojlery. Kanalizace bude prozatím řešena svodem do jímky, která se později napojí na kanalizaci (obec plánuje kanalizaci do 2 let).
Byty 3+KK budou navíc vybaveny krbovými kamny a "loftové" byty budou vybaveny i klimatizací s funkcí chlazení/vytápění.
Předpokládané dokončení projektu: 10/2026
Uvedená cena je konečná (neplatí se provize) a zahrnuje právní služby, parkovací stání a vybavení viz standardy. V případě zájmu je možné byt koupit bez kuchyňské linky a spotřebičů se slevou 140.000 Kč!
Bližší informace jsou uvedeny na stránkách projektu byty-svabenice.
ev.č.: D01 (0004)
třída energetické náročnosti budovy: B - Velmi úsporná
dle vyhlášky č.264/2020 Sb.
vlastnictví: Osobní
druh objektu: Cihlová
stav objektu: Projekt
umístění objektu: Klidná část obce
typ bytu: Loft (otevřený industriální prostor, vysoké stropy)
užitná plocha (m2): 95.1
číslo podlaží v objektu: 2
počet podlaží objektu: 2
|
| |||||||||||||||||||||||||||||||
Kontaktovat inzerenta emailem
Kontaktovat emailem může pouze ověřený uživatel.
Ověření je zdarma.
Vaše telefonní číslo *
Kontaktovat emailem může pouze ověřený uživatel.
Ověření je zdarma.
Vaše telefonní číslo *






