Byt 2+1+kk 60m2, Kopečná Brno, velká lodžie
- [30.10. 2025]Smazat/ Upravit/ Topovat










Dobrý den,
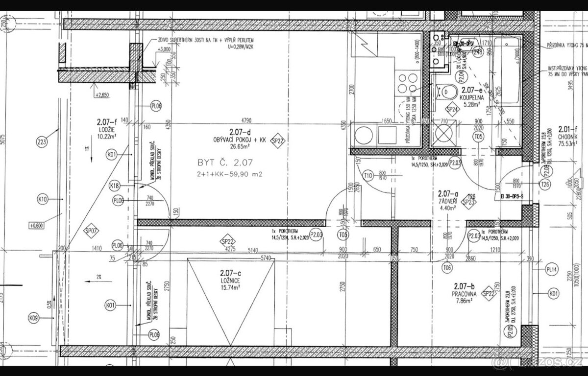
ráda bych nabídla k prodeji svůj byt 2+ kk + pracovna a lodžie.
Nemovitost se nachází v centru Brna, kde je ideální dopravní spojení po celém městě, ale i příroda v krásném parku na Špilberku. Dům je postaven před 15ti lety, vše je tedy prakticky dnešní standard bez nutnosti jakýchkoliv úprav.
Dispozice bytu: vstupní chodba, pracovna (která může být i menší pokoj), koupelna, WC, Obývací pokoj s kuchyňským koutem a lodžií, ložnice.
Po domluvě není problém osobní prohlídky
Nemám zájem o RK, proto uvádím neplatný telefon. Prosím o kontakt na email: mar.mam@seznam.cz reaguji rychle. Děkuji za pochopení
ráda bych nabídla k prodeji svůj byt 2+ kk + pracovna a lodžie.
Nemovitost se nachází v centru Brna, kde je ideální dopravní spojení po celém městě, ale i příroda v krásném parku na Špilberku. Dům je postaven před 15ti lety, vše je tedy prakticky dnešní standard bez nutnosti jakýchkoliv úprav.
Dispozice bytu: vstupní chodba, pracovna (která může být i menší pokoj), koupelna, WC, Obývací pokoj s kuchyňským koutem a lodžií, ložnice.
Po domluvě není problém osobní prohlídky
Nemám zájem o RK, proto uvádím neplatný telefon. Prosím o kontakt na email: mar.mam@seznam.cz reaguji rychle. Děkuji za pochopení
|
| |||||||||||||||||||||||||||||||
Kontaktovat inzerenta emailem
Kontaktovat emailem může pouze ověřený uživatel.
Ověření je zdarma.
Vaše telefonní číslo *
Kontaktovat emailem může pouze ověřený uživatel.
Ověření je zdarma.
Vaše telefonní číslo *