Prodej rodinného domu 6+1 , Uherské Hradiště - Jarošov, 528
- [31.10. 2025]Smazat/ Upravit/ Topovat






























Nabízíme k prodeji samostatně stojící rodinný dům s celkovou plochou 528 m² v klidné části Jarošova, městské části Uherského Hradiště. Dům se nachází ve slepé ulici, což zajišťuje naprostý klid, soukromí a minimální provoz vozidel – ideální pro rodiny s dětmi i vícegenerační bydlení nebo i k podníkaní.
Dům byl zkolaudován v roce 1993 a v roce 2010 prošel celkovou rekonstrukcí.Je postaven z kvalitních materiálů a je celkově zateplen. Díky dispozičnímu řešení jej lze využít i jako dvougenerační – v každém patře je příprava pro kuchyňskou část včetně odpadů a v domě jsou instalovány odpočtové elektroměry pro oddělené měření spotřeby.
Dispozice a vybavení:
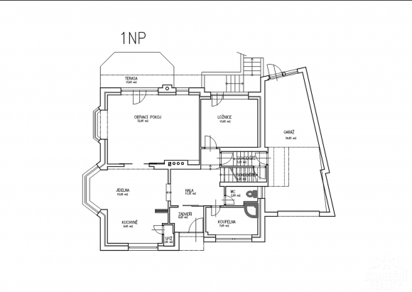
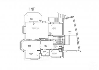
V přízemí se nachází :
-Vstupní chodba se zádveřím
-Prostorná hala s přístupem do všech místností
-Samostatná toaleta a koupelna
-Velký obývací prostor s kuchyňským koutem a jídelnou
-Ložnice
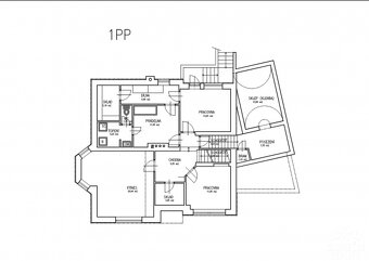
V patře najdete 4+KK:
-Dva dětské pokoje (pracovna)
-Ložnici
-Koupelnu s toaletou
-Přípravu pro kuchyňský kout,jídelny včetně obývací části
Exteriér a parkování:
K domu náleží zahrada vhodná pro odpočinek i rodinné aktivity. Parkování je možné jak v garáži, tak přímo u domu. Do garáže se vejdou dvě auta a další dvě parkovací stání jsou k dispozici venku na pozemku.
Lokalita:
Jarošov je klidná a vyhledávaná část Uherského Hradiště. V okolí se nachází škola, školka, dětské hřiště, cyklostezka i zastávka MHD. Do centra města, které nabízí kompletní občanskou vybavenost, se dostanete během několika minut.
Neváhejte a domluvte si prohlídku!
Tento dům vám poskytne pohodlné, klidné bydlení s možností dvougeneračního využití a okamžitého nastěhování.
Rádi Vám pomůžeme i s vyřízením financování na míru. Prohlídky možné po předchozí domluvě.
Dům byl zkolaudován v roce 1993 a v roce 2010 prošel celkovou rekonstrukcí.Je postaven z kvalitních materiálů a je celkově zateplen. Díky dispozičnímu řešení jej lze využít i jako dvougenerační – v každém patře je příprava pro kuchyňskou část včetně odpadů a v domě jsou instalovány odpočtové elektroměry pro oddělené měření spotřeby.
Dispozice a vybavení:
V přízemí se nachází :
-Vstupní chodba se zádveřím
-Prostorná hala s přístupem do všech místností
-Samostatná toaleta a koupelna
-Velký obývací prostor s kuchyňským koutem a jídelnou
-Ložnice
V patře najdete 4+KK:
-Dva dětské pokoje (pracovna)
-Ložnici
-Koupelnu s toaletou
-Přípravu pro kuchyňský kout,jídelny včetně obývací části
Exteriér a parkování:
K domu náleží zahrada vhodná pro odpočinek i rodinné aktivity. Parkování je možné jak v garáži, tak přímo u domu. Do garáže se vejdou dvě auta a další dvě parkovací stání jsou k dispozici venku na pozemku.
Lokalita:
Jarošov je klidná a vyhledávaná část Uherského Hradiště. V okolí se nachází škola, školka, dětské hřiště, cyklostezka i zastávka MHD. Do centra města, které nabízí kompletní občanskou vybavenost, se dostanete během několika minut.
Neváhejte a domluvte si prohlídku!
Tento dům vám poskytne pohodlné, klidné bydlení s možností dvougeneračního využití a okamžitého nastěhování.
Rádi Vám pomůžeme i s vyřízením financování na míru. Prohlídky možné po předchozí domluvě.
|
| |||||||||||||||||||||||||||||||
Kontaktovat inzerenta emailem
Kontaktovat emailem může pouze ověřený uživatel.
Ověření je zdarma.
Vaše telefonní číslo *
Kontaktovat emailem může pouze ověřený uživatel.
Ověření je zdarma.
Vaše telefonní číslo *









