Pronájem kanceláří v moderní budově s parkováním, Liberec II
- [3.11. 2025]Smazat/ Upravit/ Topovat


























Dovolujeme si Vám nabídnout pronájem moderních kancelářských prostor včetně parkovacích míst v prestižní administrativní budově společnosti DTZ s.r.o., která se nachází v širším centru města Liberce - v městské části Nové Město.
Administrativní budova byla kolaudována na konci roku 2023 a je vhodná pro malé a střední firmy, které hledají profesionální a komfortní prostředí pro své podnikání.
Budova využívá moderní technická řešení, která zajišťuje efektivitu pro všechny zájemce, šetrnost k životnímu prostředí a zároveň úsporu energií. K topení/chlazení využívá tepelná čerpadla. Integrovaná vzduchotechnika zajišťuje optimální cirkulaci vzduchu a příjemné klima v interiéru. Pro maximální pohodlí a ochranu proti slunečnímu záření jsou na budově instalovány venkovní automatické žaluzie, což zvyšuje celkovou energetickou účinnost.
V lobby nabízíme služby recepce a stylového bistra s nabídkou poledního menu a jiného kvalitního občerstvení. Parkování a přístup do budovy je možný 24/7.
Tato lokalita poskytuje snadnou veřejnou dostupnost a blízkost důležitých služeb.
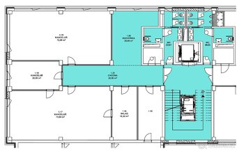
K pronájmu nabízíme jednotlivé kancelářské prostory v prvním a druhém podlaží budovy o celkové výměře 945 m2 rozdělené na jednotlivé kanceláře podle přiložených půdorysů.
Prostory se momentálně připravují – probíhá instalace dělících příček a dalšího technické vybavení. Dokončení je plánované na konec listopadu 2025.
Kanceláře se pronajímají bez vybavení kancelářským nábytkem.
Ve 2.NP nabízíme kanceláře:
Místnost č. 2.25 s balkonem směrem do ul. Chrastavská, s výměrou 13,32m2
Cena nájmu včetně poplatků 9.724 Kč + zálohy za energie 779 Kč/měsíc
Místnost č. 2.26, 2.24 s výměrou 35,95 m2 s výstupem na balkón směrem do ul. Chrastavská
Cena nájmu včetně poplatků 16.897 Kč + zálohy za energie 2.103 Kč/měsíc
Místnost č. 2.27, 2.28, 2.23, 2.22, 2.21, 2.20 s výměrou 17,84 (18,19 m2)
Cena nájmu včetně poplatků 10.526 Kč + zálohy za energie 1.047 Kč/měsíc
V 1.NP vlevo nabízíme kancelář o výměře 72,49 m2 s výhledem do ul. Chrastavská.
Cena nájmu vč. poplatků 27.329 Kč + zálohy za energie 4.241 Kč/měsíc.
V tomto podlaží vpravo jsou k dispozici další tři kanceláře s výměrou 37,26 m2, 29,37m2 a kancelář s výměrou 128,80 m2 se samostatným vstupem z areálu z ul. U Věže.
Cena nájmu kanceláře s poplatky kanceláře 37,26 m2 - 17.065 Kč + zálohy za energie 2.180 Kč/měsíc
Cena nájmu kanceláře s poplatky 29,37 m2 - 13.451Kč + zálohy za energie 1.718 Kč/měsíc
Cena nájmu kanceláře s poplatky 128,80 m2 - 48.686 Kč + zálohy za energie 7.535 Kč/měsíc
V každé polovině patra se nachází sociální zázemí, které se sdílí společně s ostatními nájemci.
Cena nájmu, poplatků za služby a záloh za energie je stanovena pro každou jednotlivou místnost a zahrnuje cenu za nájem a poplatky vzájemně sdílených prostor. Kanceláře lze vybrat podle potřeb uživatele a vzájemně kombinovat.
Cena parkování v uzavřeném areálu
Administrativní budova byla kolaudována na konci roku 2023 a je vhodná pro malé a střední firmy, které hledají profesionální a komfortní prostředí pro své podnikání.
Budova využívá moderní technická řešení, která zajišťuje efektivitu pro všechny zájemce, šetrnost k životnímu prostředí a zároveň úsporu energií. K topení/chlazení využívá tepelná čerpadla. Integrovaná vzduchotechnika zajišťuje optimální cirkulaci vzduchu a příjemné klima v interiéru. Pro maximální pohodlí a ochranu proti slunečnímu záření jsou na budově instalovány venkovní automatické žaluzie, což zvyšuje celkovou energetickou účinnost.
V lobby nabízíme služby recepce a stylového bistra s nabídkou poledního menu a jiného kvalitního občerstvení. Parkování a přístup do budovy je možný 24/7.
Tato lokalita poskytuje snadnou veřejnou dostupnost a blízkost důležitých služeb.
K pronájmu nabízíme jednotlivé kancelářské prostory v prvním a druhém podlaží budovy o celkové výměře 945 m2 rozdělené na jednotlivé kanceláře podle přiložených půdorysů.
Prostory se momentálně připravují – probíhá instalace dělících příček a dalšího technické vybavení. Dokončení je plánované na konec listopadu 2025.
Kanceláře se pronajímají bez vybavení kancelářským nábytkem.
Ve 2.NP nabízíme kanceláře:
Místnost č. 2.25 s balkonem směrem do ul. Chrastavská, s výměrou 13,32m2
Cena nájmu včetně poplatků 9.724 Kč + zálohy za energie 779 Kč/měsíc
Místnost č. 2.26, 2.24 s výměrou 35,95 m2 s výstupem na balkón směrem do ul. Chrastavská
Cena nájmu včetně poplatků 16.897 Kč + zálohy za energie 2.103 Kč/měsíc
Místnost č. 2.27, 2.28, 2.23, 2.22, 2.21, 2.20 s výměrou 17,84 (18,19 m2)
Cena nájmu včetně poplatků 10.526 Kč + zálohy za energie 1.047 Kč/měsíc
V 1.NP vlevo nabízíme kancelář o výměře 72,49 m2 s výhledem do ul. Chrastavská.
Cena nájmu vč. poplatků 27.329 Kč + zálohy za energie 4.241 Kč/měsíc.
V tomto podlaží vpravo jsou k dispozici další tři kanceláře s výměrou 37,26 m2, 29,37m2 a kancelář s výměrou 128,80 m2 se samostatným vstupem z areálu z ul. U Věže.
Cena nájmu kanceláře s poplatky kanceláře 37,26 m2 - 17.065 Kč + zálohy za energie 2.180 Kč/měsíc
Cena nájmu kanceláře s poplatky 29,37 m2 - 13.451Kč + zálohy za energie 1.718 Kč/měsíc
Cena nájmu kanceláře s poplatky 128,80 m2 - 48.686 Kč + zálohy za energie 7.535 Kč/měsíc
V každé polovině patra se nachází sociální zázemí, které se sdílí společně s ostatními nájemci.
Cena nájmu, poplatků za služby a záloh za energie je stanovena pro každou jednotlivou místnost a zahrnuje cenu za nájem a poplatky vzájemně sdílených prostor. Kanceláře lze vybrat podle potřeb uživatele a vzájemně kombinovat.
Cena parkování v uzavřeném areálu
|
| |||||||||||||||||||||||||||||||
Kontaktovat inzerenta emailem
Kontaktovat emailem může pouze ověřený uživatel.
Ověření je zdarma.
Vaše telefonní číslo *
Kontaktovat emailem může pouze ověřený uživatel.
Ověření je zdarma.
Vaše telefonní číslo *
Podobné inzeráty
Kancelář 26 m2 v moderní administrativní budově s parkováním - [16.9. 2025]V areálu DTZ PARK nabízíme k pronájmu nově zrekonstruované kancelářské prostory společně s volnými parkovacími místy.
Zrekonstruovaná kancelář o výměře 26,3 m² bude přístupná od 1.11.2025.
Momentálně celý prostor prochází celkovou rekonstrukcí (pod ...
8 000 Kč
Liberec
460 02
460 02
192 x
Označit špatný inzerát Chybnou kategorii Ohodnotit uživatele Smazat/Upravit/Topovat





