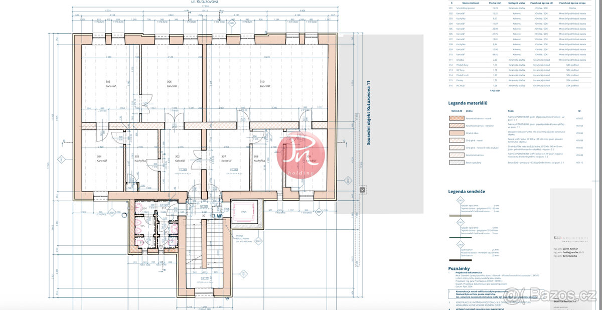
Reprezentativní kancelářské patro – 161,23 m², Kutuzovova |
- [3.11. 2025]Smazat/ Upravit/ Topovat
























Nabízíme k pronájmu celé 3. nadzemní podlaží kancelářské budovy na ulici Kutuzovova – ideální řešení pro firmy, které chtějí stabilní a dlouhodobé sídlo s výbornou dopravní dostupností.
Co prostor nabízí:
Celková plocha: 161,23 m²
Celé patro jen pro vás – maximální soukromí a klid
Velká zasedací místnost ideální pro porady, prezentace či setkání s klienty
Kuchyňka 2x, WC na chodbě
Přístup k výtahu – komfortní vstup pro zaměstnance i klienty
Cena nájmu: 220 Kč/m² + DPH
Kauce: 2 měsíční nájmy včetně služeb + DPH
Provize RK: 1 měsíční nájem včetně služeb
Elektřina se přepisuje na nájemce, plyn zůstává na majitele a vytápění se rozpočítává
Možnost přikoupit parkovací místo za 1 250 Kč/měsíc + DPH
Smlouva rovnou na neurčito, s 3 měsíční výpovědní lhůtou
Každoroční navyšování nájemného pouze inflační doložkou
Služby 6 950 Kč + DPH 21 % = 8 409,50 Kč
Výhody budovy:
Objekt je nově střežen moderním kamerovým systémem napojeným na bezpečnostní službu, která zajišťuje maximální bezpečnost nájemců i majetku.
V prvním kvartálu roku 2026 budou navíc realizovány bezpečnostní schránky, které lze využít pro uskladnění cenností, důležitých dokumentů nebo jako prostor pro archivaci.
Parkování uvnitř uzavřeného areálu
Možnost umístění loga a názvu společnosti na budově
Perfektní dopravní dostupnost – auto i MHD
Výtah přímo do kancelářského patra – komfortní přístup
Tento prostor je ideální pro firmu, která chce mít celé patro jen pro sebe, hledá dlouhodobou stabilitu, reprezentativní zázemí a profesionální prostředí.
Zavolejte ještě dnes a domluvte si prohlídku! Takové prostory se uvolňují jen zřídka.
ev.č.: 0196
cena u makléře
třída energetické náročnosti budovy: G - Mimořádně nehospodárná
dle vyhlášky č.264/2020 Sb.
druh objektu: Cihlová
stav objektu: Velmi dobrý
typ domu: Patrový
plocha kanceláří (m2): 161.23
číslo podlaží v objektu: 3
počet podlaží objektu: 3
Co prostor nabízí:
Celková plocha: 161,23 m²
Celé patro jen pro vás – maximální soukromí a klid
Velká zasedací místnost ideální pro porady, prezentace či setkání s klienty
Kuchyňka 2x, WC na chodbě
Přístup k výtahu – komfortní vstup pro zaměstnance i klienty
Cena nájmu: 220 Kč/m² + DPH
Kauce: 2 měsíční nájmy včetně služeb + DPH
Provize RK: 1 měsíční nájem včetně služeb
Elektřina se přepisuje na nájemce, plyn zůstává na majitele a vytápění se rozpočítává
Možnost přikoupit parkovací místo za 1 250 Kč/měsíc + DPH
Smlouva rovnou na neurčito, s 3 měsíční výpovědní lhůtou
Každoroční navyšování nájemného pouze inflační doložkou
Služby 6 950 Kč + DPH 21 % = 8 409,50 Kč
Výhody budovy:
Objekt je nově střežen moderním kamerovým systémem napojeným na bezpečnostní službu, která zajišťuje maximální bezpečnost nájemců i majetku.
V prvním kvartálu roku 2026 budou navíc realizovány bezpečnostní schránky, které lze využít pro uskladnění cenností, důležitých dokumentů nebo jako prostor pro archivaci.
Parkování uvnitř uzavřeného areálu
Možnost umístění loga a názvu společnosti na budově
Perfektní dopravní dostupnost – auto i MHD
Výtah přímo do kancelářského patra – komfortní přístup
Tento prostor je ideální pro firmu, která chce mít celé patro jen pro sebe, hledá dlouhodobou stabilitu, reprezentativní zázemí a profesionální prostředí.
Zavolejte ještě dnes a domluvte si prohlídku! Takové prostory se uvolňují jen zřídka.
ev.č.: 0196
cena u makléře
třída energetické náročnosti budovy: G - Mimořádně nehospodárná
dle vyhlášky č.264/2020 Sb.
druh objektu: Cihlová
stav objektu: Velmi dobrý
typ domu: Patrový
plocha kanceláří (m2): 161.23
číslo podlaží v objektu: 3
počet podlaží objektu: 3
|
| |||||||||||||||||||||||||||||||
Kontaktovat inzerenta emailem
Kontaktovat emailem může pouze ověřený uživatel.
Ověření je zdarma.
Vaše telefonní číslo *
Kontaktovat emailem může pouze ověřený uživatel.
Ověření je zdarma.
Vaše telefonní číslo *



