RD 4+kk v obci Horní Domaslavice
- [4.11. 2025]Smazat/ Upravit/ Topovat
















Nabídka k pořízení moderní dřevostavby ve fázi projektu s výstavbou na klíč od renomované společnosti ILO DOMY.
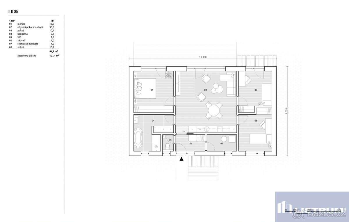
Jednopodlažní dům s podlahovou plochou 85 m2 a zastavěnou plochou 107 m2 nabízí komfortní dispozici 4+kk, která je ideální pro rodinné bydlení.
Dům bude postaven na prostorném a velmi pěkném pozemku s výhledem do širokého okolí o velikosti 1.500 m2 v obci Horní Domaslavice. Moderní dřevostavba je navržena s důrazem na kvalitu, energetickou úspornost a ekologii. Vytápění domu je zajištěno efektivním tepelným čerpadlem, což zaručuje nízké provozní náklady a šetrnost k životnímu prostředí. Součástí domu je také čistička odpadních vod. Sjezd na pozemek je zajištěn z obecní asfaltové komunikace.
Dispozice domu zahrnuje prostorný obývací pokoj s kuchyňským koutem (31 m2), tři samostatné ložnice (13,5 m2, 10,9 m2, 10,4 m2), prostornou koupelnu s moderním vybavením (9,8 m2), samostatné WC, technickou místnost (4 m2)a zádveří. Dům je možné pořídit ve dvou barevných variantách, podle Vašich preferencí.
Z obývacího pokoje a dvou ložnic, které jsou situovány do zahrady, je vstup na zahradu nebo na terasu. Z Těchto pokojů je také krásný výhled do širokého okolí a na Žermanickou přehradu.
Exteriér domu kombinuje klasickou a strukturovanou omítku, přičemž čelo domu je obloženo dřevem.
V ceně je obsažen pozemek, základová deska a dům s finálními povrchy v interiéru. V ceně nejsou započítány terénní úpravy pozemku, napojení na inženýrské sítě, čistička odpadních vod a kuchyňská linka.
Dům je také možno pořídit i tzv. K dokončení, kdy oproti standardní variantě není dodáno tepelné čerpadlo, výmalba, obklady, dlažba, sanita a interiérové dveře. V této variantě stojí dům 5.970.000,-Kč.
K dispozici je také větší varianta domu s podlahovou plochou 92 m2 a zastavěnou plochou 117 m2, u kterého je cena K dokončení 6.440.000,-Kč a cena konečná 7.040.000,-Kč.
Obec Horní Domaslavice je klidná a velmi pěkná lokalita v blízkosti Žermanické přehrady a s výhledem na ni, stejně tak i na panorama Beskyd, která nabízí příjemné bydlení v blízkosti přírody, ale současně s vynikající dostupností do Ostravy, F-M, Havířova a na dálnici D48 (5 km).
V blízkém okolí najdete základní občanskou vybavenost, jako jsou obchody, školka, škola, sportovní zařízení. Okolí obce je ideální pro milovníky přírody a aktivního odpočinku, s množstvím turistických a cyklistických tras.
Tento projekt je ideální volbou pro ty, kteří hledají moderní a ekologické bydlení v klidné lokalitě s rychlým přístupem do města. Neváhejte nás kontaktovat pro více informací a sjednání prohlídky.
Třída energetické náročnosti: B - velmi úsporná (dle vyhláška č. 264/2020 Sb.) Cena: 6 510 000 Kč
Jednopodlažní dům s podlahovou plochou 85 m2 a zastavěnou plochou 107 m2 nabízí komfortní dispozici 4+kk, která je ideální pro rodinné bydlení.
Dům bude postaven na prostorném a velmi pěkném pozemku s výhledem do širokého okolí o velikosti 1.500 m2 v obci Horní Domaslavice. Moderní dřevostavba je navržena s důrazem na kvalitu, energetickou úspornost a ekologii. Vytápění domu je zajištěno efektivním tepelným čerpadlem, což zaručuje nízké provozní náklady a šetrnost k životnímu prostředí. Součástí domu je také čistička odpadních vod. Sjezd na pozemek je zajištěn z obecní asfaltové komunikace.
Dispozice domu zahrnuje prostorný obývací pokoj s kuchyňským koutem (31 m2), tři samostatné ložnice (13,5 m2, 10,9 m2, 10,4 m2), prostornou koupelnu s moderním vybavením (9,8 m2), samostatné WC, technickou místnost (4 m2)a zádveří. Dům je možné pořídit ve dvou barevných variantách, podle Vašich preferencí.
Z obývacího pokoje a dvou ložnic, které jsou situovány do zahrady, je vstup na zahradu nebo na terasu. Z Těchto pokojů je také krásný výhled do širokého okolí a na Žermanickou přehradu.
Exteriér domu kombinuje klasickou a strukturovanou omítku, přičemž čelo domu je obloženo dřevem.
V ceně je obsažen pozemek, základová deska a dům s finálními povrchy v interiéru. V ceně nejsou započítány terénní úpravy pozemku, napojení na inženýrské sítě, čistička odpadních vod a kuchyňská linka.
Dům je také možno pořídit i tzv. K dokončení, kdy oproti standardní variantě není dodáno tepelné čerpadlo, výmalba, obklady, dlažba, sanita a interiérové dveře. V této variantě stojí dům 5.970.000,-Kč.
K dispozici je také větší varianta domu s podlahovou plochou 92 m2 a zastavěnou plochou 117 m2, u kterého je cena K dokončení 6.440.000,-Kč a cena konečná 7.040.000,-Kč.
Obec Horní Domaslavice je klidná a velmi pěkná lokalita v blízkosti Žermanické přehrady a s výhledem na ni, stejně tak i na panorama Beskyd, která nabízí příjemné bydlení v blízkosti přírody, ale současně s vynikající dostupností do Ostravy, F-M, Havířova a na dálnici D48 (5 km).
V blízkém okolí najdete základní občanskou vybavenost, jako jsou obchody, školka, škola, sportovní zařízení. Okolí obce je ideální pro milovníky přírody a aktivního odpočinku, s množstvím turistických a cyklistických tras.
Tento projekt je ideální volbou pro ty, kteří hledají moderní a ekologické bydlení v klidné lokalitě s rychlým přístupem do města. Neváhejte nás kontaktovat pro více informací a sjednání prohlídky.
Třída energetické náročnosti: B - velmi úsporná (dle vyhláška č. 264/2020 Sb.) Cena: 6 510 000 Kč
|
| |||||||||||||||||||||||||||||||
Kontaktovat inzerenta emailem
Kontaktovat emailem může pouze ověřený uživatel.
Ověření je zdarma.
Vaše telefonní číslo *
Kontaktovat emailem může pouze ověřený uživatel.
Ověření je zdarma.
Vaše telefonní číslo *