RD 5+kk v obci Horní Domaslavice
- [4.11. 2025]Smazat/ Upravit/ Topovat


















Nabídka k pořízení moderní dřevostavby ve fázi projektu s výstavbou na klíč od renomované společnosti ILO DOMY.
Dvojpodlažní dům s podlahovou plochou 155 m2 a zastavěnou plochou 109 m2 nabízí komfortní dispozici 5+kk, která je ideální pro rodinné bydlení.
Dům bude postaven na prostorném a velmi pěkném pozemku s výhledem do širokého okolí o velikosti 1.500 m2 v obci Horní Domaslavice. Moderní dřevostavba je navržena s důrazem na kvalitu, energetickou úspornost a ekologii. Vytápění domu je zajištěno efektivním tepelným čerpadlem, což zaručuje nízké provozní náklady a šetrnost k životnímu prostředí. Součástí domu je také čistička odpadních vod. Sjezd na pozemek je zajištěn z obecní asfaltové komunikace.
Dispozice domu v 1. NP zahrnuje prostorný obývací pokoj s kuchyní (37,9 m2), pracovnu (14,3 m2), technickou místnost (6,9 m2), halu (8,7 m2) WC a zádveří (5,3 m2). Užitná plocha 1. NP činí 74,6 m2. Z obývacího pokoje a pracovny vstup francouzskými okny na terasu a zahradu.
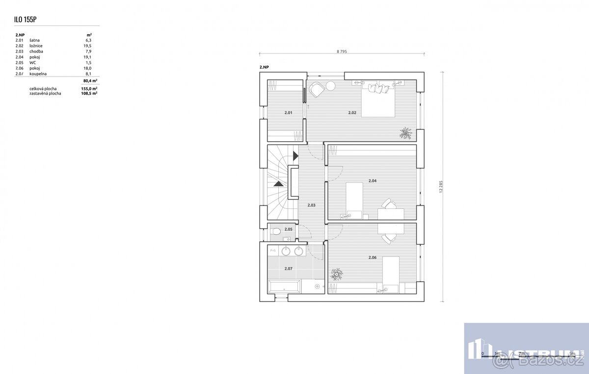
Dispozice domu v 2. NP zahrnuje ložnici (19,5 m2) s navazující šatnou (6,3 m2), 2 x dětský pokoj (19,1 m2 a 18 m2), koupelnu (8,1 m2), WC a chodbu (7,9 m2). Užitná plocha 2. NP činí 80,4 m2.
Dům je možné pořídit ve dvou barevných variantách, podle Vašich preferencí.
V ceně je obsažen pozemek a dům s finálními povrchy v interiéru. V ceně nejsou započítány terénní úpravy pozemku, napojení na sítě, čistička odpadních vod a kuchyňská linka.
Dům je také možno pořídit i tzv. K dokončení, kdy oproti standardní variantě není dodáno tepelné čerpadlo, výmalba, obklady, dlažba, podlahové krytiny, zásuvky a vypínače, sanita a interiérové dveře. V této variantě stojí dům 8.340.000,-Kč.
Obec Horní Domaslavice je klidná a velmi pěkná lokalita v blízkosti Žermanické přehrady a s výhledem na ni, stejně tak i na panorama Beskyd, která nabízí příjemné bydlení v blízkosti přírody, ale současně s vynikající dostupností do Ostravy, F-M, Havířova a na dálnici D48 (5 km).
V blízkém okolí najdete základní občanskou vybavenost, jako jsou obchody, školka, škola, sportovní zařízení. Okolí obce je ideální pro milovníky přírody a aktivního odpočinku, s množstvím turistických a cyklistických tras.
Tento projekt je ideální volbou pro ty, kteří hledají moderní a ekologické bydlení v klidné lokalitě s rychlým přístupem do města. Neváhejte nás kontaktovat pro více informací a sjednání prohlídky.
Včetně právních služeb Třída energetické náročnosti: B - velmi úsporná (dle vyhláška č. 264/2020 Sb.) Cena: 9 140 000 Kč
Dvojpodlažní dům s podlahovou plochou 155 m2 a zastavěnou plochou 109 m2 nabízí komfortní dispozici 5+kk, která je ideální pro rodinné bydlení.
Dům bude postaven na prostorném a velmi pěkném pozemku s výhledem do širokého okolí o velikosti 1.500 m2 v obci Horní Domaslavice. Moderní dřevostavba je navržena s důrazem na kvalitu, energetickou úspornost a ekologii. Vytápění domu je zajištěno efektivním tepelným čerpadlem, což zaručuje nízké provozní náklady a šetrnost k životnímu prostředí. Součástí domu je také čistička odpadních vod. Sjezd na pozemek je zajištěn z obecní asfaltové komunikace.
Dispozice domu v 1. NP zahrnuje prostorný obývací pokoj s kuchyní (37,9 m2), pracovnu (14,3 m2), technickou místnost (6,9 m2), halu (8,7 m2) WC a zádveří (5,3 m2). Užitná plocha 1. NP činí 74,6 m2. Z obývacího pokoje a pracovny vstup francouzskými okny na terasu a zahradu.
Dispozice domu v 2. NP zahrnuje ložnici (19,5 m2) s navazující šatnou (6,3 m2), 2 x dětský pokoj (19,1 m2 a 18 m2), koupelnu (8,1 m2), WC a chodbu (7,9 m2). Užitná plocha 2. NP činí 80,4 m2.
Dům je možné pořídit ve dvou barevných variantách, podle Vašich preferencí.
V ceně je obsažen pozemek a dům s finálními povrchy v interiéru. V ceně nejsou započítány terénní úpravy pozemku, napojení na sítě, čistička odpadních vod a kuchyňská linka.
Dům je také možno pořídit i tzv. K dokončení, kdy oproti standardní variantě není dodáno tepelné čerpadlo, výmalba, obklady, dlažba, podlahové krytiny, zásuvky a vypínače, sanita a interiérové dveře. V této variantě stojí dům 8.340.000,-Kč.
Obec Horní Domaslavice je klidná a velmi pěkná lokalita v blízkosti Žermanické přehrady a s výhledem na ni, stejně tak i na panorama Beskyd, která nabízí příjemné bydlení v blízkosti přírody, ale současně s vynikající dostupností do Ostravy, F-M, Havířova a na dálnici D48 (5 km).
V blízkém okolí najdete základní občanskou vybavenost, jako jsou obchody, školka, škola, sportovní zařízení. Okolí obce je ideální pro milovníky přírody a aktivního odpočinku, s množstvím turistických a cyklistických tras.
Tento projekt je ideální volbou pro ty, kteří hledají moderní a ekologické bydlení v klidné lokalitě s rychlým přístupem do města. Neváhejte nás kontaktovat pro více informací a sjednání prohlídky.
Včetně právních služeb Třída energetické náročnosti: B - velmi úsporná (dle vyhláška č. 264/2020 Sb.) Cena: 9 140 000 Kč
|
| |||||||||||||||||||||||||||||||
Kontaktovat inzerenta emailem
Kontaktovat emailem může pouze ověřený uživatel.
Ověření je zdarma.
Vaše telefonní číslo *
Kontaktovat emailem může pouze ověřený uživatel.
Ověření je zdarma.
Vaše telefonní číslo *